|
|
|
| Larry Stein Oklahoma County Assessor (405) 713-1200 - Public Access System |
|
|
|
|
|
|
| Real Property Display - Screen Produced 3/21/2026 11:20:07 AM | ||||
|---|---|---|---|---|
| Account: R144152420 | Type: Residential | Location: |
12124 SE 44TH ST |
|
| Building Name/Occupant: |
|
OKLAHOMA CITY |
||
| Owner Name 1: | SHELL CODY & MIKAYLA |
Parcel PIN#: |
1284-14-415-2420 |
|
| Owner Name 2: | 1/4 section #: |
1284 |
||
| Owner Name 3: | Parent Acct: |
|
||
| Billing Address: | 12124 SE 44TH ST | Tax District: |
|
|
| City, State, Zip | CHOCTAW, OK 73020-6141 | School System: |
Mid-Del #52 |
|
|
Country: (If noted) |
Land Size: |
5.7100 Acres |
||
|
Land Value: 133,062 |
|
|||
|
Sect 21-T11N-R1W Qtr NW |
UNPLTD PT SEC 21 11N 1W
Block
000
Lot
000
|
|||
| Full Legal Description: UNPLTD PT NW4 SEC 21 11N 1W BEG 696.50FT E NW/C NW4 TH E250FT S994.84FT W250FT N994.81FT TO BEG CONT 5.71ACRS MORE OR LESS AKATR 4 |
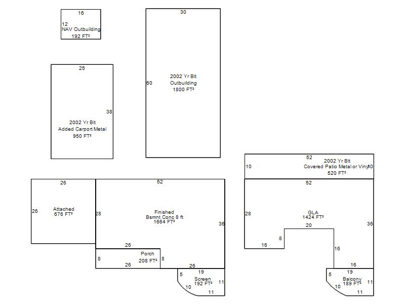
| Photo & Sketch (if available) | Comp Sales (ordered by relevancy) |
|
||||||||||||||||||
|
||||||||||||||||||||
| Value History (*The County Treasurer 405-713-1300 posts & collects actual tax amounts. Contact information HERE) | |||||||||||||
|---|---|---|---|---|---|---|---|---|---|---|---|---|---|
| Year | Market Value | Taxable Mkt Value | Gross Assessed | Exemption | Net Assessed | Millage | Est. Tax | Tax Savings | |||||
|
2025 |
573,000 |
573,000 |
63,030 |
0 |
63,030 |
126.46 |
$7,971 |
$0 |
|||||
|
2024 |
580,000 |
548,625 |
60,348 |
0 |
60,348 |
128.51 |
$7,755 |
$444 |
|||||
|
2023 |
522,500 |
522,500 |
57,475 |
0 |
57,475 |
122.94 |
$7,066 |
$0 |
|||||
|
2022 |
386,500 |
309,251 |
34,016 |
0 |
34,016 |
122.11 |
$4,154 |
$1,038 |
|||||
|
2021 |
340,500 |
294,525 |
32,397 |
0 |
32,397 |
124.74 |
$4,041 |
$631 |
|||||
| Property Account Status/Adjustments/Exemptions | ||
|---|---|---|
| Account # | Exemption Description | Amount |
|
R144152420 |
5% Capped Account |
0 |
| Property Deed Transaction History (Recorded in the County Clerk's Office) | |||||||
|---|---|---|---|---|---|---|---|
| Date | Type | Book | Page | Price | Grantor | Grantee | |
|
8/19/2022 |
|
Deeds |
$500,000 |
INGRAM DANNY L & MELINDA J |
SHELL CODY & MIKAYLA |
||
|
8/1/2011 |
|
Deeds |
$183,000 |
INGRAM JERRY WAYNE & THELMA F |
INGRAM DANNY L & MELINDA J |
||
|
8/1/1983 |
|
Historical |
$0 |
|
INGRAM JERRY WAYNE & THELMA F |
||
| Last Mailed Notice of Value (N.O.V.) Information/History | ||||||||
|---|---|---|---|---|---|---|---|---|
| Year | Date | Market Value | Taxable Market Value | Gross Assessed | Exemption | Net Assessed | ||
|
2025 |
01/31/2025 |
573,000 |
573,000 |
63,030 |
0 |
63,030 |
||
|
2024 |
01/22/2024 |
580,000 |
548,625 |
60,348 |
0 |
60,348 |
||
|
2023 |
01/23/2023 |
522,500 |
522,500 |
57,475 |
0 |
57,475 |
||
|
2022 |
02/22/2022 |
386,500 |
309,251 |
34,016 |
0 |
34,016 |
||
|
2021 |
02/24/2021 |
340,500 |
294,525 |
32,397 |
0 |
32,397 |
||
| Property Building Permit History | |||||||||||
|---|---|---|---|---|---|---|---|---|---|---|---|
| Issued | Permit # | Provided by | Bldg # | Description | Est Construction Cost | Status | |||||
| No Building Permit records returned. | |||||||||||
| Click button on building number to access detailed information: | ||||||
|---|---|---|---|---|---|---|
| Bldg # | Vacant/Improved Land | Bldg Description | Year Built | SqFt | # Stories | |
|
1 |
Improved |
Ranch 1 Story |
1985 |
1,424 |
1 Stories |
|