|
|
|
| Larry Stein Oklahoma County Assessor (405) 713-1200 - Public Access System |
|
|
|
|
|
|
| Real Property Display - Screen Produced 3/21/2026 11:21:28 AM | ||||
|---|---|---|---|---|
| Account: R144152490 | Type: Commercial | Location: |
4900 S ANDERSON RD |
|
| Building Name/Occupant: |
LUNDY'S PROPANE |
OKLAHOMA CITY |
||
| Owner Name 1: | CLEVELAND PETROLEUM PRODUCT INC |
Parcel PIN#: |
1284-14-415-2490 |
|
| Owner Name 2: | 1/4 section #: |
1284 |
||
| Owner Name 3: | Parent Acct: |
|
||
| Billing Address: | PO BOX 298 | Tax District: |
|
|
| City, State, Zip | CLEVELAND, OK 74020-0298 | School System: |
Mid-Del #52 |
|
|
Country: (If noted) |
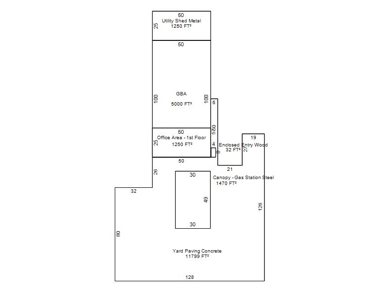
Land Size: |
119,629.0000 Square Feet |
||
|
Land Value: 299,076 |
|
|||
|
Sect 21-T11N-R1W Qtr NW |
UNPLTD PT SEC 21 11N 1W
Block
000
Lot
000
|
|||
| Full Legal Description: UNPLTD PT SEC 21 11N 1W 000 000 PT NW4 SEC 21 11N 1W BEG 1503.19FT S OF NW/C NW4 TH E600.40FT S205.50FT W514.73FT NW122.88FT N118FT TO BEG CONT 2.75ACRS MORE OR LESS |
| No comparable sales report available. | ||||||||||||||||||||||
|
||||||||||||||||||||||
| Value History (*The County Treasurer 405-713-1300 posts & collects actual tax amounts. Contact information HERE) | |||||||||||||
|---|---|---|---|---|---|---|---|---|---|---|---|---|---|
| Year | Market Value | Taxable Mkt Value | Gross Assessed | Exemption | Net Assessed | Millage | Est. Tax | Tax Savings | |||||
|
2025 |
375,705 |
203,458 |
22,379 |
0 |
22,379 |
126.46 |
$2,830 |
$2,396 |
|||||
|
2024 |
210,381 |
193,770 |
21,313 |
0 |
21,313 |
128.51 |
$2,739 |
$235 |
|||||
|
2023 |
210,381 |
184,543 |
20,299 |
0 |
20,299 |
122.94 |
$2,496 |
$349 |
|||||
|
2022 |
210,381 |
175,756 |
19,332 |
0 |
19,332 |
122.11 |
$2,361 |
$465 |
|||||
|
2021 |
167,387 |
167,387 |
18,412 |
0 |
18,412 |
124.74 |
$2,297 |
$0 |
|||||
| Property Account Status/Adjustments/Exemptions | ||
|---|---|---|
| Account # | Exemption Description | Amount |
|
R144152490 |
5% Capped Account |
0 |
| Property Deed Transaction History (Recorded in the County Clerk's Office) | |||||||
|---|---|---|---|---|---|---|---|
| Date | Type | Book | Page | Price | Grantor | Grantee | |
|
9/1/2016 |
|
Deeds |
$230,500 |
LUNDY CLARENCE J & BAKER LORETTA J TRS LUNDY LORENE L REV TR |
CLEVELAND PETROLEUM PRODUCT INC |
||
|
7/19/2016 |
|
Hmstd Off & |
$0 |
JOURNAL ENTRY OF JUDGEMENT |
BAKER LORETTA J & LUNDY CLARENCE J CO TRS LUNDY LORENE L TRU |
||
|
2/3/2016 |
|
Hmstd Off & |
$0 |
LUNDY LORENE L CO TRS LUNDY KENNETH J CO TRS |
LUNDY CLARENCE J & BAKER LORETTA J TRS LUNDY LORENE L REV TR |
||
|
9/1/1985 |
|
Historical |
$0 |
|
LUNDY LORENE L CO TRS |
||
| Last Mailed Notice of Value (N.O.V.) Information/History | ||||||||
|---|---|---|---|---|---|---|---|---|
| Year | Date | Market Value | Taxable Market Value | Gross Assessed | Exemption | Net Assessed | ||
|
2026 |
03/23/2026 |
389,000 |
213,630 |
23,499 |
0 |
23,499 |
||
|
2025 |
03/14/2025 |
375,705 |
203,458 |
22,379 |
0 |
22,379 |
||
|
2024 |
03/12/2024 |
210,381 |
193,770 |
21,313 |
0 |
21,313 |
||
|
2023 |
03/13/2023 |
210,381 |
184,543 |
20,299 |
0 |
20,299 |
||
|
2022 |
03/09/2022 |
210,381 |
175,756 |
19,332 |
0 |
19,332 |
||
| Property Building Permit History | |||||||||||
|---|---|---|---|---|---|---|---|---|---|---|---|
| Issued | Permit # | Provided by | Bldg # | Description | Est Construction Cost | Status | |||||
| No Building Permit records returned. | |||||||||||
| Click button on building number to access detailed information: | ||||||
|---|---|---|---|---|---|---|
| Bldg # | Vacant/Improved Land | Bldg Description | Year Built | SqFt | # Stories | |
|
1 |
Improved |
Storage Warehouse |
1983 |
5,000 |
1 Stories |
|