|
|
|
| Larry Stein Oklahoma County Assessor (405) 713-1200 - Public Access System |
|
|
|
|
|
|
| Real Property Display - Screen Produced 3/18/2026 3:05:54 PM | ||||
|---|---|---|---|---|
| Account: R020121115 | Type: Residential | Location: |
1209 N STANDISH AVE |
|
| Building Name/Occupant: |
|
OKLAHOMA CITY |
||
| Owner Name 1: | ALAS SALVADOR & GLORIA I |
Parcel PIN#: |
2519-02-012-1115 |
|
| Owner Name 2: | 1/4 section #: |
2519 |
||
| Owner Name 3: | Parent Acct: |
|
||
| Billing Address: | 3715 CHESTER ST | Tax District: |
|
|
| City, State, Zip | SPENCER, OK 73084 | School System: |
Oklahoma City #89 |
|
|
Country: (If noted) |
Land Size: |
0.1463 Acres |
||
|
Land Value: 10,519 |
|
|||
|
Sect 30-T12N-R2W Qtr SW |
GARDEN OAKS 2ND
Block
001
Lot
012
|
|||
| Full Legal Description: GARDEN OAKS 2ND 001 012 |
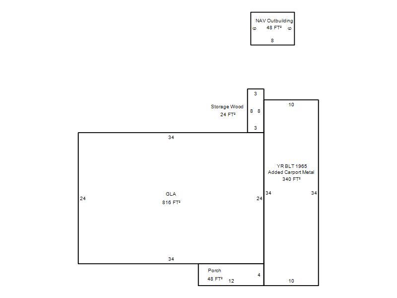
| Photo & Sketch (if available) | Comp Sales (ordered by relevancy) |
|
||||||||||||||||||
|
||||||||||||||||||||
| Value History (*The County Treasurer 405-713-1300 posts & collects actual tax amounts. Contact information HERE) | |||||||||||||
|---|---|---|---|---|---|---|---|---|---|---|---|---|---|
| Year | Market Value | Taxable Mkt Value | Gross Assessed | Exemption | Net Assessed | Millage | Est. Tax | Tax Savings | |||||
|
2025 |
67,500 |
34,561 |
3,801 |
0 |
3,801 |
122.90 |
$467 |
$445 |
|||||
|
2024 |
63,500 |
32,916 |
3,620 |
0 |
3,620 |
123.89 |
$449 |
$417 |
|||||
|
2023 |
54,000 |
31,349 |
3,448 |
0 |
3,448 |
122.82 |
$424 |
$306 |
|||||
|
2022 |
45,000 |
29,857 |
3,283 |
0 |
3,283 |
117.63 |
$386 |
$196 |
|||||
|
2021 |
35,000 |
28,436 |
3,127 |
0 |
3,127 |
117.70 |
$368 |
$85 |
|||||
| Property Account Status/Adjustments/Exemptions | ||
|---|---|---|
| Account # | Exemption Description | Amount |
|
R020121115 |
5% Capped Account |
0 |
| Property Deed Transaction History (Recorded in the County Clerk's Office) | |||||||
|---|---|---|---|---|---|---|---|
| Date | Type | Book | Page | Price | Grantor | Grantee | |
|
9/12/2001 |
|
Deeds |
$15,000 |
ANDERSON CHARLES R ANDERSON FLOYD A |
ALAS SALVADOR & GLORIA I |
||
|
12/13/1991 |
|
Historical |
$0 |
ANDERSON CHARLES R |
ANDERSON CHARLES R |
||
|
3/6/1990 |
|
Historical |
$0 |
ANDERSON WALTER & M |
ANDERSON CHARLES R |
||
|
11/11/1911 |
|
Historical |
$0 |
|
ANDERSON WALTER & M |
||
| Last Mailed Notice of Value (N.O.V.) Information/History | ||||||||
|---|---|---|---|---|---|---|---|---|
| Year | Date | Market Value | Taxable Market Value | Gross Assessed | Exemption | Net Assessed | ||
|
2026 |
02/23/2026 |
67,000 |
36,289 |
3,991 |
0 |
3,991 |
||
|
2025 |
02/14/2025 |
67,500 |
34,561 |
3,801 |
0 |
3,801 |
||
|
2024 |
02/13/2024 |
63,500 |
32,916 |
3,620 |
0 |
3,620 |
||
|
2023 |
02/14/2023 |
54,000 |
31,349 |
3,448 |
0 |
3,448 |
||
|
2022 |
03/15/2022 |
45,000 |
29,857 |
3,283 |
0 |
3,283 |
||
| Property Building Permit History | |||||||||||
|---|---|---|---|---|---|---|---|---|---|---|---|
| Issued | Permit # | Provided by | Bldg # | Description | Est Construction Cost | Status | |||||
| No Building Permit records returned. | |||||||||||
| Click button on building number to access detailed information: | ||||||
|---|---|---|---|---|---|---|
| Bldg # | Vacant/Improved Land | Bldg Description | Year Built | SqFt | # Stories | |
|
1 |
Improved |
Ranch 1 Story |
1955 |
816 |
1 Stories |
|