|
|
|
| Larry Stein Oklahoma County Assessor (405) 713-1200 - Public Access System |
|
|
|
|
|
|
| Real Property Display - Screen Produced 3/18/2026 3:06:37 PM | ||||
|---|---|---|---|---|
| Account: R020121125 | Type: Residential | Location: |
1213 N STANDISH AVE |
|
| Building Name/Occupant: |
|
OKLAHOMA CITY |
||
| Owner Name 1: | CASILLAS LEROY J |
Parcel PIN#: |
2519-02-012-1125 |
|
| Owner Name 2: | CASILLAS ANDREW A | 1/4 section #: |
2519 |
|
| Owner Name 3: | Parent Acct: |
|
||
| Billing Address: | 1213 N STANDISH AVE | Tax District: |
|
|
| City, State, Zip | OKLAHOMA CITY, OK 73117 | School System: |
Oklahoma City #89 |
|
|
Country: (If noted) |
Land Size: |
0.1463 Acres |
||
|
Land Value: 10,519 |
|
|||
|
Sect 30-T12N-R2W Qtr SW |
GARDEN OAKS 2ND
Block
001
Lot
013
|
|||
| Full Legal Description: GARDEN OAKS 2ND 001 013 |
| No comparable sales report available. | ||||||||||||||||||||||
|
||||||||||||||||||||||
| Value History (*The County Treasurer 405-713-1300 posts & collects actual tax amounts. Contact information HERE) | |||||||||||||
|---|---|---|---|---|---|---|---|---|---|---|---|---|---|
| Year | Market Value | Taxable Mkt Value | Gross Assessed | Exemption | Net Assessed | Millage | Est. Tax | Tax Savings | |||||
|
2025 |
15,883 |
15,883 |
1,747 |
0 |
1,747 |
122.90 |
$215 |
$0 |
|||||
|
2024 |
68,500 |
40,100 |
4,411 |
0 |
4,411 |
123.89 |
$546 |
$387 |
|||||
|
2023 |
57,000 |
38,191 |
4,201 |
0 |
4,201 |
122.82 |
$516 |
$254 |
|||||
|
2022 |
48,000 |
36,373 |
4,000 |
0 |
4,000 |
117.63 |
$471 |
$150 |
|||||
|
2021 |
37,000 |
34,641 |
3,810 |
0 |
3,810 |
117.70 |
$448 |
$31 |
|||||
| Property Account Status/Adjustments/Exemptions | ||
|---|---|---|
| Account # | Exemption Description | Amount |
|
R020121125 |
5% Capped Account |
0 |
| Property Deed Transaction History (Recorded in the County Clerk's Office) | ||||||||||
|---|---|---|---|---|---|---|---|---|---|---|
| Date | Type | Book | Page | Price | Grantor | Grantee | ||||
|
9/12/2019 |
|
Hmstd Off & |
$0 |
QUINTANA ARMANDO HERRERA |
CASILLAS LEROY J |
|||||
|
7/29/2016 |
|
Deeds |
$10,000 |
DAVISON MARSHA G |
RAK PROPERTIES INC |
|||||
|
7/28/2016 |
|
Deeds |
$20,000 |
QUICK REAL ESTATE SOLUTIONS LLC |
DAVISON MARSHA G |
|||||
|
7/26/2016 |
|
Deeds |
$10,000 |
RAK PROPERTIES INC |
QUICK REAL ESTATE SOLUTIONS LLC |
|||||
|
7/12/2000 |
|
Hmstd Off & |
$0 |
DANIELS KENNETH & M |
DAVISON MARSHA G |
|||||
| Last Mailed Notice of Value (N.O.V.) Information/History | ||||||||
|---|---|---|---|---|---|---|---|---|
| Year | Date | Market Value | Taxable Market Value | Gross Assessed | Exemption | Net Assessed | ||
|
2024 |
02/13/2024 |
68,500 |
40,100 |
4,411 |
0 |
4,411 |
||
|
2023 |
02/14/2023 |
57,000 |
38,191 |
4,201 |
0 |
4,201 |
||
|
2022 |
03/15/2022 |
48,000 |
36,373 |
4,000 |
0 |
4,000 |
||
|
2021 |
03/19/2021 |
37,000 |
34,641 |
3,810 |
0 |
3,810 |
||
|
2020 |
03/10/2020 |
33,500 |
32,992 |
3,629 |
0 |
3,629 |
||
| Property Building Permit History | ||||||
|---|---|---|---|---|---|---|
| Issued | Permit # | Provided by | Bldg # | Description | Est Construction Cost | Status |
|
5/20/2025 |
BLDR-2025-00290 |
|
|
Fire Remodel |
48,000 |
Active |
|
10/30/2024 |
24072459 |
|
1 |
Burn - Trip |
40,000 |
Inactive |
| Click button on building number to access detailed information: | ||||||
|---|---|---|---|---|---|---|
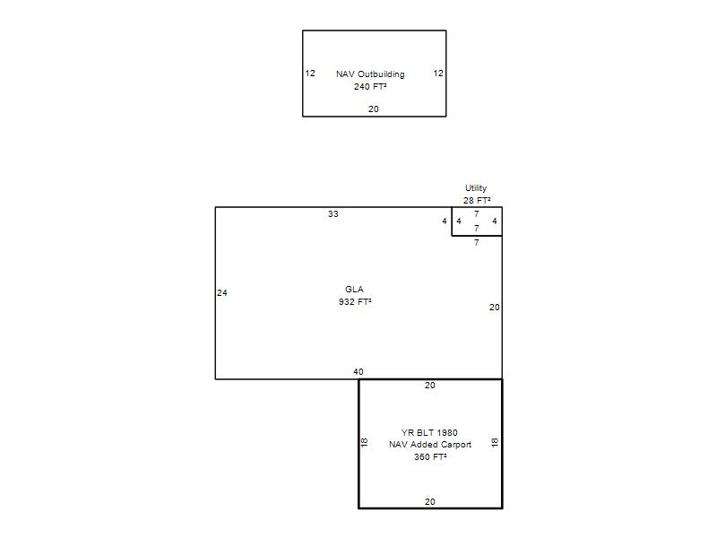
| Bldg # | Vacant/Improved Land | Bldg Description | Year Built | SqFt | # Stories | |
|
1 |
Improved |
Salvage |
1955 |
932 |
1 Stories |
|