|
|
|
| Larry Stein Oklahoma County Assessor (405) 713-1200 - Public Access System |
|
|
|
|
|
|
| Real Property Display - Screen Produced 3/18/2026 3:04:16 PM | ||||
|---|---|---|---|---|
| Account: R020121295 | Type: Residential | Location: |
3353 NE 12TH ST |
|
| Building Name/Occupant: |
|
OKLAHOMA CITY |
||
| Owner Name 1: | TWMJ INDUSTRIES LLC |
Parcel PIN#: |
2519-02-012-1295 |
|
| Owner Name 2: | 1/4 section #: |
2519 |
||
| Owner Name 3: | Parent Acct: |
|
||
| Billing Address: | PO BOX 721682 | Tax District: |
|
|
| City, State, Zip | OKLAHOMA CITY, OK 73172-3003 | School System: |
Oklahoma City #89 |
|
|
Country: (If noted) |
Land Size: |
0.2064 Acres |
||
|
Land Value: 14,834 |
|
|||
|
Sect 30-T12N-R2W Qtr SW |
GARDEN OAKS 2ND
Block
003
Lot
001
|
|||
| Full Legal Description: GARDEN OAKS 2ND 003 001 |
| Photo & Sketch (if available) | Comp Sales (ordered by relevancy) |
|
||||||||||||||||||
|
||||||||||||||||||||
| Value History (*The County Treasurer 405-713-1300 posts & collects actual tax amounts. Contact information HERE) | |||||||||||||
|---|---|---|---|---|---|---|---|---|---|---|---|---|---|
| Year | Market Value | Taxable Mkt Value | Gross Assessed | Exemption | Net Assessed | Millage | Est. Tax | Tax Savings | |||||
|
2025 |
81,500 |
45,305 |
4,983 |
0 |
4,983 |
122.90 |
$612 |
$489 |
|||||
|
2024 |
77,500 |
43,148 |
4,746 |
0 |
4,746 |
123.89 |
$588 |
$468 |
|||||
|
2023 |
66,500 |
41,094 |
4,520 |
0 |
4,520 |
122.82 |
$555 |
$343 |
|||||
|
2022 |
56,500 |
39,138 |
4,305 |
0 |
4,305 |
117.63 |
$506 |
$225 |
|||||
|
2021 |
44,000 |
37,275 |
4,100 |
0 |
4,100 |
117.70 |
$483 |
$87 |
|||||
| Property Account Status/Adjustments/Exemptions | ||
|---|---|---|
| Account # | Exemption Description | Amount |
|
R020121295 |
5% Capped Account |
0 |
| Property Deed Transaction History (Recorded in the County Clerk's Office) | ||||||||||
|---|---|---|---|---|---|---|---|---|---|---|
| Date | Type | Book | Page | Price | Grantor | Grantee | ||||
|
6/21/2005 |
|
Deeds |
$18,000 |
CURRY MICHAEL |
TWMJ INDUSTRIES LLC |
|||||
|
3/15/2000 |
|
Hmstd Off & |
$0 |
BLAINE EFFIE |
CURRY MICHAEL |
|||||
|
12/17/1999 |
|
Deeds |
$0 |
BLAINE ROBERT & EFFIE |
BLAINE EFFIE |
|||||
|
11/18/1999 |
|
Other |
$0 |
HARRIS ROBERT |
BLAINE EFFIE |
|||||
|
12/1/1986 |
|
Historical |
$0 |
HARRIS ROBERT |
HARRIS ROBERT |
|||||
| Last Mailed Notice of Value (N.O.V.) Information/History | ||||||||
|---|---|---|---|---|---|---|---|---|
| Year | Date | Market Value | Taxable Market Value | Gross Assessed | Exemption | Net Assessed | ||
|
2026 |
02/23/2026 |
80,000 |
47,570 |
5,232 |
0 |
5,232 |
||
|
2025 |
02/14/2025 |
81,500 |
45,305 |
4,983 |
0 |
4,983 |
||
|
2024 |
02/13/2024 |
77,500 |
43,148 |
4,746 |
0 |
4,746 |
||
|
2023 |
02/14/2023 |
66,500 |
41,094 |
4,520 |
0 |
4,520 |
||
|
2022 |
03/15/2022 |
56,500 |
39,138 |
4,305 |
0 |
4,305 |
||
| Property Building Permit History | |||||||||||
|---|---|---|---|---|---|---|---|---|---|---|---|
| Issued | Permit # | Provided by | Bldg # | Description | Est Construction Cost | Status | |||||
| No Building Permit records returned. | |||||||||||
| Click button on building number to access detailed information: | ||||||
|---|---|---|---|---|---|---|
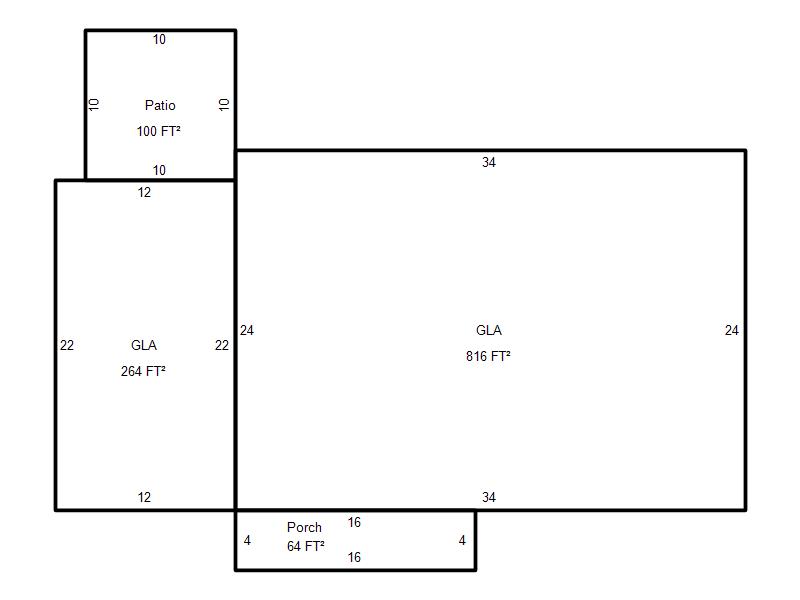
| Bldg # | Vacant/Improved Land | Bldg Description | Year Built | SqFt | # Stories | |
|
1 |
Improved |
Ranch 1 Story |
1958 |
1,080 |
1 Stories |
|