|
|
|
| Larry Stein Oklahoma County Assessor (405) 713-1200 - Public Access System |
|
|
|
|
|
|
| Real Property Display - Screen Produced 3/18/2026 3:24:10 PM | ||||
|---|---|---|---|---|
| Account: R020121395 | Type: Residential | Location: |
3313 NE 12TH ST |
|
| Building Name/Occupant: |
|
OKLAHOMA CITY |
||
| Owner Name 1: | FISHER D & THOMAS V |
Parcel PIN#: |
2519-02-012-1395 |
|
| Owner Name 2: | 1/4 section #: |
2519 |
||
| Owner Name 3: | C/O KARLA FISHER | Parent Acct: |
|
|
| Billing Address: | 1160 NE 5TH TER | Tax District: |
|
|
| City, State, Zip | OKLAHOMA CITY, OK 73117 | School System: |
Oklahoma City #89 |
|
|
Country: (If noted) |
Land Size: |
0.1756 Acres |
||
|
Land Value: 12,623 |
|
|||
|
Sect 30-T12N-R2W Qtr SW |
GARDEN OAKS 2ND
Block
003
Lot
011
|
|||
| Full Legal Description: GARDEN OAKS 2ND 003 011 |
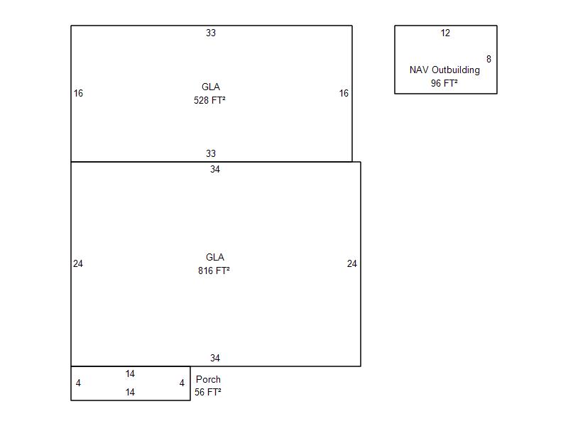
| Photo & Sketch (if available) | Comp Sales (ordered by relevancy) |
|
||||||||||||||||||
|
||||||||||||||||||||
| Value History (*The County Treasurer 405-713-1300 posts & collects actual tax amounts. Contact information HERE) | |||||||||||||
|---|---|---|---|---|---|---|---|---|---|---|---|---|---|
| Year | Market Value | Taxable Mkt Value | Gross Assessed | Exemption | Net Assessed | Millage | Est. Tax | Tax Savings | |||||
|
2025 |
116,500 |
32,290 |
3,551 |
0 |
3,551 |
122.90 |
$437 |
$1,138 |
|||||
|
2024 |
111,000 |
30,753 |
3,382 |
0 |
3,382 |
123.89 |
$419 |
$1,094 |
|||||
|
2023 |
93,500 |
29,289 |
3,221 |
0 |
3,221 |
122.82 |
$396 |
$868 |
|||||
|
2022 |
78,000 |
27,895 |
3,068 |
0 |
3,068 |
117.63 |
$361 |
$648 |
|||||
|
2021 |
61,000 |
26,567 |
2,922 |
0 |
2,922 |
117.70 |
$344 |
$446 |
|||||
| Property Account Status/Adjustments/Exemptions | ||
|---|---|---|
| Account # | Exemption Description | Amount |
|
R020121395 |
5% Capped Account |
0 |
| Property Deed Transaction History (Recorded in the County Clerk's Office) | |||||||
|---|---|---|---|---|---|---|---|
| Date | Type | Book | Page | Price | Grantor | Grantee | |
|
11/11/1911 |
|
Historical |
$0 |
|
FISHER D & THOMAS V |
||
| Last Mailed Notice of Value (N.O.V.) Information/History | ||||||||
|---|---|---|---|---|---|---|---|---|
| Year | Date | Market Value | Taxable Market Value | Gross Assessed | Exemption | Net Assessed | ||
|
2026 |
02/23/2026 |
115,500 |
33,904 |
3,728 |
0 |
3,728 |
||
|
2025 |
02/14/2025 |
116,500 |
32,290 |
3,551 |
0 |
3,551 |
||
|
2024 |
02/13/2024 |
111,000 |
30,753 |
3,382 |
0 |
3,382 |
||
|
2023 |
02/14/2023 |
93,500 |
29,289 |
3,221 |
0 |
3,221 |
||
|
2022 |
03/15/2022 |
78,000 |
27,895 |
3,068 |
0 |
3,068 |
||
| Property Building Permit History | ||||||
|---|---|---|---|---|---|---|
| Issued | Permit # | Provided by | Bldg # | Description | Est Construction Cost | Status |
|
6/22/1993 |
10188093 |
OKLAHOMA CITY |
1 |
Add On |
12,500 |
Inactive |
| Click button on building number to access detailed information: | ||||||
|---|---|---|---|---|---|---|
| Bldg # | Vacant/Improved Land | Bldg Description | Year Built | SqFt | # Stories | |
|
1 |
Improved |
Ranch 1 Story |
1957 |
1,344 |
1 Stories |
|