|
|
|
| Larry Stein Oklahoma County Assessor (405) 713-1200 - Public Access System |
|
|
|
|
|
|
| Real Property Display - Screen Produced 3/20/2026 6:09:23 AM | ||||
|---|---|---|---|---|
| Account: R020121765 | Type: Residential | Location: |
3201 NE 11TH ST |
|
| Building Name/Occupant: |
|
OKLAHOMA CITY |
||
| Owner Name 1: | STEELE DONALD ETAL |
Parcel PIN#: |
2519-02-012-1765 |
|
| Owner Name 2: | FERRIS CAROL | 1/4 section #: |
2519 |
|
| Owner Name 3: | STEELE LUSTER | Parent Acct: |
|
|
| Billing Address: | 3201 NE 11TH ST | Tax District: |
|
|
| City, State, Zip | OKLAHOMA CITY, OK 73117 | School System: |
Oklahoma City #89 |
|
|
Country: (If noted) |
Land Size: |
0.1463 Acres |
||
|
Land Value: 10,519 |
|
|||
|
Sect 30-T12N-R2W Qtr SW |
GARDEN OAKS 2ND
Block
004
Lot
034
|
|||
| Full Legal Description: GARDEN OAKS 2ND 004 034 |
| Photo & Sketch (if available) | Comp Sales (ordered by relevancy) |
|
||||||||||||||||||
|
||||||||||||||||||||
| Value History (*The County Treasurer 405-713-1300 posts & collects actual tax amounts. Contact information HERE) | |||||||||||||
|---|---|---|---|---|---|---|---|---|---|---|---|---|---|
| Year | Market Value | Taxable Mkt Value | Gross Assessed | Exemption | Net Assessed | Millage | Est. Tax | Tax Savings | |||||
|
2025 |
136,000 |
33,961 |
3,734 |
0 |
3,734 |
122.90 |
$459 |
$1,379 |
|||||
|
2024 |
128,000 |
32,344 |
3,557 |
0 |
3,557 |
123.89 |
$441 |
$1,304 |
|||||
|
2023 |
110,000 |
30,804 |
3,388 |
0 |
3,388 |
122.82 |
$416 |
$1,070 |
|||||
|
2022 |
92,500 |
29,338 |
3,226 |
0 |
3,226 |
117.63 |
$380 |
$817 |
|||||
|
2021 |
73,500 |
27,941 |
3,073 |
0 |
3,073 |
117.70 |
$362 |
$590 |
|||||
| Property Account Status/Adjustments/Exemptions | ||
|---|---|---|
| Account # | Exemption Description | Amount |
|
R020121765 |
5% Capped Account |
0 |
| Property Deed Transaction History (Recorded in the County Clerk's Office) | |||||||
|---|---|---|---|---|---|---|---|
| Date | Type | Book | Page | Price | Grantor | Grantee | |
|
12/2/2009 |
|
Hmstd Off & |
$0 |
STEELE ALDORA J ESTATE OF SCOTT KARDORIS PER REP |
STEELE DONALD ETAL |
||
|
10/30/2006 |
|
Deeds |
$0 |
STEELE DONALD SR & ALDORA J |
STEELE ALDORA J ESTATE OF SCOTT KARDORIS PER REP |
||
|
11/11/1911 |
|
Historical |
$0 |
|
STEELE DONALD SR & ALDORA J |
||
| Last Mailed Notice of Value (N.O.V.) Information/History | ||||||||
|---|---|---|---|---|---|---|---|---|
| Year | Date | Market Value | Taxable Market Value | Gross Assessed | Exemption | Net Assessed | ||
|
2026 |
02/23/2026 |
136,500 |
35,659 |
3,921 |
0 |
3,921 |
||
|
2025 |
02/14/2025 |
136,000 |
33,961 |
3,734 |
0 |
3,734 |
||
|
2024 |
02/13/2024 |
128,000 |
32,344 |
3,557 |
0 |
3,557 |
||
|
2023 |
02/14/2023 |
110,000 |
30,804 |
3,388 |
0 |
3,388 |
||
|
2022 |
03/15/2022 |
92,500 |
29,338 |
3,226 |
0 |
3,226 |
||
| Property Building Permit History | |||||||||||
|---|---|---|---|---|---|---|---|---|---|---|---|
| Issued | Permit # | Provided by | Bldg # | Description | Est Construction Cost | Status | |||||
| No Building Permit records returned. | |||||||||||
| Click button on building number to access detailed information: | ||||||
|---|---|---|---|---|---|---|
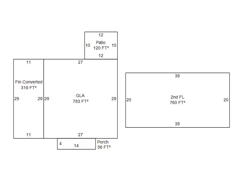
| Bldg # | Vacant/Improved Land | Bldg Description | Year Built | SqFt | # Stories | |
|
1 |
Improved |
2 Story |
1970 |
1,543 |
2 Stories |
|