|
|
|
| Larry Stein Oklahoma County Assessor (405) 713-1200 - Public Access System |
|
|
|
|
|
|
| Real Property Display - Screen Produced 3/18/2026 3:04:16 PM | ||||
|---|---|---|---|---|
| Account: R020122165 | Type: Residential | Location: |
3212 NE 11TH ST |
|
| Building Name/Occupant: |
|
OKLAHOMA CITY |
||
| Owner Name 1: | HILL LISA |
Parcel PIN#: |
2519-02-012-2165 |
|
| Owner Name 2: | COLE ROOSEVELT | 1/4 section #: |
2519 |
|
| Owner Name 3: | Parent Acct: |
|
||
| Billing Address: | 3212 NE 11TH ST | Tax District: |
|
|
| City, State, Zip | OKLAHOMA CITY, OK 73117-6224 | School System: |
Oklahoma City #89 |
|
|
Country: (If noted) |
Land Size: |
0.1463 Acres |
||
|
Land Value: 10,519 |
|
|||
|
Sect 30-T12N-R2W Qtr SW |
GARDEN OAKS 2ND
Block
005
Lot
018
|
|||
| Full Legal Description: GARDEN OAKS 2ND 005 018 |
| Photo & Sketch (if available) | Comp Sales (ordered by relevancy) |
|
||||||||||||||||||
|
||||||||||||||||||||
| Value History (*The County Treasurer 405-713-1300 posts & collects actual tax amounts. Contact information HERE) | |||||||||||||
|---|---|---|---|---|---|---|---|---|---|---|---|---|---|
| Year | Market Value | Taxable Mkt Value | Gross Assessed | Exemption | Net Assessed | Millage | Est. Tax | Tax Savings | |||||
|
2025 |
134,000 |
71,944 |
7,913 |
1,000 |
6,913 |
122.90 |
$850 |
$962 |
|||||
|
2024 |
126,000 |
69,849 |
7,682 |
1,000 |
6,682 |
123.89 |
$828 |
$889 |
|||||
|
2023 |
108,000 |
67,815 |
7,459 |
1,000 |
6,459 |
122.82 |
$793 |
$666 |
|||||
|
2022 |
91,000 |
65,840 |
7,240 |
1,000 |
6,240 |
117.63 |
$734 |
$443 |
|||||
|
2021 |
72,500 |
63,923 |
7,030 |
1,000 |
6,030 |
117.70 |
$710 |
$229 |
|||||
| Property Account Status/Adjustments/Exemptions | ||
|---|---|---|
| Account # | Exemption Description | Amount |
|
R020122165 |
Freeze Senior Valuation |
0 |
|
R020122165 |
3% Cap Homestead |
0 |
|
R020122165 |
Homestead |
1,000 |
| Property Deed Transaction History (Recorded in the County Clerk's Office) | ||||||||||
|---|---|---|---|---|---|---|---|---|---|---|
| Date | Type | Book | Page | Price | Grantor | Grantee | ||||
|
12/23/2005 |
|
Deeds |
$0 |
COLE LISA HILL |
HILL LISA |
|||||
|
7/8/2003 |
|
Deeds |
$28,000 |
GILL ROBERT G & ROSEMARIE |
COLE LISA HILL |
|||||
|
10/23/1989 |
|
Historical |
$6,000 |
SECRETARY OF HOUSING |
GILL ROBERT G & ROSEMARIE |
|||||
|
12/9/1988 |
|
Historical |
$0 |
ASSOCIATES FINANCIAL SERVICES |
SECRETARY OF HOUSING |
|||||
|
10/1/1986 |
|
Historical |
$0 |
SCOTT ZELMA |
ASSOCIATES FINANCIAL SERVICES |
|||||
| Last Mailed Notice of Value (N.O.V.) Information/History | ||||||||
|---|---|---|---|---|---|---|---|---|
| Year | Date | Market Value | Taxable Market Value | Gross Assessed | Exemption | Net Assessed | ||
|
2026 |
02/23/2026 |
134,500 |
74,102 |
8,150 |
1,000 |
7,150 |
||
|
2025 |
02/14/2025 |
134,000 |
71,944 |
7,913 |
1,000 |
6,913 |
||
|
2024 |
02/13/2024 |
126,000 |
69,849 |
7,682 |
1,000 |
6,682 |
||
|
2023 |
02/14/2023 |
108,000 |
67,815 |
7,459 |
1,000 |
6,459 |
||
|
2022 |
03/15/2022 |
91,000 |
65,840 |
7,240 |
1,000 |
6,240 |
||
| Property Building Permit History | |||||||||||
|---|---|---|---|---|---|---|---|---|---|---|---|
| Issued | Permit # | Provided by | Bldg # | Description | Est Construction Cost | Status | |||||
| No Building Permit records returned. | |||||||||||
| Click button on building number to access detailed information: | ||||||
|---|---|---|---|---|---|---|
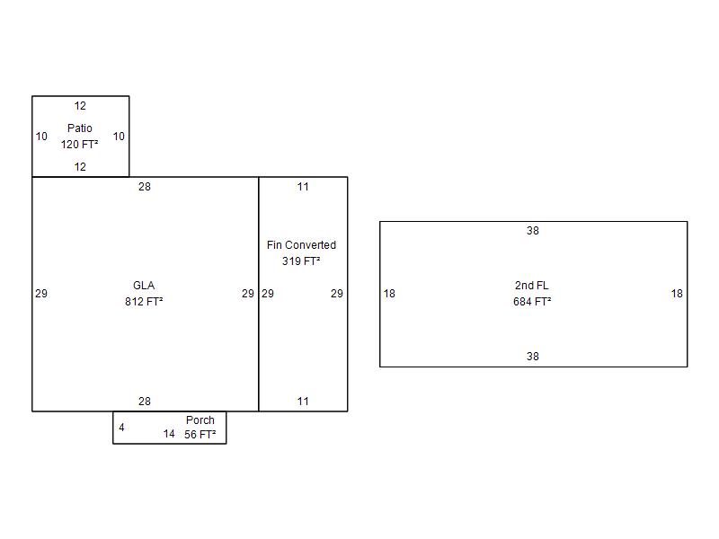
| Bldg # | Vacant/Improved Land | Bldg Description | Year Built | SqFt | # Stories | |
|
1 |
Improved |
2 Story |
1970 |
1,496 |
2 Stories |
|