|
|
|
| Larry Stein Oklahoma County Assessor (405) 713-1200 - Public Access System |
|
|
|
|
|
|
| Real Property Display - Screen Produced 3/20/2026 5:53:52 AM | ||||
|---|---|---|---|---|
| Account: R131731805 | Type: Residential | Location: |
3225 NE 16TH ST |
|
| Building Name/Occupant: |
|
OKLAHOMA CITY |
||
| Owner Name 1: | ANGLINS TERRY |
Parcel PIN#: |
2520-13-173-1805 |
|
| Owner Name 2: | 1/4 section #: |
2520 |
||
| Owner Name 3: | Parent Acct: |
|
||
| Billing Address: | 2802 TURLEY PL, Unit 3 | Tax District: |
|
|
| City, State, Zip | MIDWEST CITY, OK 73110 | School System: |
Oklahoma City #89 |
|
|
Country: (If noted) |
Land Size: |
0.2077 Acres |
||
|
Land Value: 16,308 |
|
|||
|
Sect 30-T12N-R2W Qtr NW |
GARDEN OAKS ADDITION
Block
006
Lot
000
|
|||
| Full Legal Description: GARDEN OAKS ADDITION 006 000 E12FT OF LOT 9 ALL OF LOT 10 |
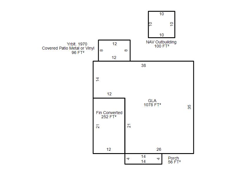
| Photo & Sketch (if available) | Comp Sales (ordered by relevancy) |
|
||||||||||||||||||
|
||||||||||||||||||||
| Value History (*The County Treasurer 405-713-1300 posts & collects actual tax amounts. Contact information HERE) | |||||||||||||
|---|---|---|---|---|---|---|---|---|---|---|---|---|---|
| Year | Market Value | Taxable Mkt Value | Gross Assessed | Exemption | Net Assessed | Millage | Est. Tax | Tax Savings | |||||
|
2025 |
99,000 |
42,163 |
4,637 |
0 |
4,637 |
122.90 |
$570 |
$768 |
|||||
|
2024 |
93,000 |
40,156 |
4,416 |
0 |
4,416 |
123.89 |
$547 |
$720 |
|||||
|
2023 |
80,500 |
38,244 |
4,206 |
0 |
4,206 |
122.82 |
$517 |
$571 |
|||||
|
2022 |
67,000 |
36,423 |
4,005 |
0 |
4,005 |
117.63 |
$471 |
$396 |
|||||
|
2021 |
53,000 |
34,689 |
3,815 |
0 |
3,815 |
117.70 |
$449 |
$237 |
|||||
| Property Account Status/Adjustments/Exemptions | ||||||
|---|---|---|---|---|---|---|
| Account # | Exemption Description | Amount | ||||
| No adjustment/exemption records returned. | ||||||
| Property Deed Transaction History (Recorded in the County Clerk's Office) | ||||||||||
|---|---|---|---|---|---|---|---|---|---|---|
| Date | Type | Book | Page | Price | Grantor | Grantee | ||||
|
11/15/2021 |
|
Hmstd Off & |
$0 |
ANGLIN GERHARD |
ANGLINS TERRY |
|||||
|
1/26/2015 |
|
Hmstd Off & |
$0 |
ANGLIN MARY E |
ANGLIN GERHARD |
|||||
|
11/6/2013 |
|
Hmstd Off & |
$0 |
MADISON LATOYA |
ANGLIN MARY E |
|||||
|
9/30/2013 |
|
Hmstd Off & |
$0 |
ANGLIN MARY E |
MADISON LATOYA |
|||||
|
9/3/2013 |
|
Deeds |
$0 |
ANGLIN MARY E ANGLIN CHARLES A |
ANGLIN MARY E |
|||||
| Last Mailed Notice of Value (N.O.V.) Information/History | ||||||||
|---|---|---|---|---|---|---|---|---|
| Year | Date | Market Value | Taxable Market Value | Gross Assessed | Exemption | Net Assessed | ||
|
2026 |
02/23/2026 |
99,000 |
44,271 |
4,868 |
0 |
4,868 |
||
|
2025 |
02/14/2025 |
99,000 |
42,163 |
4,637 |
0 |
4,637 |
||
|
2024 |
02/13/2024 |
93,000 |
40,156 |
4,416 |
0 |
4,416 |
||
|
2023 |
02/14/2023 |
80,500 |
38,244 |
4,206 |
0 |
4,206 |
||
|
2022 |
03/15/2022 |
67,000 |
36,423 |
4,005 |
0 |
4,005 |
||
| Property Building Permit History | |||||||||||
|---|---|---|---|---|---|---|---|---|---|---|---|
| Issued | Permit # | Provided by | Bldg # | Description | Est Construction Cost | Status | |||||
| No Building Permit records returned. | |||||||||||
| Click button on building number to access detailed information: | ||||||
|---|---|---|---|---|---|---|
| Bldg # | Vacant/Improved Land | Bldg Description | Year Built | SqFt | # Stories | |
|
1 |
Improved |
Ranch 1 Story |
1955 |
1,078 |
1 Stories |
|