|
|
|
| Larry Stein Oklahoma County Assessor (405) 713-1200 - Public Access System |
|
|
|
|
|
|
| Real Property Display - Screen Produced 3/20/2026 5:53:52 AM | ||||
|---|---|---|---|---|
| Account: R131734985 | Type: Residential | Location: |
3305 NE 16TH ST |
|
| Building Name/Occupant: |
|
OKLAHOMA CITY |
||
| Owner Name 1: | MILLER EVA N |
Parcel PIN#: |
2520-13-173-4985 |
|
| Owner Name 2: | 1/4 section #: |
2520 |
||
| Owner Name 3: | Parent Acct: |
|
||
| Billing Address: | 205 NW 120TH ST | Tax District: |
|
|
| City, State, Zip | OKLAHOMA CITY, OK 73114-7212 | School System: |
Oklahoma City #89 |
|
|
Country: (If noted) |
Land Size: |
0.1767 Acres |
||
|
Land Value: 13,851 |
|
|||
|
Sect 30-T12N-R2W Qtr NW |
GARDEN OAKS ADDITION
Block
019
Lot
000
|
|||
| Full Legal Description: GARDEN OAKS ADDITION 019 000 LOT 18 & E4FT OF LOT 19 |
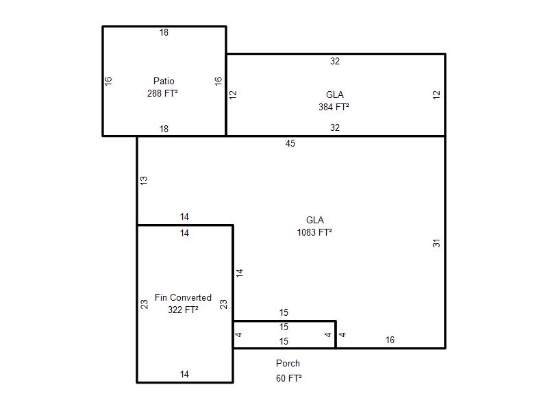
| Photo & Sketch (if available) | Comp Sales (ordered by relevancy) |
|
||||||||||||||||||
|
||||||||||||||||||||
| Value History (*The County Treasurer 405-713-1300 posts & collects actual tax amounts. Contact information HERE) | |||||||||||||
|---|---|---|---|---|---|---|---|---|---|---|---|---|---|
| Year | Market Value | Taxable Mkt Value | Gross Assessed | Exemption | Net Assessed | Millage | Est. Tax | Tax Savings | |||||
|
2025 |
126,000 |
77,201 |
8,491 |
0 |
8,491 |
122.90 |
$1,044 |
$660 |
|||||
|
2024 |
118,500 |
73,525 |
8,087 |
0 |
8,087 |
123.89 |
$1,002 |
$613 |
|||||
|
2023 |
103,000 |
70,024 |
7,701 |
0 |
7,701 |
122.82 |
$946 |
$446 |
|||||
|
2022 |
86,000 |
66,690 |
7,335 |
0 |
7,335 |
117.63 |
$863 |
$250 |
|||||
|
2021 |
68,500 |
63,515 |
6,986 |
0 |
6,986 |
117.70 |
$822 |
$65 |
|||||
| Property Account Status/Adjustments/Exemptions | ||
|---|---|---|
| Account # | Exemption Description | Amount |
|
R131734985 |
5% Capped Account |
0 |
| Property Deed Transaction History (Recorded in the County Clerk's Office) | |||||||
|---|---|---|---|---|---|---|---|
| Date | Type | Book | Page | Price | Grantor | Grantee | |
|
8/7/2013 |
|
Hmstd Off & |
$0 |
MILLER LAVERNE R ESTATE OF MILLER KELLY D ADMINISTRATIX |
MILLER EVA N |
||
|
10/31/2012 |
|
Hmstd Off & |
$0 |
MILLER ROBERT E & LAVERNE R |
MILLER LAVERNE R ESTATE OF MILLER KELLY D ADMINISTRATIX |
||
|
11/11/1911 |
|
Historical |
$0 |
|
MILLER ROBERT E & LAVERNE R |
||
| Last Mailed Notice of Value (N.O.V.) Information/History | ||||||||
|---|---|---|---|---|---|---|---|---|
| Year | Date | Market Value | Taxable Market Value | Gross Assessed | Exemption | Net Assessed | ||
|
2026 |
02/23/2026 |
124,000 |
81,061 |
8,916 |
0 |
8,916 |
||
|
2025 |
02/14/2025 |
126,000 |
77,201 |
8,491 |
0 |
8,491 |
||
|
2024 |
02/13/2024 |
118,500 |
73,525 |
8,087 |
0 |
8,087 |
||
|
2023 |
02/14/2023 |
103,000 |
70,024 |
7,701 |
0 |
7,701 |
||
|
2022 |
03/15/2022 |
86,000 |
66,690 |
7,335 |
0 |
7,335 |
||
| Property Building Permit History | |||||||||||
|---|---|---|---|---|---|---|---|---|---|---|---|
| Issued | Permit # | Provided by | Bldg # | Description | Est Construction Cost | Status | |||||
| No Building Permit records returned. | |||||||||||
| Click button on building number to access detailed information: | ||||||
|---|---|---|---|---|---|---|
| Bldg # | Vacant/Improved Land | Bldg Description | Year Built | SqFt | # Stories | |
|
1 |
Improved |
Ranch 1 Story |
1956 |
1,467 |
1 Stories |
|