|
|
|
| Larry Stein Oklahoma County Assessor (405) 713-1200 - Public Access System |
|
|
|
|
|
|
| Real Property Display - Screen Produced 3/22/2026 12:33:45 PM | ||||
|---|---|---|---|---|
| Account: R154111245 | Type: Residential | Location: |
4816 KOELSCH DR |
|
| Building Name/Occupant: |
|
DEL CITY |
||
| Owner Name 1: | STAATS MAX & COLETTE M |
Parcel PIN#: |
2526-15-411-1245 |
|
| Owner Name 2: | STAATS RACHEL | 1/4 section #: |
2526 |
|
| Owner Name 3: | Parent Acct: |
|
||
| Billing Address: | 4816 KOELSCH DR | Tax District: |
|
|
| City, State, Zip | OKLAHOMA CITY, OK 73117 | School System: |
Mid-Del #52 |
|
|
Country: (If noted) |
Land Size: |
0.1653 Acres |
||
|
Land Value: 21,600 |
|
|||
|
Sect 32-T12N-R2W Qtr SE |
WOODCREST HEIGHTS
Block
001
Lot
025
|
|||
| Full Legal Description: WOODCREST HEIGHTS 001 025 |
| Photo & Sketch (if available) | Comp Sales (ordered by relevancy) |
|
||||||||||||||||||
|
||||||||||||||||||||
| Value History (*The County Treasurer 405-713-1300 posts & collects actual tax amounts. Contact information HERE) | |||||||||||||
|---|---|---|---|---|---|---|---|---|---|---|---|---|---|
| Year | Market Value | Taxable Mkt Value | Gross Assessed | Exemption | Net Assessed | Millage | Est. Tax | Tax Savings | |||||
|
2025 |
165,500 |
123,242 |
13,555 |
1,000 |
12,555 |
114.72 |
$1,440 |
$648 |
|||||
|
2024 |
160,500 |
119,653 |
13,161 |
1,000 |
12,161 |
117.21 |
$1,425 |
$644 |
|||||
|
2023 |
144,500 |
116,168 |
12,778 |
1,000 |
11,778 |
112.46 |
$1,325 |
$463 |
|||||
|
2022 |
132,000 |
112,785 |
12,406 |
1,000 |
11,406 |
110.76 |
$1,263 |
$345 |
|||||
|
2021 |
109,500 |
109,500 |
12,045 |
1,000 |
11,045 |
114.70 |
$1,267 |
$115 |
|||||
| Property Account Status/Adjustments/Exemptions | ||
|---|---|---|
| Account # | Exemption Description | Amount |
|
R154111245 |
3% Cap Homestead |
0 |
|
R154111245 |
Homestead |
1,000 |
| Property Deed Transaction History (Recorded in the County Clerk's Office) | ||||||||||
|---|---|---|---|---|---|---|---|---|---|---|
| Date | Type | Book | Page | Price | Grantor | Grantee | ||||
|
9/4/2020 |
|
Deeds |
$110,000 |
VANDUSEN TYLER R |
STAATS MAX & COLETTE M |
|||||
|
9/13/2016 |
|
Deeds |
$79,500 |
SCHAFFLER KRISTOFFER SCHUE COURTNEY A |
VANDUSEN TYLER R |
|||||
|
3/22/2013 |
|
Deeds |
$70,000 |
DOMENACK ENTERPRISES LLC |
SCHAFFLER KRISTOFFER SCHUE COURTNEY A |
|||||
|
7/9/2012 |
|
Deeds |
$28,000 |
BANK OF AMERICA NA TRS |
DOMENACK ENTERPRISES LLC |
|||||
|
2/14/2012 |
|
Hmstd Off & |
$0 |
WILSON STEPHEN M & SHANDA S |
BANK OF AMERICA NA TRS |
|||||
| Last Mailed Notice of Value (N.O.V.) Information/History | ||||||||
|---|---|---|---|---|---|---|---|---|
| Year | Date | Market Value | Taxable Market Value | Gross Assessed | Exemption | Net Assessed | ||
|
2026 |
02/23/2026 |
167,000 |
126,939 |
13,962 |
1,000 |
12,962 |
||
|
2025 |
02/14/2025 |
165,500 |
123,242 |
13,555 |
1,000 |
12,555 |
||
|
2024 |
02/13/2024 |
160,500 |
119,653 |
13,161 |
1,000 |
12,161 |
||
|
2023 |
02/14/2023 |
144,500 |
116,168 |
12,778 |
1,000 |
11,778 |
||
|
2022 |
03/15/2022 |
132,000 |
112,785 |
12,406 |
1,000 |
11,406 |
||
| Property Building Permit History | |||||||||||
|---|---|---|---|---|---|---|---|---|---|---|---|
| Issued | Permit # | Provided by | Bldg # | Description | Est Construction Cost | Status | |||||
| No Building Permit records returned. | |||||||||||
| Click button on building number to access detailed information: | ||||||
|---|---|---|---|---|---|---|
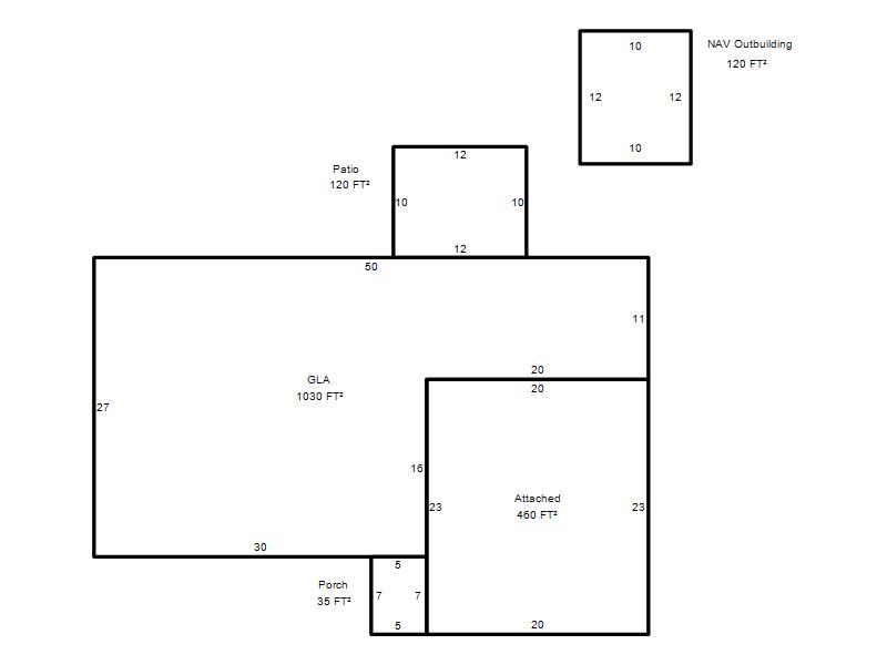
| Bldg # | Vacant/Improved Land | Bldg Description | Year Built | SqFt | # Stories | |
|
1 |
Improved |
Ranch 1 Story |
1964 |
1,030 |
1 Stories |
|