|
|
|
| Larry Stein Oklahoma County Assessor (405) 713-1200 - Public Access System |
|
|
|
|
|
|
| Real Property Display - Screen Produced 3/22/2026 12:31:52 PM | ||||
|---|---|---|---|---|
| Account: R154111555 | Type: Residential | Location: |
4737 CREST PL |
|
| Building Name/Occupant: |
|
DEL CITY |
||
| Owner Name 1: | JEFFERSON TRAVIS L |
Parcel PIN#: |
2526-15-411-1555 |
|
| Owner Name 2: | 1/4 section #: |
2526 |
||
| Owner Name 3: | Parent Acct: |
|
||
| Billing Address: | 4737 CREST PL | Tax District: |
|
|
| City, State, Zip | OKLAHOMA CITY, OK 73117-8402 | School System: |
Mid-Del #52 |
|
|
Country: (If noted) |
Land Size: |
0.2507 Acres |
||
|
Land Value: 32,760 |
|
|||
|
Sect 32-T12N-R2W Qtr SE |
WOODCREST HEIGHTS
Block
002
Lot
014
|
|||
| Full Legal Description: WOODCREST HEIGHTS 002 014 |
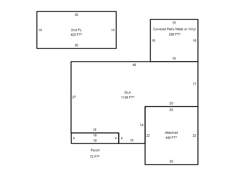
| Photo & Sketch (if available) | Comp Sales (ordered by relevancy) |
|
||||||||||||||||||
|
||||||||||||||||||||
| Value History (*The County Treasurer 405-713-1300 posts & collects actual tax amounts. Contact information HERE) | |||||||||||||
|---|---|---|---|---|---|---|---|---|---|---|---|---|---|
| Year | Market Value | Taxable Mkt Value | Gross Assessed | Exemption | Net Assessed | Millage | Est. Tax | Tax Savings | |||||
|
2025 |
175,000 |
114,706 |
12,617 |
1,000 |
11,617 |
114.72 |
$1,333 |
$876 |
|||||
|
2024 |
172,000 |
111,366 |
12,249 |
1,000 |
11,249 |
117.21 |
$1,319 |
$899 |
|||||
|
2023 |
155,500 |
108,123 |
11,893 |
1,000 |
10,893 |
112.46 |
$1,225 |
$699 |
|||||
|
2022 |
143,500 |
104,974 |
11,546 |
1,000 |
10,546 |
110.76 |
$1,168 |
$580 |
|||||
|
2021 |
118,500 |
101,917 |
11,210 |
1,000 |
10,210 |
114.70 |
$1,171 |
$324 |
|||||
| Property Account Status/Adjustments/Exemptions | ||
|---|---|---|
| Account # | Exemption Description | Amount |
|
R154111555 |
3% Cap Homestead |
0 |
|
R154111555 |
Homestead |
1,000 |
| Property Deed Transaction History (Recorded in the County Clerk's Office) | |||||||
|---|---|---|---|---|---|---|---|
| Date | Type | Book | Page | Price | Grantor | Grantee | |
|
12/30/2004 |
|
Deeds |
$97,000 |
NICHOLS JAMES R & P A |
JEFFERSON TRAVIS L |
||
|
12/30/2004 |
|
Deeds |
$0 |
NICHOLS JAMES R & PATRICIA A |
JEFFERSON TRAVIS L |
||
|
11/11/1911 |
|
Historical |
$0 |
|
NICHOLS JAMES R & P A |
||
| Last Mailed Notice of Value (N.O.V.) Information/History | ||||||||
|---|---|---|---|---|---|---|---|---|
| Year | Date | Market Value | Taxable Market Value | Gross Assessed | Exemption | Net Assessed | ||
|
2026 |
02/23/2026 |
172,000 |
118,147 |
12,995 |
1,000 |
11,995 |
||
|
2025 |
02/14/2025 |
175,000 |
114,706 |
12,617 |
1,000 |
11,617 |
||
|
2024 |
02/13/2024 |
172,000 |
111,366 |
12,249 |
1,000 |
11,249 |
||
|
2023 |
02/14/2023 |
155,500 |
108,123 |
11,893 |
1,000 |
10,893 |
||
|
2022 |
03/15/2022 |
143,500 |
104,974 |
11,546 |
1,000 |
10,546 |
||
| Property Building Permit History | |||||||||||
|---|---|---|---|---|---|---|---|---|---|---|---|
| Issued | Permit # | Provided by | Bldg # | Description | Est Construction Cost | Status | |||||
| No Building Permit records returned. | |||||||||||
| Click button on building number to access detailed information: | ||||||
|---|---|---|---|---|---|---|
| Bldg # | Vacant/Improved Land | Bldg Description | Year Built | SqFt | # Stories | |
|
1 |
Improved |
1½ Story Fin |
1965 |
1,556 |
1.5 Stories |
|