|
|
|
| Larry Stein Oklahoma County Assessor (405) 713-1200 - Public Access System |
|
|
|
|
|
|
| Real Property Display - Screen Produced 4/10/2026 9:33:16 PM | ||||
|---|---|---|---|---|
| Account: R126991140 | Type: Residential | Location: |
629 CRESCENT CIR |
|
| Building Name/Occupant: |
|
MIDWEST CITY |
||
| Owner Name 1: | JACKSON COLEMAN JOYCE B TRS |
Parcel PIN#: |
2529-12-699-1140 |
|
| Owner Name 2: | JACKSON COLEMAN JOYCE B LIV TRUST | 1/4 section #: |
2529 |
|
| Owner Name 3: | Parent Acct: |
|
||
| Billing Address: | 629 CRESCENT CIR | Tax District: |
|
|
| City, State, Zip | MIDWEST CITY, OK 73110-1240 | School System: |
Mid-Del #52 |
|
|
Country: (If noted) |
Land Size: |
0.1928 Acres |
||
|
Land Value: 48,468 |
|
|||
|
Sect 33-T12N-R2W Qtr NE |
CRESCENT COURT TO MWC
Block
001
Lot
015
|
|||
| Full Legal Description: CRESCENT COURT TO MWC 001 015 |
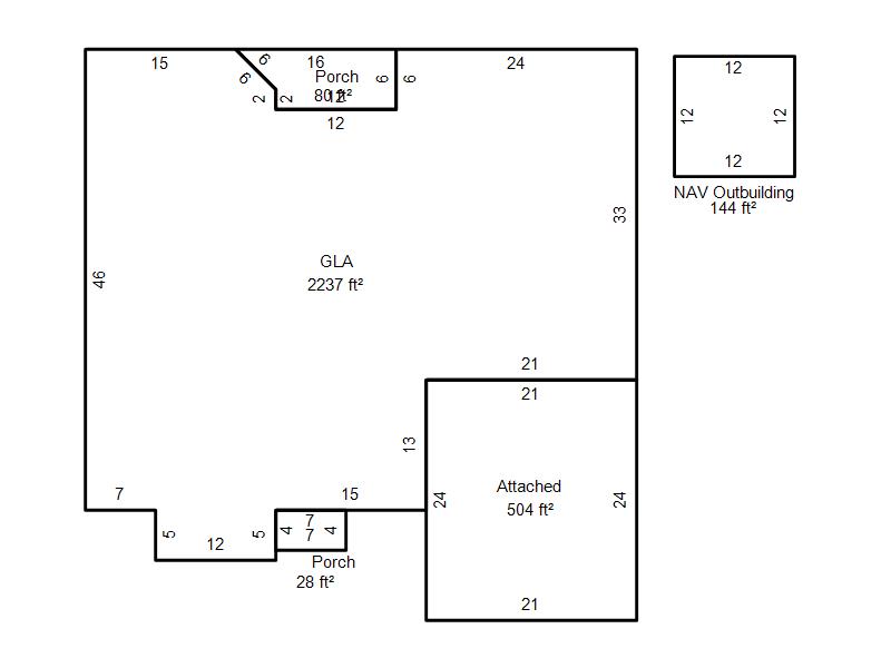
| Photo & Sketch (if available) | Comp Sales (ordered by relevancy) |
|
||||||||||||||||||
|
||||||||||||||||||||
| Value History (*The County Treasurer 405-713-1300 posts & collects actual tax amounts. Contact information HERE) | |||||||||||||
|---|---|---|---|---|---|---|---|---|---|---|---|---|---|
| Year | Market Value | Taxable Mkt Value | Gross Assessed | Exemption | Net Assessed | Millage | Est. Tax | Tax Savings | |||||
|
2026 |
269,500 |
190,843 |
20,992 |
20,992 |
0 |
119.58 |
$0 |
$3,545 |
|||||
|
2025 |
277,000 |
190,843 |
20,992 |
20,992 |
0 |
119.58 |
$0 |
$3,644 |
|||||
|
2024 |
284,000 |
190,843 |
20,992 |
20,992 |
0 |
122.51 |
$0 |
$3,827 |
|||||
|
2023 |
253,000 |
190,843 |
20,992 |
1,000 |
19,992 |
117.71 |
$2,353 |
$923 |
|||||
|
2022 |
230,500 |
190,843 |
20,992 |
1,000 |
19,992 |
116.64 |
$2,332 |
$625 |
|||||
| Property Account Status/Adjustments/Exemptions | ||
|---|---|---|
| Account # | Exemption Description | Amount |
|
R126991140 |
100% DAV Exemption |
100 |
|
R126991140 |
DAV Freeze Senior Valuation |
0 |
|
R126991140 |
3% Cap Homestead |
0 |
|
R126991140 |
DAV Homestead |
0 |
| Property Deed Transaction History (Recorded in the County Clerk's Office) | ||||||||||
|---|---|---|---|---|---|---|---|---|---|---|
| Date | Type | Book | Page | Price | Grantor | Grantee | ||||
|
3/5/2025 |
|
Deeds |
$0 |
JACKSON COLEMAN JOYCE B |
JACKSON COLEMAN JOYCE B TRS |
|||||
|
2/15/2013 |
|
Deeds |
$0 |
COLEMAN DON GILVERT COLEMAN JOYCE B JACKSON |
JACKSON COLEMAN JOYCE B |
|||||
|
1/19/2007 |
|
Deeds |
$179,000 |
MORGAN J E |
COLEMAN DON GILVERT COLEMAN JOYCE B JACKSON |
|||||
|
10/30/2006 |
|
Deeds |
$0 |
MORGAN MILDRED COX & J E |
MORGAN J E |
|||||
|
6/19/1996 |
|
Historical |
$139,000 |
MASON GEORGE S & ANN S CO TRS |
MORGAN MILDRED COX & J E |
|||||
| Last Mailed Notice of Value (N.O.V.) Information/History | ||||||||
|---|---|---|---|---|---|---|---|---|
| Year | Date | Market Value | Taxable Market Value | Gross Assessed | Exemption | Net Assessed | ||
|
2024 |
02/13/2024 |
284,000 |
190,843 |
20,992 |
1,000 |
19,992 |
||
|
2023 |
02/14/2023 |
253,000 |
190,843 |
20,992 |
1,000 |
19,992 |
||
|
2022 |
03/15/2022 |
230,500 |
190,843 |
20,992 |
1,000 |
19,992 |
||
|
2021 |
03/19/2021 |
216,000 |
190,843 |
20,992 |
1,000 |
19,992 |
||
|
2020 |
03/10/2020 |
203,000 |
190,843 |
20,992 |
1,000 |
19,992 |
||
| Property Building Permit History | ||||||
|---|---|---|---|---|---|---|
| Issued | Permit # | Provided by | Bldg # | Description | Est Construction Cost | Status |
|
6/11/1997 |
10216712 |
MIDWEST CITY |
1 |
Storage Buil |
1,200 |
Inactive |
|
12/6/1994 |
10216711 |
MIDWEST CITY |
1 |
Main Dwellin |
135,000 |
Inactive |
| Click button on building number to access detailed information: | ||||||
|---|---|---|---|---|---|---|
| Bldg # | Vacant/Improved Land | Bldg Description | Year Built | SqFt | # Stories | |
|
1 |
Improved |
Ranch 1 Story |
1995 |
2,237 |
1 Stories |
|