|
|
|
| Larry Stein Oklahoma County Assessor (405) 713-1200 - Public Access System |
|
|
|
|
|
|
| Real Property Display - Screen Produced 2/28/2026 2:32:25 AM | ||||
|---|---|---|---|---|
| Account: R150571115 | Type: Residential | Location: |
3204 N IDYLWILD DR |
|
| Building Name/Occupant: |
|
MIDWEST CITY |
||
| Owner Name 1: | GRISSOM SHAWN |
Parcel PIN#: |
2530-15-057-1115 |
|
| Owner Name 2: | 1/4 section #: |
2530 |
||
| Owner Name 3: | Parent Acct: |
|
||
| Billing Address: | 3204 IDYLWILD DR | Tax District: |
|
|
| City, State, Zip | MIDWEST CITY , OK 73110 | School System: |
Mid-Del #52 |
|
|
Country: (If noted) |
Land Size: |
0.1653 Acres |
||
|
Land Value: 25,200 |
|
|||
|
Sect 33-T12N-R2W Qtr SE |
MEADOWOOD 3RD
Block
001
Lot
012
|
|||
| Full Legal Description: MEADOWOOD 3RD 001 012 |
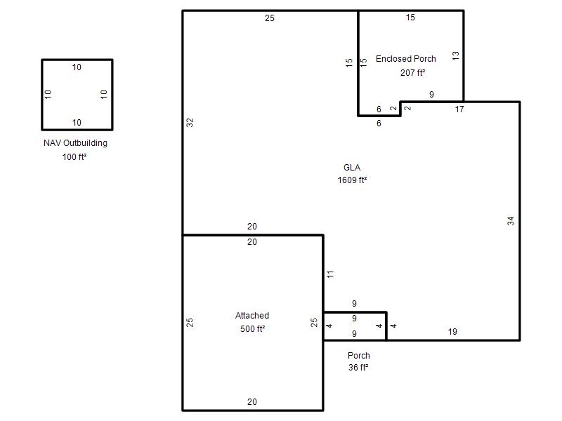
| Photo & Sketch (if available) | Comp Sales (ordered by relevancy) |
|
||||||||||||||||||
|
||||||||||||||||||||
| Value History (*The County Treasurer 405-713-1300 posts & collects actual tax amounts. Contact information HERE) | |||||||||||||
|---|---|---|---|---|---|---|---|---|---|---|---|---|---|
| Year | Market Value | Taxable Mkt Value | Gross Assessed | Exemption | Net Assessed | Millage | Est. Tax | Tax Savings | |||||
|
2025 |
218,500 |
218,500 |
24,035 |
0 |
24,035 |
119.58 |
$2,874 |
$0 |
|||||
|
2024 |
214,500 |
214,500 |
23,595 |
0 |
23,595 |
122.51 |
$2,891 |
$0 |
|||||
|
2023 |
204,000 |
146,212 |
16,082 |
1,000 |
15,082 |
117.71 |
$1,775 |
$866 |
|||||
|
2022 |
183,000 |
141,954 |
15,613 |
1,000 |
14,613 |
116.64 |
$1,705 |
$643 |
|||||
|
2021 |
155,000 |
137,820 |
15,159 |
1,000 |
14,159 |
119.45 |
$1,691 |
$345 |
|||||
| Property Account Status/Adjustments/Exemptions | ||
|---|---|---|
| Account # | Exemption Description | Amount |
|
R150571115 |
5% Capped Account |
0 |
| Property Deed Transaction History (Recorded in the County Clerk's Office) | ||||||||||
|---|---|---|---|---|---|---|---|---|---|---|
| Date | Type | Book | Page | Price | Grantor | Grantee | ||||
|
8/3/2023 |
|
Deeds |
$180,000 |
WEINRICH ENTERPRISES LLC |
GRISSOM SHAWN |
|||||
|
4/11/2023 |
|
Deeds |
$125,000 |
LOWERY RACHEL |
WEINRICH ENTERPRISES LLC |
|||||
|
8/13/2021 |
|
Deeds |
$0 |
LOWERY RACHEL & DANIEL |
LOWERY RACHEL |
|||||
|
6/28/2011 |
|
Deeds |
$0 |
VINSON RACHEL |
LOWERY RACHEL & DANIEL |
|||||
|
11/1/2002 |
|
Deeds |
$92,500 |
PIERCE LELAND CRAIG |
VINSON RACHEL |
|||||
| Last Mailed Notice of Value (N.O.V.) Information/History | ||||||||
|---|---|---|---|---|---|---|---|---|
| Year | Date | Market Value | Taxable Market Value | Gross Assessed | Exemption | Net Assessed | ||
|
2025 |
02/14/2025 |
218,500 |
218,500 |
24,035 |
0 |
24,035 |
||
|
2024 |
02/13/2024 |
214,500 |
214,500 |
23,595 |
0 |
23,595 |
||
|
2023 |
02/14/2023 |
204,000 |
146,212 |
16,082 |
1,000 |
15,082 |
||
|
2022 |
03/15/2022 |
183,000 |
141,954 |
15,613 |
1,000 |
14,613 |
||
|
2021 |
03/19/2021 |
155,000 |
137,820 |
15,160 |
1,000 |
14,160 |
||
| Property Building Permit History | |||||||||||
|---|---|---|---|---|---|---|---|---|---|---|---|
| Issued | Permit # | Provided by | Bldg # | Description | Est Construction Cost | Status | |||||
| No Building Permit records returned. | |||||||||||
| Click button on building number to access detailed information: | ||||||
|---|---|---|---|---|---|---|
| Bldg # | Vacant/Improved Land | Bldg Description | Year Built | SqFt | # Stories | |
|
1 |
Improved |
Ranch 1 Story |
1964 |
1,609 |
1 Stories |
|