|
|
|
| Larry Stein Oklahoma County Assessor (405) 713-1200 - Public Access System |
|
|
|
|
|
|
| Real Property Display - Screen Produced 2/28/2026 2:32:26 AM | ||||
|---|---|---|---|---|
| Account: R150571165 | Type: Residential | Location: |
3304 N IDYLWILD DR |
|
| Building Name/Occupant: |
|
MIDWEST CITY |
||
| Owner Name 1: | PONTIOUS GLEN A |
Parcel PIN#: |
2530-15-057-1165 |
|
| Owner Name 2: | 1/4 section #: |
2530 |
||
| Owner Name 3: | Parent Acct: |
|
||
| Billing Address: | 3304 N IDYLWILD DR | Tax District: |
|
|
| City, State, Zip | MIDWEST CITY, OK 73110-1643 | School System: |
Mid-Del #52 |
|
|
Country: (If noted) |
Land Size: |
0.1806 Acres |
||
|
Land Value: 27,528 |
|
|||
|
Sect 33-T12N-R2W Qtr SE |
MEADOWOOD 3RD
Block
001
Lot
017
|
|||
| Full Legal Description: MEADOWOOD 3RD 001 017 |
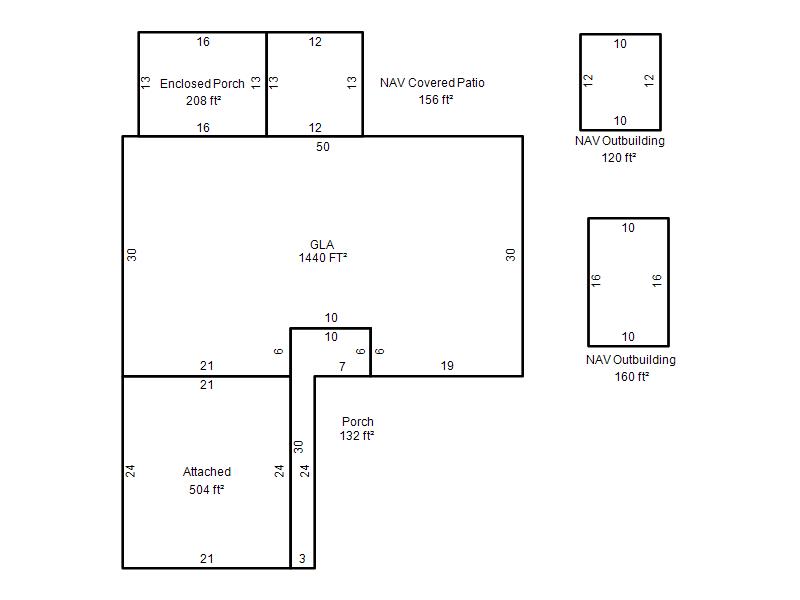
| Photo & Sketch (if available) | Comp Sales (ordered by relevancy) |
|
||||||||||||||||||
|
||||||||||||||||||||
| Value History (*The County Treasurer 405-713-1300 posts & collects actual tax amounts. Contact information HERE) | |||||||||||||
|---|---|---|---|---|---|---|---|---|---|---|---|---|---|
| Year | Market Value | Taxable Mkt Value | Gross Assessed | Exemption | Net Assessed | Millage | Est. Tax | Tax Savings | |||||
|
2025 |
180,000 |
128,416 |
14,125 |
1,000 |
13,125 |
119.58 |
$1,570 |
$798 |
|||||
|
2024 |
175,500 |
124,676 |
13,713 |
1,000 |
12,713 |
122.51 |
$1,558 |
$807 |
|||||
|
2023 |
166,500 |
121,045 |
13,314 |
1,000 |
12,314 |
117.71 |
$1,450 |
$706 |
|||||
|
2022 |
149,000 |
117,520 |
12,926 |
1,000 |
11,926 |
116.64 |
$1,391 |
$521 |
|||||
|
2021 |
126,000 |
114,098 |
12,550 |
1,000 |
11,550 |
119.45 |
$1,380 |
$276 |
|||||
| Property Account Status/Adjustments/Exemptions | ||
|---|---|---|
| Account # | Exemption Description | Amount |
|
R150571165 |
Homestead |
1,000 |
|
R150571165 |
3% Cap Homestead |
0 |
| Property Deed Transaction History (Recorded in the County Clerk's Office) | ||||||||||
|---|---|---|---|---|---|---|---|---|---|---|
| Date | Type | Book | Page | Price | Grantor | Grantee | ||||
|
2/10/2012 |
|
Hmstd Off & |
$0 |
BROWN SALLY |
PONTIOUS GLEN A |
|||||
|
1/6/2012 |
|
Hmstd Off & |
$0 |
DAWSON ROBERT RALPH |
BROWN SALLY |
|||||
|
7/13/2009 |
|
Deeds |
$22,000 |
DAWSON ROCKLEIGH SHERWOOD JR DAWSON ROBERT RALPH |
DAWSON ROBERT RALPH |
|||||
|
9/29/2008 |
|
Hmstd Off & |
$0 |
DAWSON ELLEN S |
DAWSON ROCKLEIGH SHERWOOD JR DAWSON ROBERT RALPH |
|||||
|
4/16/1992 |
|
Historical |
$70,000 |
LAMB Q D & VIRGINIA S |
DAWSON ELLEN S |
|||||
| Last Mailed Notice of Value (N.O.V.) Information/History | ||||||||
|---|---|---|---|---|---|---|---|---|
| Year | Date | Market Value | Taxable Market Value | Gross Assessed | Exemption | Net Assessed | ||
|
2026 |
02/23/2026 |
174,000 |
132,268 |
14,548 |
1,000 |
13,548 |
||
|
2025 |
02/14/2025 |
180,000 |
128,416 |
14,125 |
1,000 |
13,125 |
||
|
2024 |
02/13/2024 |
175,500 |
124,676 |
13,713 |
1,000 |
12,713 |
||
|
2023 |
02/14/2023 |
166,500 |
121,045 |
13,314 |
1,000 |
12,314 |
||
|
2022 |
03/15/2022 |
149,000 |
117,520 |
12,926 |
1,000 |
11,926 |
||
| Property Building Permit History | |||||||||||
|---|---|---|---|---|---|---|---|---|---|---|---|
| Issued | Permit # | Provided by | Bldg # | Description | Est Construction Cost | Status | |||||
| No Building Permit records returned. | |||||||||||
| Click button on building number to access detailed information: | ||||||
|---|---|---|---|---|---|---|
| Bldg # | Vacant/Improved Land | Bldg Description | Year Built | SqFt | # Stories | |
|
1 |
Improved |
Ranch 1 Story |
1964 |
1,440 |
1 Stories |
|