|
|
|
| Larry Stein Oklahoma County Assessor (405) 713-1200 - Public Access System |
|
|
|
|
|
|
| Real Property Display - Screen Produced 2/28/2026 2:32:26 AM | ||||
|---|---|---|---|---|
| Account: R150571565 | Type: Residential | Location: |
704 FAIRLANE DR |
|
| Building Name/Occupant: |
|
MIDWEST CITY |
||
| Owner Name 1: | YANG ZHIPENG |
Parcel PIN#: |
2530-15-057-1565 |
|
| Owner Name 2: | WANG MEIHUA | 1/4 section #: |
2530 |
|
| Owner Name 3: | Parent Acct: |
|
||
| Billing Address: | 704 FAIRLANE DR | Tax District: |
|
|
| City, State, Zip | MIDWEST CITY, OK 73110-1628 | School System: |
Mid-Del #52 |
|
|
Country: (If noted) |
Land Size: |
0.1653 Acres |
||
|
Land Value: 25,200 |
|
|||
|
Sect 33-T12N-R2W Qtr SE |
MEADOWOOD 3RD
Block
003
Lot
026
|
|||
| Full Legal Description: MEADOWOOD 3RD 003 026 |
| Photo & Sketch (if available) | Comp Sales (ordered by relevancy) |
|
||||||||||||||||||
|
||||||||||||||||||||
| Value History (*The County Treasurer 405-713-1300 posts & collects actual tax amounts. Contact information HERE) | |||||||||||||
|---|---|---|---|---|---|---|---|---|---|---|---|---|---|
| Year | Market Value | Taxable Mkt Value | Gross Assessed | Exemption | Net Assessed | Millage | Est. Tax | Tax Savings | |||||
|
2025 |
199,500 |
172,933 |
19,021 |
0 |
19,021 |
119.58 |
$2,275 |
$349 |
|||||
|
2024 |
196,000 |
164,699 |
18,116 |
0 |
18,116 |
122.51 |
$2,220 |
$422 |
|||||
|
2023 |
185,500 |
156,857 |
17,253 |
0 |
17,253 |
117.71 |
$2,031 |
$371 |
|||||
|
2022 |
167,500 |
149,388 |
16,432 |
0 |
16,432 |
116.64 |
$1,917 |
$232 |
|||||
|
2021 |
145,000 |
142,275 |
15,650 |
0 |
15,650 |
119.45 |
$1,869 |
$36 |
|||||
| Property Account Status/Adjustments/Exemptions | ||
|---|---|---|
| Account # | Exemption Description | Amount |
|
R150571565 |
5% Capped Account |
0 |
| Property Deed Transaction History (Recorded in the County Clerk's Office) | |||||||
|---|---|---|---|---|---|---|---|
| Date | Type | Book | Page | Price | Grantor | Grantee | |
|
7/29/2019 |
|
Deeds |
$139,000 |
MERRIMAN WILLIAM E & LYNETTE L TRS |
YANG ZHIPENG |
||
|
12/2/2011 |
|
Deeds |
$0 |
MERRIMAN WILLIAM E & LYNETTE |
MERRIMAN WILLIAM E & LYNETTE L TRS |
||
|
5/11/1988 |
|
Historical |
$0 |
MERRIMAN WILLIAM E & LYNETTE |
MERRIMAN WILLIAM E & LYNETTE |
||
|
4/6/1988 |
|
Historical |
$67,000 |
RICHARDSON JACK K & J A |
MERRIMAN WILLIAM E & LYNETTE |
||
|
11/11/1911 |
|
Historical |
$0 |
|
RICHARDSON JACK K & J A |
||
| Last Mailed Notice of Value (N.O.V.) Information/History | ||||||||
|---|---|---|---|---|---|---|---|---|
| Year | Date | Market Value | Taxable Market Value | Gross Assessed | Exemption | Net Assessed | ||
|
2026 |
02/23/2026 |
198,500 |
181,579 |
19,973 |
0 |
19,973 |
||
|
2025 |
02/14/2025 |
199,500 |
172,933 |
19,021 |
0 |
19,021 |
||
|
2024 |
02/13/2024 |
196,000 |
164,699 |
18,116 |
0 |
18,116 |
||
|
2023 |
02/14/2023 |
185,500 |
156,857 |
17,253 |
0 |
17,253 |
||
|
2022 |
03/15/2022 |
167,500 |
149,388 |
16,432 |
0 |
16,432 |
||
| Property Building Permit History | |||||||||||
|---|---|---|---|---|---|---|---|---|---|---|---|
| Issued | Permit # | Provided by | Bldg # | Description | Est Construction Cost | Status | |||||
| No Building Permit records returned. | |||||||||||
| Click button on building number to access detailed information: | ||||||
|---|---|---|---|---|---|---|
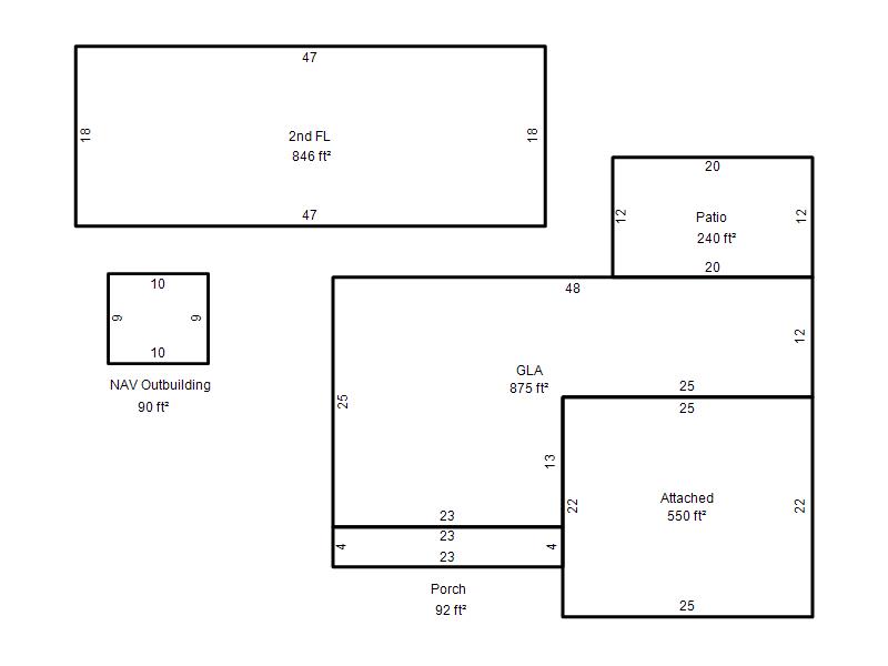
| Bldg # | Vacant/Improved Land | Bldg Description | Year Built | SqFt | # Stories | |
|
1 |
Improved |
2 Story |
1964 |
1,721 |
2 Stories |
|