|
|
|
| Larry Stein Oklahoma County Assessor (405) 713-1200 - Public Access System |
|
|
|
|
|
|
| Real Property Display - Screen Produced 2/28/2026 2:32:26 AM | ||||
|---|---|---|---|---|
| Account: R150572245 | Type: Residential | Location: |
3101 N IDYLWILD DR |
|
| Building Name/Occupant: |
|
MIDWEST CITY |
||
| Owner Name 1: | ROLAND CHELSIE P |
Parcel PIN#: |
2530-15-057-2245 |
|
| Owner Name 2: | 1/4 section #: |
2530 |
||
| Owner Name 3: | Parent Acct: |
|
||
| Billing Address: | 3101 N IDYLWILD DR | Tax District: |
|
|
| City, State, Zip | MIDWEST CITY, OK 73110-1639 | School System: |
Mid-Del #52 |
|
|
Country: (If noted) |
Land Size: |
0.1928 Acres |
||
|
Land Value: 29,400 |
|
|||
|
Sect 33-T12N-R2W Qtr SE |
MEADOWOOD 3RD
Block
005
Lot
013
|
|||
| Full Legal Description: MEADOWOOD 3RD 005 013 |
| Photo & Sketch (if available) | Comp Sales (ordered by relevancy) |
|
||||||||||||||||||
|
||||||||||||||||||||
| Value History (*The County Treasurer 405-713-1300 posts & collects actual tax amounts. Contact information HERE) | |||||||||||||
|---|---|---|---|---|---|---|---|---|---|---|---|---|---|
| Year | Market Value | Taxable Mkt Value | Gross Assessed | Exemption | Net Assessed | Millage | Est. Tax | Tax Savings | |||||
|
2025 |
197,000 |
145,939 |
16,052 |
1,000 |
15,052 |
119.58 |
$1,800 |
$791 |
|||||
|
2024 |
193,500 |
141,689 |
15,584 |
1,000 |
14,584 |
122.51 |
$1,787 |
$821 |
|||||
|
2023 |
184,000 |
137,563 |
15,131 |
1,000 |
14,131 |
117.71 |
$1,663 |
$719 |
|||||
|
2022 |
165,500 |
133,557 |
14,690 |
1,000 |
13,690 |
116.64 |
$1,597 |
$526 |
|||||
|
2021 |
143,000 |
129,667 |
14,263 |
1,000 |
13,263 |
119.45 |
$1,584 |
$295 |
|||||
| Property Account Status/Adjustments/Exemptions | ||
|---|---|---|
| Account # | Exemption Description | Amount |
|
R150572245 |
3% Cap Homestead |
0 |
|
R150572245 |
Homestead |
1,000 |
| Property Deed Transaction History (Recorded in the County Clerk's Office) | ||||||||||
|---|---|---|---|---|---|---|---|---|---|---|
| Date | Type | Book | Page | Price | Grantor | Grantee | ||||
|
11/26/2013 |
|
Deeds |
$105,000 |
BAYS CRISTIE D |
ROLAND CHELSIE P |
|||||
|
3/25/2010 |
|
Deeds |
$0 |
BAYS DANIEL R & CRISTIE D |
BAYS CRISTIE D |
|||||
|
3/26/2007 |
|
Deeds |
$108,500 |
STRAHORN JENNIFER |
BAYS DANIEL R & CRISTIE D |
|||||
|
5/28/2004 |
|
Deeds |
$80,000 |
HOLINSWORTH JOHN W III |
STRAHORN JENNIFER |
|||||
|
7/15/1992 |
|
Historical |
$0 |
HOLINSWORTH JOHN W & KRISTY J |
HOLINSWORTH JOHN W III |
|||||
| Last Mailed Notice of Value (N.O.V.) Information/History | ||||||||
|---|---|---|---|---|---|---|---|---|
| Year | Date | Market Value | Taxable Market Value | Gross Assessed | Exemption | Net Assessed | ||
|
2026 |
02/23/2026 |
194,500 |
150,317 |
16,534 |
1,000 |
15,534 |
||
|
2025 |
02/14/2025 |
197,000 |
145,939 |
16,052 |
1,000 |
15,052 |
||
|
2024 |
02/13/2024 |
193,500 |
141,689 |
15,584 |
1,000 |
14,584 |
||
|
2023 |
02/14/2023 |
184,000 |
137,563 |
15,131 |
1,000 |
14,131 |
||
|
2022 |
03/15/2022 |
165,500 |
133,557 |
14,690 |
1,000 |
13,690 |
||
| Property Building Permit History | |||||||||||
|---|---|---|---|---|---|---|---|---|---|---|---|
| Issued | Permit # | Provided by | Bldg # | Description | Est Construction Cost | Status | |||||
| No Building Permit records returned. | |||||||||||
| Click button on building number to access detailed information: | ||||||
|---|---|---|---|---|---|---|
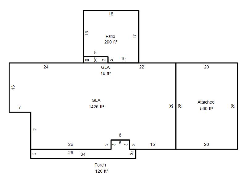
| Bldg # | Vacant/Improved Land | Bldg Description | Year Built | SqFt | # Stories | |
|
1 |
Improved |
Ranch 1 Story |
1966 |
1,442 |
1 Stories |
|