|
|
|
| Larry Stein Oklahoma County Assessor (405) 713-1200 - Public Access System |
|
|
|
|
|
|
| Real Property Display - Screen Produced 2/28/2026 2:32:26 AM | ||||
|---|---|---|---|---|
| Account: R150572445 | Type: Residential | Location: |
705 N MEADOW LN |
|
| Building Name/Occupant: |
|
MIDWEST CITY |
||
| Owner Name 1: | GRIFFITH CONNIE R TRS |
Parcel PIN#: |
2530-15-057-2445 |
|
| Owner Name 2: | GRIFFITH CONNIE R LIV TRUST | 1/4 section #: |
2530 |
|
| Owner Name 3: | Parent Acct: |
|
||
| Billing Address: | 705 N MEADOW LN | Tax District: |
|
|
| City, State, Zip | MIDWEST CITY, OK 73110-1706 | School System: |
Mid-Del #52 |
|
|
Country: (If noted) |
Land Size: |
0.1993 Acres |
||
|
Land Value: 30,380 |
|
|||
|
Sect 33-T12N-R2W Qtr SE |
MEADOWOOD 3RD
Block
006
Lot
003
|
|||
| Full Legal Description: MEADOWOOD 3RD 006 003 |
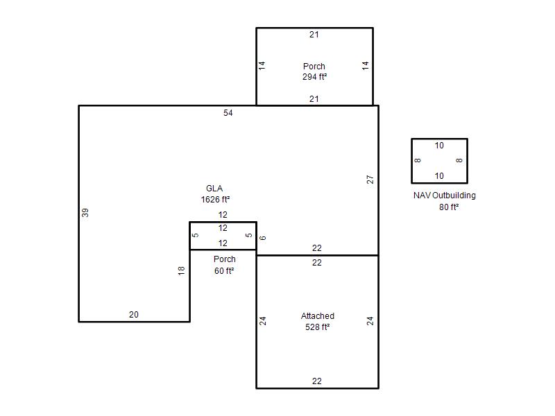
| Photo & Sketch (if available) | Comp Sales (ordered by relevancy) |
|
||||||||||||||||||
|
||||||||||||||||||||
| Value History (*The County Treasurer 405-713-1300 posts & collects actual tax amounts. Contact information HERE) | |||||||||||||
|---|---|---|---|---|---|---|---|---|---|---|---|---|---|
| Year | Market Value | Taxable Mkt Value | Gross Assessed | Exemption | Net Assessed | Millage | Est. Tax | Tax Savings | |||||
|
2025 |
222,000 |
136,855 |
15,054 |
1,000 |
14,054 |
119.58 |
$1,681 |
$1,240 |
|||||
|
2024 |
219,000 |
136,855 |
15,054 |
1,000 |
14,054 |
122.51 |
$1,722 |
$1,230 |
|||||
|
2023 |
210,500 |
136,855 |
15,054 |
1,000 |
14,054 |
117.71 |
$1,654 |
$1,071 |
|||||
|
2022 |
189,500 |
136,855 |
15,054 |
1,000 |
14,054 |
116.64 |
$1,639 |
$792 |
|||||
|
2021 |
161,500 |
136,855 |
15,054 |
1,000 |
14,054 |
119.45 |
$1,679 |
$443 |
|||||
| Property Account Status/Adjustments/Exemptions | ||
|---|---|---|
| Account # | Exemption Description | Amount |
|
R150572445 |
Freeze Senior Valuation |
0 |
|
R150572445 |
3% Cap Homestead |
0 |
|
R150572445 |
Homestead |
1,000 |
| Property Deed Transaction History (Recorded in the County Clerk's Office) | |||||||
|---|---|---|---|---|---|---|---|
| Date | Type | Book | Page | Price | Grantor | Grantee | |
|
7/9/2012 |
|
Deeds |
$0 |
GRIFFITH CONNIE R |
GRIFFITH CONNIE R TRS |
||
|
11/30/1994 |
|
Historical |
$75,500 |
SHUGART TED L & TERESA L |
GRIFFITH CONNIE R |
||
|
4/1/1980 |
|
Historical |
$0 |
|
SHUGART TED L & TERESA L |
||
| Last Mailed Notice of Value (N.O.V.) Information/History | ||||||||
|---|---|---|---|---|---|---|---|---|
| Year | Date | Market Value | Taxable Market Value | Gross Assessed | Exemption | Net Assessed | ||
|
2025 |
02/14/2025 |
222,000 |
136,855 |
15,054 |
1,000 |
14,054 |
||
|
2024 |
02/13/2024 |
219,000 |
136,855 |
15,054 |
1,000 |
14,054 |
||
|
2023 |
02/14/2023 |
210,500 |
136,855 |
15,054 |
1,000 |
14,054 |
||
|
2022 |
03/15/2022 |
189,500 |
136,855 |
15,054 |
1,000 |
14,054 |
||
|
2021 |
03/19/2021 |
161,500 |
136,855 |
15,054 |
1,000 |
14,054 |
||
| Property Building Permit History | |||||||||||
|---|---|---|---|---|---|---|---|---|---|---|---|
| Issued | Permit # | Provided by | Bldg # | Description | Est Construction Cost | Status | |||||
| No Building Permit records returned. | |||||||||||
| Click button on building number to access detailed information: | ||||||
|---|---|---|---|---|---|---|
| Bldg # | Vacant/Improved Land | Bldg Description | Year Built | SqFt | # Stories | |
|
1 |
Improved |
Ranch 1 Story |
1973 |
1,626 |
1 Stories |
|