|
|
|
| Larry Stein Oklahoma County Assessor (405) 713-1200 - Public Access System |
|
|
|
|
|
|
| Real Property Display - Screen Produced 3/20/2026 6:13:20 AM | ||||
|---|---|---|---|---|
| Account: R150391225 | Type: Residential | Location: |
3225 N GLENHAVEN DR |
|
| Building Name/Occupant: |
|
MIDWEST CITY |
||
| Owner Name 1: | SHARP DEIDRA L TRUST |
Parcel PIN#: |
2535-15-039-1225 |
|
| Owner Name 2: | 1/4 section #: |
2535 |
||
| Owner Name 3: | Parent Acct: |
|
||
| Billing Address: | 3225 N GLENHAVEN DR | Tax District: |
|
|
| City, State, Zip | MIDWEST CITY, OK 73110-4015 | School System: |
Mid-Del #52 |
|
|
Country: (If noted) |
Land Size: |
0.2238 Acres |
||
|
Land Value: 29,738 |
|
|||
|
Sect 34-T12N-R2W Qtr SW |
SOMERSET PARK REPLAT
Block
002
Lot
001
|
|||
| Full Legal Description: SOMERSET PARK REPLAT 002 001 |
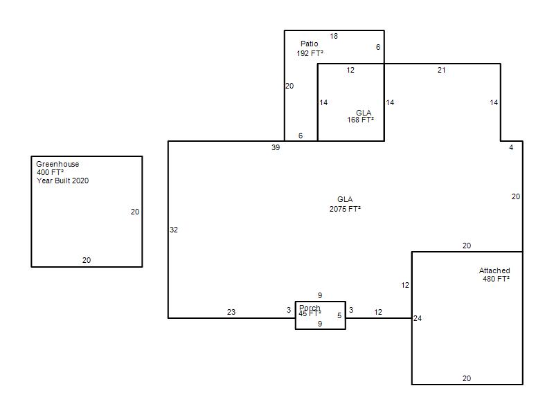
| Photo & Sketch (if available) | Comp Sales (ordered by relevancy) |
|
||||||||||||||||||
|
||||||||||||||||||||
| Value History (*The County Treasurer 405-713-1300 posts & collects actual tax amounts. Contact information HERE) | |||||||||||||
|---|---|---|---|---|---|---|---|---|---|---|---|---|---|
| Year | Market Value | Taxable Mkt Value | Gross Assessed | Exemption | Net Assessed | Millage | Est. Tax | Tax Savings | |||||
|
2025 |
214,000 |
193,872 |
21,325 |
0 |
21,325 |
119.58 |
$2,550 |
$265 |
|||||
|
2024 |
213,000 |
184,640 |
20,310 |
0 |
20,310 |
122.51 |
$2,488 |
$382 |
|||||
|
2023 |
204,000 |
175,848 |
19,343 |
0 |
19,343 |
117.71 |
$2,277 |
$365 |
|||||
|
2022 |
183,500 |
167,475 |
18,422 |
0 |
18,422 |
116.64 |
$2,149 |
$206 |
|||||
|
2021 |
159,500 |
159,500 |
17,545 |
0 |
17,545 |
119.45 |
$2,096 |
$0 |
|||||
| Property Account Status/Adjustments/Exemptions | ||
|---|---|---|
| Account # | Exemption Description | Amount |
|
R150391225 |
5% Capped Account |
0 |
| Property Deed Transaction History (Recorded in the County Clerk's Office) | |||||||
|---|---|---|---|---|---|---|---|
| Date | Type | Book | Page | Price | Grantor | Grantee | |
|
7/31/2012 |
|
Hmstd Off & |
$0 |
SHARP ELEANOR G CO TRS ETAL SHARP DEIDRA LYNN CO TRS |
SHAPR DEIDRA |
||
|
7/31/2012 |
|
Deeds |
$0 |
SHARP DEIDRA |
SHARP DEIDRA L TRUST |
||
|
3/11/1996 |
|
Historical |
$0 |
SHARP ELEANOR G |
SHARP ELEANOR G CO TRS ETAL |
||
|
8/1/1985 |
|
Historical |
$0 |
|
SHARP ELEANOR G |
||
|
11/17/1960 |
|
Hmstd Off & |
$0 |
GREATER MIDWEST CITY DEVELOPMENT CO LTD |
AMERICAN FIRST TITLE & TRUST COMPANY |
||
| Last Mailed Notice of Value (N.O.V.) Information/History | ||||||||
|---|---|---|---|---|---|---|---|---|
| Year | Date | Market Value | Taxable Market Value | Gross Assessed | Exemption | Net Assessed | ||
|
2026 |
02/23/2026 |
209,500 |
203,565 |
22,391 |
0 |
22,391 |
||
|
2025 |
02/14/2025 |
214,000 |
193,872 |
21,325 |
0 |
21,325 |
||
|
2024 |
02/13/2024 |
213,000 |
184,640 |
20,310 |
0 |
20,310 |
||
|
2023 |
02/14/2023 |
204,000 |
175,848 |
19,343 |
0 |
19,343 |
||
|
2022 |
03/15/2022 |
183,500 |
167,475 |
18,422 |
0 |
18,422 |
||
| Property Building Permit History | ||||||
|---|---|---|---|---|---|---|
| Issued | Permit # | Provided by | Bldg # | Description | Est Construction Cost | Status |
|
7/19/2023 |
B-23-1155 |
|
1 |
Remodeled |
29,700 |
Inactive |
|
2/12/2020 |
20-00000126 |
|
1 |
Storage Buil |
15,000 |
Inactive |
| Click button on building number to access detailed information: | ||||||
|---|---|---|---|---|---|---|
| Bldg # | Vacant/Improved Land | Bldg Description | Year Built | SqFt | # Stories | |
|
1 |
Improved |
Ranch 1 Story |
1962 |
2,243 |
1 Stories |
|