|
|
|
| Larry Stein Oklahoma County Assessor (405) 713-1200 - Public Access System |
|
|
|
|
|
|
| Real Property Display - Screen Produced 4/8/2026 5:55:36 AM | ||||
|---|---|---|---|---|
| Account: R152051865 | Type: Residential | Location: |
3504 MEADOWBROOK DR |
|
| Building Name/Occupant: |
|
MIDWEST CITY |
||
| Owner Name 1: | BAGBY JOHN R & JO R |
Parcel PIN#: |
2536-15-205-1865 |
|
| Owner Name 2: | 1/4 section #: |
2536 |
||
| Owner Name 3: | Parent Acct: |
|
||
| Billing Address: | 3504 MEADOWBROOK DR | Tax District: |
|
|
| City, State, Zip | MIDWEST CITY, OK 73110-3812 | School System: |
Mid-Del #52 |
|
|
Country: (If noted) |
Land Size: |
0.4208 Acres |
||
|
Land Value: 48,575 |
|
|||
|
Sect 34-T12N-R2W Qtr NW |
RIDGECREST HTS
Block
004
Lot
014
|
|||
| Full Legal Description: RIDGECREST HTS 004 014 |
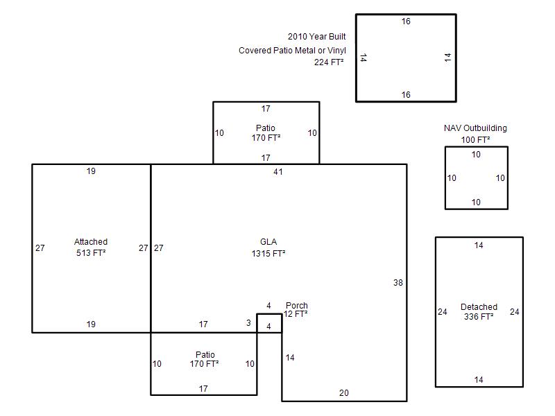
| Photo & Sketch (if available) | Comp Sales (ordered by relevancy) |
|
||||||||||||||||||
|
||||||||||||||||||||
| Value History (*The County Treasurer 405-713-1300 posts & collects actual tax amounts. Contact information HERE) | |||||||||||||
|---|---|---|---|---|---|---|---|---|---|---|---|---|---|
| Year | Market Value | Taxable Mkt Value | Gross Assessed | Exemption | Net Assessed | Millage | Est. Tax | Tax Savings | |||||
|
2026 |
182,000 |
145,900 |
16,048 |
1,000 |
15,048 |
119.58 |
$1,800 |
$594 |
|||||
|
2025 |
185,500 |
141,651 |
15,580 |
1,000 |
14,580 |
119.58 |
$1,744 |
$696 |
|||||
|
2024 |
185,500 |
137,526 |
15,127 |
1,000 |
14,127 |
122.51 |
$1,731 |
$769 |
|||||
|
2023 |
177,000 |
133,521 |
14,686 |
1,000 |
13,686 |
117.71 |
$1,611 |
$681 |
|||||
|
2022 |
155,000 |
129,633 |
14,259 |
1,000 |
13,259 |
116.64 |
$1,547 |
$442 |
|||||
| Property Account Status/Adjustments/Exemptions | ||
|---|---|---|
| Account # | Exemption Description | Amount |
|
R152051865 |
Homestead |
1,000 |
|
R152051865 |
3% Cap Homestead |
0 |
| Property Deed Transaction History (Recorded in the County Clerk's Office) | |||||||
|---|---|---|---|---|---|---|---|
| Date | Type | Book | Page | Price | Grantor | Grantee | |
|
11/3/1994 |
|
Historical |
$62,000 |
RICE SHARON KAY |
BAGBY JOHN R & JO R |
||
|
2/17/1989 |
|
Historical |
$0 |
CAMPBELL MARY LOUISE |
RICE SHARON KAY |
||
|
8/26/1987 |
|
Historical |
$0 |
CAMPBELL N E & MARY |
CAMPBELL MARY LOUISE |
||
|
11/11/1911 |
|
Historical |
$0 |
|
CAMPBELL NATHANIEL E & MARY |
||
| Last Mailed Notice of Value (N.O.V.) Information/History | ||||||||
|---|---|---|---|---|---|---|---|---|
| Year | Date | Market Value | Taxable Market Value | Gross Assessed | Exemption | Net Assessed | ||
|
2026 |
02/23/2026 |
182,000 |
145,900 |
16,048 |
1,000 |
15,048 |
||
|
2025 |
02/14/2025 |
185,500 |
141,651 |
15,580 |
1,000 |
14,580 |
||
|
2024 |
02/13/2024 |
185,500 |
137,526 |
15,127 |
1,000 |
14,127 |
||
|
2023 |
02/14/2023 |
177,000 |
133,521 |
14,686 |
1,000 |
13,686 |
||
|
2022 |
03/15/2022 |
155,000 |
129,633 |
14,259 |
1,000 |
13,259 |
||
| Property Building Permit History | |||||||||||
|---|---|---|---|---|---|---|---|---|---|---|---|
| Issued | Permit # | Provided by | Bldg # | Description | Est Construction Cost | Status | |||||
| No Building Permit records returned. | |||||||||||
| Click button on building number to access detailed information: | ||||||
|---|---|---|---|---|---|---|
| Bldg # | Vacant/Improved Land | Bldg Description | Year Built | SqFt | # Stories | |
|
1 |
Improved |
Ranch 1 Story |
1959 |
1,315 |
1 Stories |
|