|
|
|
| Larry Stein Oklahoma County Assessor (405) 713-1200 - Public Access System |
|
|
|
|
|
|
| Real Property Display - Screen Produced 4/1/2026 1:57:30 AM | ||||
|---|---|---|---|---|
| Account: R155451090 | Type: Residential | Location: |
4012 LOCUST DR |
|
| Building Name/Occupant: |
|
MIDWEST CITY |
||
| Owner Name 1: | BISBEE FD PROPERTIES LLC |
Parcel PIN#: |
2537-15-545-1090 |
|
| Owner Name 2: | 1/4 section #: |
2537 |
||
| Owner Name 3: | Parent Acct: |
|
||
| Billing Address: | 924 HIDDEN VALLEY CIR | Tax District: |
|
|
| City, State, Zip | CHOCTAW, OK 73020 | School System: |
Oklahoma City #89 |
|
|
Country: (If noted) |
Land Size: |
0.1503 Acres |
||
|
Land Value: 13,548 |
|
|||
|
Sect 35-T12N-R2W Qtr NE |
PARKWOODS
Block
001
Lot
003
|
|||
| Full Legal Description: PARKWOODS 001 003 |
| Photo & Sketch (if available) | Comp Sales (ordered by relevancy) |
|
||||||||||||||||||
|
||||||||||||||||||||
| Value History (*The County Treasurer 405-713-1300 posts & collects actual tax amounts. Contact information HERE) | |||||||||||||
|---|---|---|---|---|---|---|---|---|---|---|---|---|---|
| Year | Market Value | Taxable Mkt Value | Gross Assessed | Exemption | Net Assessed | Millage | Est. Tax | Tax Savings | |||||
|
2026 |
97,500 |
64,313 |
7,073 |
0 |
7,073 |
114.34 |
$809 |
$417 |
|||||
|
2025 |
97,000 |
61,251 |
6,736 |
0 |
6,736 |
114.34 |
$770 |
$450 |
|||||
|
2024 |
88,500 |
58,335 |
6,416 |
0 |
6,416 |
116.11 |
$745 |
$385 |
|||||
|
2023 |
80,000 |
55,558 |
6,111 |
0 |
6,111 |
115.66 |
$707 |
$311 |
|||||
|
2022 |
69,000 |
52,913 |
5,819 |
0 |
5,819 |
110.02 |
$640 |
$195 |
|||||
| Property Account Status/Adjustments/Exemptions | ||
|---|---|---|
| Account # | Exemption Description | Amount |
|
R155451090 |
5% Capped Account |
0 |
| Property Deed Transaction History (Recorded in the County Clerk's Office) | ||||||||||
|---|---|---|---|---|---|---|---|---|---|---|
| Date | Type | Book | Page | Price | Grantor | Grantee | ||||
|
6/21/2023 |
|
Hmstd Off & |
$0 |
BISBEE DOYLE C & GUDFRIDUR CO TRS |
BISBEE FD PROPERTIES LLC |
|||||
|
1/11/2005 |
|
Deeds |
$0 |
BISBEE DOYLCE C & GUDFRIDUR |
BISBEE DOYLE C & GUDFRIDUR CO TRS |
|||||
|
12/13/2001 |
|
Deeds |
$21,500 |
WALSH FRANK J JR & RHODA K |
BISBEE DOYLE C & GUDFRIDUR |
|||||
|
4/23/1992 |
|
Historical |
$7,000 |
ALLIANCE MORTGAGE COMPANY |
WALSH FRANK J JR & RHODA K |
|||||
|
7/30/1991 |
|
Historical |
$0 |
SECRETARY OF VETERANS AFFAIRS |
ALLIANCE MORTGAGE COMPANY |
|||||
| Last Mailed Notice of Value (N.O.V.) Information/History | ||||||||
|---|---|---|---|---|---|---|---|---|
| Year | Date | Market Value | Taxable Market Value | Gross Assessed | Exemption | Net Assessed | ||
|
2026 |
02/23/2026 |
97,500 |
64,313 |
7,073 |
0 |
7,073 |
||
|
2025 |
02/14/2025 |
97,000 |
61,251 |
6,736 |
0 |
6,736 |
||
|
2024 |
02/13/2024 |
88,500 |
58,335 |
6,416 |
0 |
6,416 |
||
|
2023 |
02/14/2023 |
80,000 |
55,558 |
6,111 |
0 |
6,111 |
||
|
2022 |
03/15/2022 |
69,000 |
52,913 |
5,819 |
0 |
5,819 |
||
| Property Building Permit History | |||||||||||
|---|---|---|---|---|---|---|---|---|---|---|---|
| Issued | Permit # | Provided by | Bldg # | Description | Est Construction Cost | Status | |||||
| No Building Permit records returned. | |||||||||||
| Click button on building number to access detailed information: | ||||||
|---|---|---|---|---|---|---|
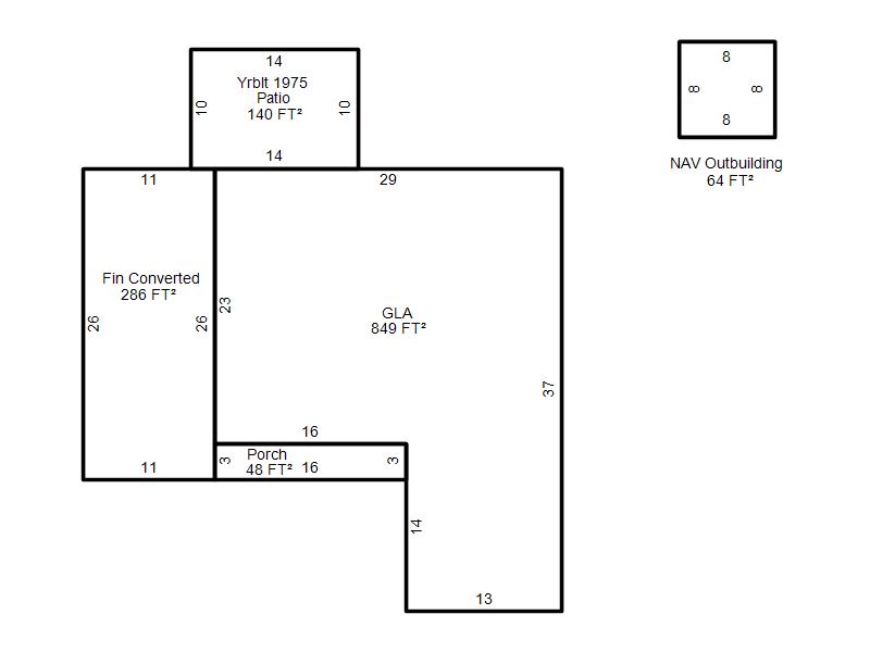
| Bldg # | Vacant/Improved Land | Bldg Description | Year Built | SqFt | # Stories | |
|
1 |
Improved |
Ranch 1 Story |
1960 |
849 |
1 Stories |
|