|
|
|
| Larry Stein Oklahoma County Assessor (405) 713-1200 - Public Access System |
|
|
|
|
|
|
| Real Property Display - Screen Produced 2/28/2026 2:32:26 AM | ||||
|---|---|---|---|---|
| Account: R154741025 | Type: Residential | Location: |
117 PARK PL |
|
| Building Name/Occupant: |
|
MIDWEST CITY |
||
| Owner Name 1: | SPEIGHTS LLC |
Parcel PIN#: |
2538-15-474-1025 |
|
| Owner Name 2: | 1/4 section #: |
2538 |
||
| Owner Name 3: | Parent Acct: |
|
||
| Billing Address: | 454 MOORE LOOP | Tax District: |
|
|
| City, State, Zip | BYHALIA , MS 38611 | School System: |
Mid-Del #52 |
|
|
Country: (If noted) |
Land Size: |
0.1047 Acres |
||
|
Land Value: 16,051 |
|
|||
|
Sect 35-T12N-R2W Qtr SE |
REGENCY PARK
Block
001
Lot
000
|
|||
| Full Legal Description: REGENCY PARK 001 000 S38.50FT OF LOT 3 |
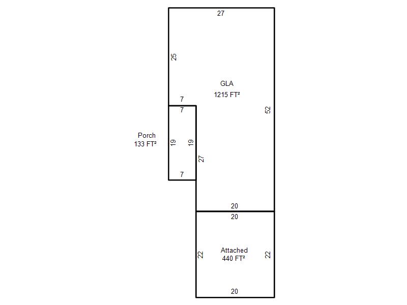
| Photo & Sketch (if available) | Comp Sales (ordered by relevancy) |
|
||||||||||||||||||
|
||||||||||||||||||||
| Value History (*The County Treasurer 405-713-1300 posts & collects actual tax amounts. Contact information HERE) | |||||||||||||
|---|---|---|---|---|---|---|---|---|---|---|---|---|---|
| Year | Market Value | Taxable Mkt Value | Gross Assessed | Exemption | Net Assessed | Millage | Est. Tax | Tax Savings | |||||
|
2025 |
118,000 |
106,391 |
11,702 |
0 |
11,702 |
119.58 |
$1,399 |
$153 |
|||||
|
2024 |
112,500 |
101,325 |
11,145 |
0 |
11,145 |
122.51 |
$1,365 |
$151 |
|||||
|
2023 |
96,500 |
96,500 |
10,615 |
0 |
10,615 |
117.71 |
$1,249 |
$0 |
|||||
|
2022 |
81,500 |
76,575 |
8,423 |
0 |
8,423 |
116.64 |
$982 |
$63 |
|||||
|
2021 |
86,500 |
72,929 |
8,022 |
0 |
8,022 |
119.45 |
$958 |
$178 |
|||||
| Property Account Status/Adjustments/Exemptions | ||
|---|---|---|
| Account # | Exemption Description | Amount |
|
R154741025 |
5% Capped Account |
0 |
| Property Deed Transaction History (Recorded in the County Clerk's Office) | |||||||
|---|---|---|---|---|---|---|---|
| Date | Type | Book | Page | Price | Grantor | Grantee | |
|
9/16/2022 |
|
Deeds |
$95,000 |
A 1 RESTORATION LLC |
SPEIGHTS LLC |
||
|
9/1/2015 |
|
Deeds |
$56,000 |
DARNELL PHIL D DARNELL TEDDIE E |
A 1 RESTORATION LLC |
||
|
4/13/1999 |
|
Historical |
$0 |
DARNELL SUSAN G |
DARNELL PHIL D |
||
|
1/1/1980 |
|
Historical |
$0 |
|
DARNELL SUSAN G |
||
| Last Mailed Notice of Value (N.O.V.) Information/History | ||||||||
|---|---|---|---|---|---|---|---|---|
| Year | Date | Market Value | Taxable Market Value | Gross Assessed | Exemption | Net Assessed | ||
|
2026 |
02/23/2026 |
112,500 |
111,710 |
12,288 |
0 |
12,288 |
||
|
2025 |
02/14/2025 |
118,000 |
106,391 |
11,702 |
0 |
11,702 |
||
|
2024 |
02/13/2024 |
112,500 |
101,325 |
11,145 |
0 |
11,145 |
||
|
2023 |
02/14/2023 |
96,500 |
96,500 |
10,615 |
0 |
10,615 |
||
|
2022 |
03/15/2022 |
81,500 |
76,575 |
8,423 |
0 |
8,423 |
||
| Property Building Permit History | |||||||||||
|---|---|---|---|---|---|---|---|---|---|---|---|
| Issued | Permit # | Provided by | Bldg # | Description | Est Construction Cost | Status | |||||
| No Building Permit records returned. | |||||||||||
| Click button on building number to access detailed information: | ||||||
|---|---|---|---|---|---|---|
| Bldg # | Vacant/Improved Land | Bldg Description | Year Built | SqFt | # Stories | |
|
1 |
Improved |
Duplex One Story |
1979 |
1,215 |
1 Stories |
|