|
|
|
| Larry Stein Oklahoma County Assessor (405) 713-1200 - Public Access System |
|
|
|
|
|
|
| Real Property Display - Screen Produced 2/28/2026 2:32:26 AM | ||||
|---|---|---|---|---|
| Account: R154741140 | Type: Residential | Location: |
110 PARK PL |
|
| Building Name/Occupant: |
|
MIDWEST CITY |
||
| Owner Name 1: | FARLEY JAMES S III |
Parcel PIN#: |
2538-15-474-1140 |
|
| Owner Name 2: | 1/4 section #: |
2538 |
||
| Owner Name 3: | Parent Acct: |
|
||
| Billing Address: | 110 PARK PL | Tax District: |
|
|
| City, State, Zip | MIDWEST CITY, OK 73110-6934 | School System: |
Mid-Del #52 |
|
|
Country: (If noted) |
Land Size: |
0.0964 Acres |
||
|
Land Value: 14,784 |
|
|||
|
Sect 35-T12N-R2W Qtr SE |
REGENCY PARK
Block
001
Lot
000
|
|||
| Full Legal Description: REGENCY PARK 001 000 N35.04FT OF LOT 15 |
| Photo & Sketch (if available) | Comp Sales (ordered by relevancy) |
|
||||||||||||||||||
|
||||||||||||||||||||
| Value History (*The County Treasurer 405-713-1300 posts & collects actual tax amounts. Contact information HERE) | |||||||||||||
|---|---|---|---|---|---|---|---|---|---|---|---|---|---|
| Year | Market Value | Taxable Mkt Value | Gross Assessed | Exemption | Net Assessed | Millage | Est. Tax | Tax Savings | |||||
|
2025 |
121,000 |
92,161 |
10,137 |
0 |
10,137 |
119.58 |
$1,212 |
$379 |
|||||
|
2024 |
115,000 |
87,773 |
9,654 |
0 |
9,654 |
122.51 |
$1,183 |
$367 |
|||||
|
2023 |
114,000 |
83,594 |
9,194 |
0 |
9,194 |
117.71 |
$1,082 |
$394 |
|||||
|
2022 |
83,500 |
79,614 |
8,757 |
0 |
8,757 |
116.64 |
$1,021 |
$50 |
|||||
|
2021 |
90,000 |
75,823 |
8,340 |
0 |
8,340 |
119.45 |
$996 |
$186 |
|||||
| Property Account Status/Adjustments/Exemptions | ||
|---|---|---|
| Account # | Exemption Description | Amount |
|
R154741140 |
5% Capped Account |
0 |
| Property Deed Transaction History (Recorded in the County Clerk's Office) | ||||||||||
|---|---|---|---|---|---|---|---|---|---|---|
| Date | Type | Book | Page | Price | Grantor | Grantee | ||||
|
8/19/2016 |
|
Deeds |
$61,000 |
STORY HAROLD R JR |
FARLEY JAMES S III |
|||||
|
1/27/2012 |
|
Hmstd Off & |
$0 |
STORY ROBERTA |
STORY HAROLD R JR |
|||||
|
1/31/2011 |
|
Deeds |
$0 |
TURK HARRY STORY ROBERTA |
STORY ROBERTA |
|||||
|
4/25/2005 |
|
Deeds |
$0 |
TURK HARRY |
TURK HARRY STORY ROBERTA |
|||||
|
5/18/2001 |
|
Deeds |
$55,000 |
STORY ROBERTA L |
TURK HARRY |
|||||
| Last Mailed Notice of Value (N.O.V.) Information/History | ||||||||
|---|---|---|---|---|---|---|---|---|
| Year | Date | Market Value | Taxable Market Value | Gross Assessed | Exemption | Net Assessed | ||
|
2026 |
02/23/2026 |
117,000 |
96,769 |
10,643 |
0 |
10,643 |
||
|
2025 |
02/14/2025 |
121,000 |
92,161 |
10,137 |
0 |
10,137 |
||
|
2024 |
02/13/2024 |
115,000 |
87,773 |
9,654 |
0 |
9,654 |
||
|
2023 |
02/14/2023 |
114,000 |
83,594 |
9,194 |
0 |
9,194 |
||
|
2022 |
03/15/2022 |
83,500 |
79,614 |
8,757 |
0 |
8,757 |
||
| Property Building Permit History | |||||||||||
|---|---|---|---|---|---|---|---|---|---|---|---|
| Issued | Permit # | Provided by | Bldg # | Description | Est Construction Cost | Status | |||||
| No Building Permit records returned. | |||||||||||
| Click button on building number to access detailed information: | ||||||
|---|---|---|---|---|---|---|
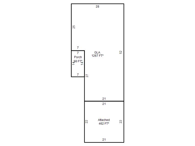
| Bldg # | Vacant/Improved Land | Bldg Description | Year Built | SqFt | # Stories | |
|
1 |
Improved |
Duplex One Story |
1979 |
1,267 |
1 Stories |
|