|
|
|
| Larry Stein Oklahoma County Assessor (405) 713-1200 - Public Access System |
|
|
|
|
|
|
| Real Property Display - Screen Produced 4/3/2026 4:19:19 AM | ||||
|---|---|---|---|---|
| Account: R150821095 | Type: Residential | Location: |
3536 N HOLMAN CT |
|
| Building Name/Occupant: |
|
MIDWEST CITY |
||
| Owner Name 1: | HENSCHEID THOMAS J & JONI D |
Parcel PIN#: |
2540-15-082-1095 |
|
| Owner Name 2: | 1/4 section #: |
2540 |
||
| Owner Name 3: | Parent Acct: |
|
||
| Billing Address: | 3536 N HOLMAN CT | Tax District: |
|
|
| City, State, Zip | MIDWEST CITY, OK 73110-7215 | School System: |
Oklahoma City #89 |
|
|
Country: (If noted) |
Land Size: |
0.1901 Acres |
||
|
Land Value: 14,987 |
|
|||
|
Sect 35-T12N-R2W Qtr NW |
HOLMAN 2ND ADDITION
Block
002
Lot
001
|
|||
| Full Legal Description: HOLMAN 2ND ADDITION 002 001 |
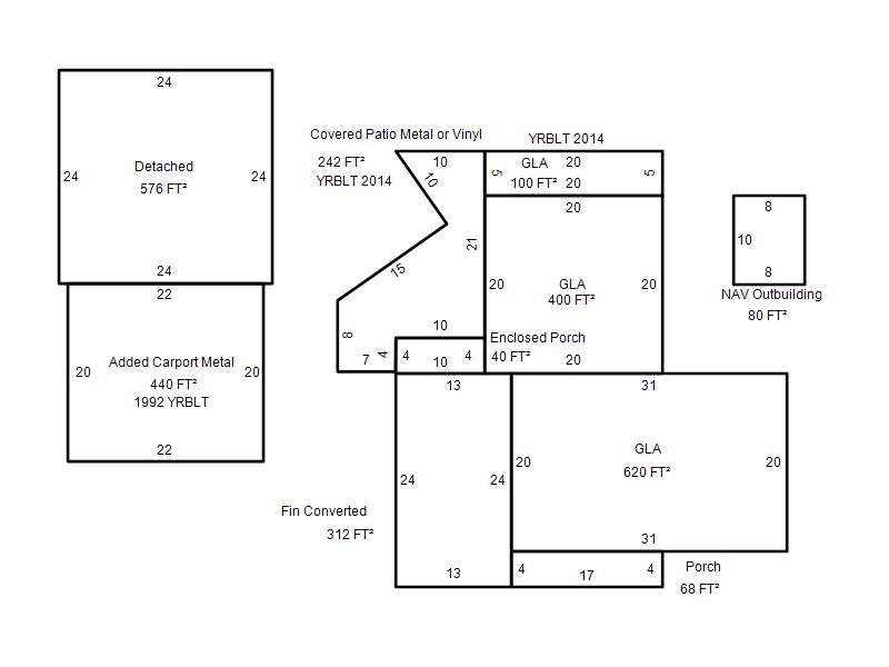
| Photo & Sketch (if available) | Comp Sales (ordered by relevancy) |
|
||||||||||||||||||
|
||||||||||||||||||||
| Value History (*The County Treasurer 405-713-1300 posts & collects actual tax amounts. Contact information HERE) | |||||||||||||
|---|---|---|---|---|---|---|---|---|---|---|---|---|---|
| Year | Market Value | Taxable Mkt Value | Gross Assessed | Exemption | Net Assessed | Millage | Est. Tax | Tax Savings | |||||
|
2026 |
129,000 |
49,160 |
5,407 |
1,000 |
4,407 |
114.34 |
$504 |
$1,119 |
|||||
|
2025 |
130,500 |
49,160 |
5,407 |
1,000 |
4,407 |
114.34 |
$504 |
$1,137 |
|||||
|
2024 |
121,000 |
49,160 |
5,407 |
1,000 |
4,407 |
116.11 |
$512 |
$1,034 |
|||||
|
2023 |
109,000 |
49,160 |
5,407 |
1,000 |
4,407 |
115.66 |
$510 |
$877 |
|||||
|
2022 |
87,500 |
49,160 |
5,407 |
1,000 |
4,407 |
110.02 |
$485 |
$574 |
|||||
| Property Account Status/Adjustments/Exemptions | ||
|---|---|---|
| Account # | Exemption Description | Amount |
|
R150821095 |
Freeze Senior Valuation |
0 |
|
R150821095 |
3% Cap Homestead |
0 |
|
R150821095 |
Homestead |
1,000 |
| Property Deed Transaction History (Recorded in the County Clerk's Office) | |||||||
|---|---|---|---|---|---|---|---|
| Date | Type | Book | Page | Price | Grantor | Grantee | |
|
4/1/1978 |
|
Historical |
$0 |
|
HENSCHEID THOMAS J & JONI D |
||
| Last Mailed Notice of Value (N.O.V.) Information/History | ||||||||
|---|---|---|---|---|---|---|---|---|
| Year | Date | Market Value | Taxable Market Value | Gross Assessed | Exemption | Net Assessed | ||
|
2025 |
02/14/2025 |
130,500 |
49,160 |
5,407 |
1,000 |
4,407 |
||
|
2024 |
02/13/2024 |
121,000 |
49,160 |
5,407 |
1,000 |
4,407 |
||
|
2023 |
02/14/2023 |
109,000 |
49,160 |
5,407 |
1,000 |
4,407 |
||
|
2022 |
03/15/2022 |
87,500 |
49,160 |
5,407 |
1,000 |
4,407 |
||
|
2021 |
03/19/2021 |
73,500 |
49,160 |
5,407 |
1,000 |
4,407 |
||
| Property Building Permit History | ||||||
|---|---|---|---|---|---|---|
| Issued | Permit # | Provided by | Bldg # | Description | Est Construction Cost | Status |
|
2/25/1992 |
10247202 |
MIDWEST CITY |
1 |
Add On |
4,000 |
Inactive |
| Click button on building number to access detailed information: | ||||||
|---|---|---|---|---|---|---|
| Bldg # | Vacant/Improved Land | Bldg Description | Year Built | SqFt | # Stories | |
|
1 |
Improved |
Ranch 1 Story |
1954 |
|
1 Stories |
|