|
|
|
| Larry Stein Oklahoma County Assessor (405) 713-1200 - Public Access System |
|
|
|
|
|
|
| Real Property Display - Screen Produced 4/9/2026 7:56:47 AM | ||||
|---|---|---|---|---|
| Account: R155253400 | Type: Residential | Location: |
802 ESTHER AVE |
|
| Building Name/Occupant: |
|
MIDWEST CITY |
||
| Owner Name 1: | ROGERS LINDSEY A |
Parcel PIN#: |
2544-15-525-3400 |
|
| Owner Name 2: | 1/4 section #: |
2544 |
||
| Owner Name 3: | Parent Acct: |
|
||
| Billing Address: | 802 ESTHER AVE | Tax District: |
|
|
| City, State, Zip | MIDWEST CITY, OK 73130 | School System: |
Oklahoma City #89 |
|
|
Country: (If noted) |
Land Size: |
0.5300 Acres |
||
|
Land Value: 12,455 |
|
|||
|
Sect 36-T12N-R2W Qtr NW |
COUCH HEIGHTS ADD
Block
002
Lot
000
|
|||
| Full Legal Description: COUCH HEIGHTS ADD 002 000 N 1/2 LOT 8 |
| Photo & Sketch (if available) | Comp Sales (ordered by relevancy) |
|
||||||||||||||||||
|
||||||||||||||||||||
| Value History (*The County Treasurer 405-713-1300 posts & collects actual tax amounts. Contact information HERE) | |||||||||||||
|---|---|---|---|---|---|---|---|---|---|---|---|---|---|
| Year | Market Value | Taxable Mkt Value | Gross Assessed | Exemption | Net Assessed | Millage | Est. Tax | Tax Savings | |||||
|
2026 |
195,000 |
179,517 |
19,746 |
1,000 |
18,746 |
114.34 |
$2,144 |
$309 |
|||||
|
2025 |
192,000 |
174,289 |
19,171 |
1,000 |
18,171 |
114.34 |
$2,078 |
$337 |
|||||
|
2024 |
186,500 |
169,213 |
18,613 |
1,000 |
17,613 |
116.11 |
$2,045 |
$337 |
|||||
|
2023 |
189,000 |
164,285 |
18,071 |
1,000 |
17,071 |
115.66 |
$1,974 |
$430 |
|||||
|
2022 |
159,500 |
159,500 |
17,545 |
1,000 |
16,545 |
110.02 |
$1,820 |
$110 |
|||||
| Property Account Status/Adjustments/Exemptions | ||
|---|---|---|
| Account # | Exemption Description | Amount |
|
R155253400 |
3% Cap Homestead |
0 |
|
R155253400 |
Homestead |
1,000 |
| Property Deed Transaction History (Recorded in the County Clerk's Office) | |||||||
|---|---|---|---|---|---|---|---|
| Date | Type | Book | Page | Price | Grantor | Grantee | |
|
2/27/2020 |
|
Deeds |
$135,000 |
SCHROEDER LADONNA D PER REP |
ROGERS LINDSEY A |
||
|
9/29/2015 |
|
Deeds |
$0 |
DEATHERAGE HELEN I |
DEATHERAGE DALE J |
||
|
8/4/1992 |
|
Historical |
$0 |
PLOG HELEN IRENE |
DEATHERAGE HELEN I |
||
|
8/12/1987 |
|
Historical |
$69,000 |
VONREMBOW JOE S & MARY R |
PLOG HELEN IRENE |
||
|
2/1/1981 |
|
Historical |
$0 |
|
VONREMBOW JOE S & MARY R |
||
| Last Mailed Notice of Value (N.O.V.) Information/History | ||||||||
|---|---|---|---|---|---|---|---|---|
| Year | Date | Market Value | Taxable Market Value | Gross Assessed | Exemption | Net Assessed | ||
|
2026 |
02/23/2026 |
195,000 |
179,517 |
19,746 |
1,000 |
18,746 |
||
|
2025 |
02/14/2025 |
192,000 |
174,289 |
19,171 |
1,000 |
18,171 |
||
|
2024 |
02/13/2024 |
186,500 |
169,213 |
18,613 |
1,000 |
17,613 |
||
|
2023 |
02/14/2023 |
189,000 |
164,285 |
18,071 |
1,000 |
17,071 |
||
|
2022 |
03/15/2022 |
159,500 |
159,500 |
17,545 |
1,000 |
16,545 |
||
| Property Building Permit History | |||||||||||
|---|---|---|---|---|---|---|---|---|---|---|---|
| Issued | Permit # | Provided by | Bldg # | Description | Est Construction Cost | Status | |||||
| No Building Permit records returned. | |||||||||||
| Click button on building number to access detailed information: | ||||||
|---|---|---|---|---|---|---|
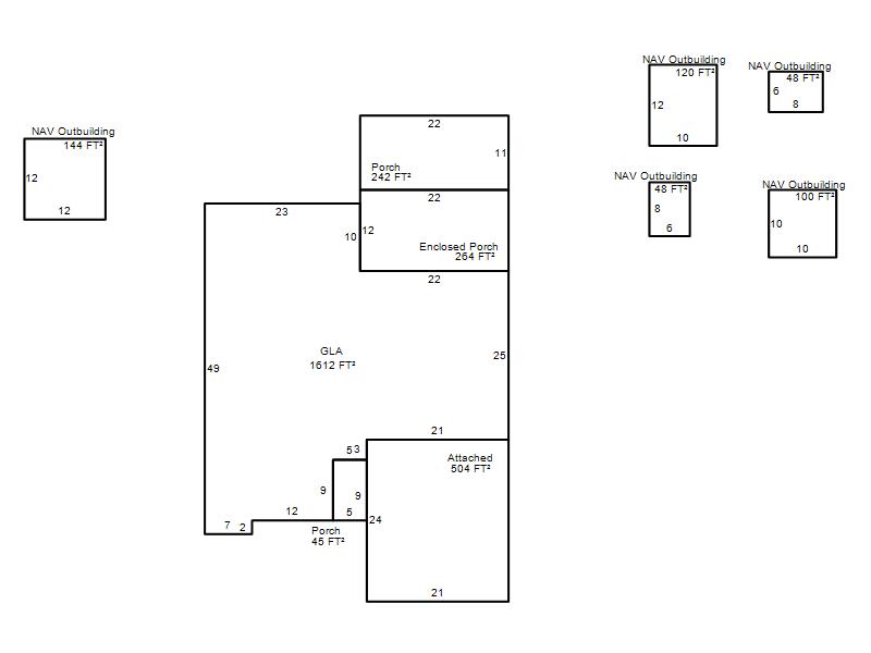
| Bldg # | Vacant/Improved Land | Bldg Description | Year Built | SqFt | # Stories | |
|
1 |
Improved |
Ranch 1 Story |
1981 |
1,612 |
1 Stories |
|