|
|
|
| Larry Stein Oklahoma County Assessor (405) 713-1200 - Public Access System |
|
|
|
|
|
|
| Real Property Display - Screen Produced 4/2/2026 1:04:55 AM | ||||
|---|---|---|---|---|
| Account: R169570410 | Type: Residential | Location: |
1104 FENWICK PL |
|
| Building Name/Occupant: |
|
NICHOLS HILLS |
||
| Owner Name 1: | NORTHWEST INVESTMENT PROPERTIES LLC |
Parcel PIN#: |
2618-16-957-0410 |
|
| Owner Name 2: | 1/4 section #: |
2618 |
||
| Owner Name 3: | Parent Acct: |
|
||
| Billing Address: | 1623 WESTMINSTER PL | Tax District: |
|
|
| City, State, Zip | OKLAHOMA CITY , OK 73120 | School System: |
Oklahoma City #89 |
|
|
Country: (If noted) |
Land Size: |
0.2066 Acres |
||
|
Land Value: 66,600 |
|
|||
|
Sect 5-T12N-R3W Qtr SE |
NICHOLS HILLS ADD
Block
005
Lot
003
|
|||
| Full Legal Description: NICHOLS HILLS ADD 005 003 |
| Photo & Sketch (if available) | Comp Sales (ordered by relevancy) |
|
||||||||||||||||||
|
||||||||||||||||||||
| Value History (*The County Treasurer 405-713-1300 posts & collects actual tax amounts. Contact information HERE) | |||||||||||||
|---|---|---|---|---|---|---|---|---|---|---|---|---|---|
| Year | Market Value | Taxable Mkt Value | Gross Assessed | Exemption | Net Assessed | Millage | Est. Tax | Tax Savings | |||||
|
2026 |
256,500 |
199,451 |
21,938 |
0 |
21,938 |
140.78 |
$3,089 |
$883 |
|||||
|
2025 |
244,000 |
189,954 |
20,893 |
0 |
20,893 |
140.78 |
$2,942 |
$837 |
|||||
|
2024 |
207,500 |
180,909 |
19,899 |
0 |
19,899 |
141.11 |
$2,808 |
$413 |
|||||
|
2023 |
197,000 |
172,295 |
18,952 |
0 |
18,952 |
139.71 |
$2,648 |
$380 |
|||||
|
2022 |
178,500 |
164,091 |
18,049 |
0 |
18,049 |
127.53 |
$2,302 |
$202 |
|||||
| Property Account Status/Adjustments/Exemptions | ||
|---|---|---|
| Account # | Exemption Description | Amount |
|
R169570410 |
5% Capped Account |
0 |
| Property Deed Transaction History (Recorded in the County Clerk's Office) | |||||||
|---|---|---|---|---|---|---|---|
| Date | Type | Book | Page | Price | Grantor | Grantee | |
|
2/19/2008 |
|
Hmstd Off & |
$0 |
MCDANIEL JOHN R |
NORTHWEST INVESTMENT PROPERTIES LLC |
||
|
5/10/2005 |
|
Other |
$0 |
CAMBRIDGE RESERVE PROPERTIES LLC |
MCDANIEL JOHN R |
||
|
12/22/2003 |
|
Other |
$0 |
MCDANIEL JOHN R |
CAMBRIDGE RESERVE PROPERTIES LLC |
||
|
8/27/1993 |
|
Historical |
$55,500 |
WOOLDRIDGE BETTY C & KENNETH R |
MCDANIEL RANDY |
||
|
8/1/1984 |
|
Historical |
$0 |
|
WOOLDRIDGE BETTY C & KENNETH R |
||
| Last Mailed Notice of Value (N.O.V.) Information/History | ||||||||
|---|---|---|---|---|---|---|---|---|
| Year | Date | Market Value | Taxable Market Value | Gross Assessed | Exemption | Net Assessed | ||
|
2026 |
02/23/2026 |
256,500 |
199,451 |
21,938 |
0 |
21,938 |
||
|
2025 |
02/14/2025 |
244,000 |
189,954 |
20,893 |
0 |
20,893 |
||
|
2024 |
02/13/2024 |
207,500 |
180,909 |
19,899 |
0 |
19,899 |
||
|
2023 |
02/14/2023 |
197,000 |
172,295 |
18,952 |
0 |
18,952 |
||
|
2022 |
03/15/2022 |
178,500 |
164,091 |
18,049 |
0 |
18,049 |
||
| Property Building Permit History | |||||||||||
|---|---|---|---|---|---|---|---|---|---|---|---|
| Issued | Permit # | Provided by | Bldg # | Description | Est Construction Cost | Status | |||||
| No Building Permit records returned. | |||||||||||
| Click button on building number to access detailed information: | ||||||
|---|---|---|---|---|---|---|
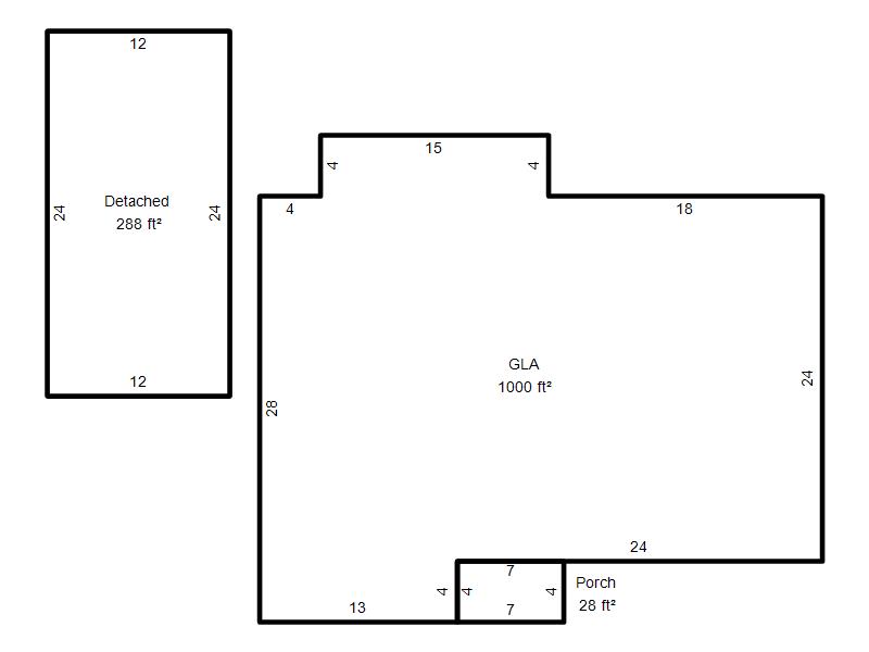
| Bldg # | Vacant/Improved Land | Bldg Description | Year Built | SqFt | # Stories | |
|
1 |
Improved |
Ranch 1 Story |
1946 |
1,000 |
1 Stories |
|