|
|
|
| Larry Stein Oklahoma County Assessor (405) 713-1200 - Public Access System |
|
|
|
|
|
|
| Real Property Display - Screen Produced 4/2/2026 12:21:55 AM | ||||
|---|---|---|---|---|
| Account: R169591145 | Type: Residential | Location: |
1301 NW 63RD ST |
|
| Building Name/Occupant: |
|
NICHOLS HILLS |
||
| Owner Name 1: | JESTES MICHAEL L & DONNA F REV TRUST |
Parcel PIN#: |
2619-16-959-1145 |
|
| Owner Name 2: | 1/4 section #: |
2619 |
||
| Owner Name 3: | Parent Acct: |
|
||
| Billing Address: | 8800 N AUTUMN RD | Tax District: |
|
|
| City, State, Zip | OKLAHOMA CITY, OK 73151 | School System: |
Oklahoma City #89 |
|
|
Country: (If noted) |
UNITED STATES |
Land Size: |
0.1846 Acres |
|
|
Land Value: 78,792 |
|
|||
|
Sect 5-T12N-R3W Qtr SW |
SIXTY THIRD ST ADD
Block
002
Lot
006
|
|||
| Full Legal Description: SIXTY THIRD ST ADD 002 006 |
| Photo & Sketch (if available) | Comp Sales (ordered by relevancy) |
|
||||||||||||||||||
|
||||||||||||||||||||
| Value History (*The County Treasurer 405-713-1300 posts & collects actual tax amounts. Contact information HERE) | |||||||||||||
|---|---|---|---|---|---|---|---|---|---|---|---|---|---|
| Year | Market Value | Taxable Mkt Value | Gross Assessed | Exemption | Net Assessed | Millage | Est. Tax | Tax Savings | |||||
|
2026 |
434,000 |
434,000 |
47,740 |
0 |
47,740 |
140.78 |
$6,721 |
$0 |
|||||
|
2025 |
458,500 |
458,500 |
50,435 |
0 |
50,435 |
140.78 |
$7,100 |
$0 |
|||||
|
2024 |
86,817 |
86,817 |
9,549 |
0 |
9,549 |
141.11 |
$1,348 |
$0 |
|||||
|
2023 |
273,000 |
130,824 |
14,390 |
0 |
14,390 |
139.71 |
$2,011 |
$2,185 |
|||||
|
2022 |
234,500 |
124,595 |
13,704 |
0 |
13,704 |
127.53 |
$1,748 |
$1,542 |
|||||
| Property Account Status/Adjustments/Exemptions | ||
|---|---|---|
| Account # | Exemption Description | Amount |
|
R169591145 |
5% Capped Account |
0 |
| Property Deed Transaction History (Recorded in the County Clerk's Office) | |||||||
|---|---|---|---|---|---|---|---|
| Date | Type | Book | Page | Price | Grantor | Grantee | |
|
5/15/2023 |
|
Deeds |
$240,000 |
SALVATION ARMY |
JESTES MICHAEL L & DONNA F REV TRUST |
||
|
4/19/2022 |
|
Hmstd Off & |
$0 |
SNOOK MARY LOU TRS |
SALVATION ARMY |
||
|
9/30/2021 |
|
Deeds |
$0 |
SNOOK MARY LOU |
SNOOK MARY LOU TRS |
||
|
7/1/1985 |
|
Historical |
$0 |
|
SNOOK MARY LOU |
||
| Last Mailed Notice of Value (N.O.V.) Information/History | ||||||||
|---|---|---|---|---|---|---|---|---|
| Year | Date | Market Value | Taxable Market Value | Gross Assessed | Exemption | Net Assessed | ||
|
2025 |
03/28/2025 |
458,500 |
458,500 |
50,435 |
0 |
50,435 |
||
|
2023 |
02/14/2023 |
273,000 |
130,824 |
14,390 |
0 |
14,390 |
||
|
2022 |
03/15/2022 |
234,500 |
124,595 |
13,704 |
0 |
13,704 |
||
|
2021 |
03/19/2021 |
229,000 |
118,662 |
13,052 |
2,000 |
11,052 |
||
|
2018 |
04/16/2018 |
256,500 |
118,662 |
13,052 |
2,000 |
11,052 |
||
| Property Building Permit History | ||||||
|---|---|---|---|---|---|---|
| Issued | Permit # | Provided by | Bldg # | Description | Est Construction Cost | Status |
|
9/7/2023 |
158112 |
|
1 |
Remodeled |
125,000 |
Inactive |
| Click button on building number to access detailed information: | ||||||
|---|---|---|---|---|---|---|
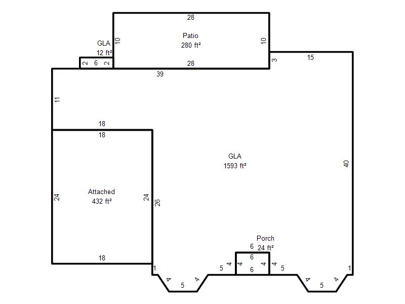
| Bldg # | Vacant/Improved Land | Bldg Description | Year Built | SqFt | # Stories | |
|
1 |
Improved |
Ranch 1 Story |
1955 |
1,605 |
1 Stories |
|