|
|
|
| Larry Stein Oklahoma County Assessor (405) 713-1200 - Public Access System |
|
|
|
|
|
|
| Real Property Display - Screen Produced 4/7/2026 7:55:34 AM | ||||
|---|---|---|---|---|
| Account: R165536575 | Type: Residential | Location: |
7611 DORSET DR |
|
| Building Name/Occupant: |
|
OKLAHOMA CITY |
||
| Owner Name 1: | BERNITSKY WILLIAM J |
Parcel PIN#: |
2624-16-553-6575 |
|
| Owner Name 2: | MILLER MARGARET K | 1/4 section #: |
2624 |
|
| Owner Name 3: | Parent Acct: |
|
||
| Billing Address: | 7611 DORSET DR | Tax District: |
|
|
| City, State, Zip | OKLAHOMA CITY, OK 73116-4101 | School System: |
Oklahoma City #89 |
|
|
Country: (If noted) |
Land Size: |
0.3606 Acres |
||
|
Land Value: 138,831 |
|
|||
|
Sect 6-T12N-R3W Qtr NW |
NICHOLS HILLS PT BLK 71
Block
071
Lot
000
|
|||
| Full Legal Description: NICHOLS HILLS PT BLK 71 071 000 BEG SW/C LOT 2 TH NELY 197FT SLY 170FT TO S LINE LOT 2 NWLY 100FT TO BEG PLUS LOT 1 BLK 116 NICHOLS HILLS SUB TRACTS |
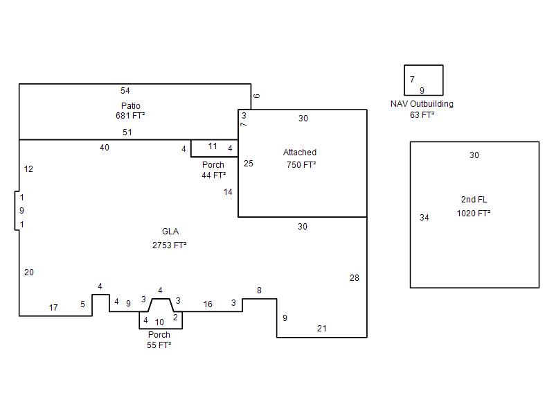
| Photo & Sketch (if available) | Comp Sales (ordered by relevancy) |
|
||||||||||||||||||
|
||||||||||||||||||||
| Value History (*The County Treasurer 405-713-1300 posts & collects actual tax amounts. Contact information HERE) | |||||||||||||
|---|---|---|---|---|---|---|---|---|---|---|---|---|---|
| Year | Market Value | Taxable Mkt Value | Gross Assessed | Exemption | Net Assessed | Millage | Est. Tax | Tax Savings | |||||
|
2026 |
856,000 |
638,139 |
70,194 |
0 |
70,194 |
122.90 |
$8,627 |
$2,945 |
|||||
|
2025 |
852,500 |
607,752 |
66,852 |
0 |
66,852 |
122.90 |
$8,216 |
$3,309 |
|||||
|
2024 |
817,500 |
578,812 |
63,668 |
0 |
63,668 |
123.89 |
$7,888 |
$3,253 |
|||||
|
2023 |
785,500 |
551,250 |
60,637 |
0 |
60,637 |
122.82 |
$7,447 |
$3,165 |
|||||
|
2022 |
799,000 |
525,000 |
57,750 |
0 |
57,750 |
117.63 |
$6,793 |
$3,545 |
|||||
| Property Account Status/Adjustments/Exemptions | ||
|---|---|---|
| Account # | Exemption Description | Amount |
|
R165536575 |
5% Capped Account |
0 |
| Property Deed Transaction History (Recorded in the County Clerk's Office) | |||||||
|---|---|---|---|---|---|---|---|
| Date | Type | Book | Page | Price | Grantor | Grantee | |
|
12/12/2019 |
|
Deeds |
$485,000 |
MILLER JESS E TRS |
BERNITSKY WILLIAM J |
||
|
11/22/1993 |
|
Historical |
$0 |
MILLER VIRGINIA A |
MILLER JESS E TRS |
||
|
12/29/1976 |
|
Historical |
$0 |
|
MILLER VIRGINIA A |
||
| Last Mailed Notice of Value (N.O.V.) Information/History | ||||||||
|---|---|---|---|---|---|---|---|---|
| Year | Date | Market Value | Taxable Market Value | Gross Assessed | Exemption | Net Assessed | ||
|
2026 |
02/23/2026 |
856,000 |
638,139 |
70,194 |
0 |
70,194 |
||
|
2025 |
02/14/2025 |
852,500 |
607,752 |
66,852 |
0 |
66,852 |
||
|
2024 |
02/13/2024 |
817,500 |
578,812 |
63,668 |
0 |
63,668 |
||
|
2023 |
02/14/2023 |
785,500 |
551,250 |
60,637 |
0 |
60,637 |
||
|
2022 |
03/15/2022 |
799,000 |
525,000 |
57,750 |
0 |
57,750 |
||
| Property Building Permit History | |||||||||||
|---|---|---|---|---|---|---|---|---|---|---|---|
| Issued | Permit # | Provided by | Bldg # | Description | Est Construction Cost | Status | |||||
| No Building Permit records returned. | |||||||||||
| Click button on building number to access detailed information: | ||||||
|---|---|---|---|---|---|---|
| Bldg # | Vacant/Improved Land | Bldg Description | Year Built | SqFt | # Stories | |
|
1 |
Improved |
1½ Story Fin |
1966 |
3,773 |
1.5 Stories |
|