|
|
|
| Larry Stein Oklahoma County Assessor (405) 713-1200 - Public Access System |
|
|
|
|
|
|
| Real Property Display - Screen Produced 3/26/2026 11:03:23 AM | ||||
|---|---|---|---|---|
| Account: R055561625 | Type: Residential | Location: |
6009 N BARNES AVE |
|
| Building Name/Occupant: |
|
OKLAHOMA CITY |
||
| Owner Name 1: | SPEARS VICKI A |
Parcel PIN#: |
2625-05-556-1625 |
|
| Owner Name 2: | ANDERSON MICHELLE S | 1/4 section #: |
2625 |
|
| Owner Name 3: | Parent Acct: |
|
||
| Billing Address: | 6009 N BARNES | Tax District: |
|
|
| City, State, Zip | OKLAHOMA CITY, OK 73112 | School System: |
Oklahoma City #89 |
|
|
Country: (If noted) |
UNITED STATES |
Land Size: |
0.3285 Acres |
|
|
Land Value: 104,448 |
|
|||
|
Sect 7-T12N-R3W Qtr NE |
WILEMAN 7TH ADD
Block
006
Lot
007
|
|||
| Full Legal Description: WILEMAN 7TH ADD 006 007 |
| Photo & Sketch (if available) | Comp Sales (ordered by relevancy) |
|
||||||||||||||||||
|
||||||||||||||||||||
| Value History (*The County Treasurer 405-713-1300 posts & collects actual tax amounts. Contact information HERE) | |||||||||||||
|---|---|---|---|---|---|---|---|---|---|---|---|---|---|
| Year | Market Value | Taxable Mkt Value | Gross Assessed | Exemption | Net Assessed | Millage | Est. Tax | Tax Savings | |||||
|
2026 |
466,000 |
411,540 |
45,268 |
1,000 |
44,268 |
122.90 |
$5,441 |
$859 |
|||||
|
2025 |
455,000 |
399,554 |
43,950 |
1,000 |
42,950 |
122.90 |
$5,279 |
$872 |
|||||
|
2024 |
424,500 |
387,917 |
42,670 |
1,000 |
41,670 |
123.89 |
$5,163 |
$622 |
|||||
|
2023 |
417,500 |
376,619 |
41,427 |
1,000 |
40,427 |
122.82 |
$4,965 |
$675 |
|||||
|
2022 |
376,500 |
365,650 |
40,221 |
1,000 |
39,221 |
117.63 |
$4,614 |
$258 |
|||||
| Property Account Status/Adjustments/Exemptions | ||
|---|---|---|
| Account # | Exemption Description | Amount |
|
R055561625 |
Homestead |
1,000 |
|
R055561625 |
3% Cap Homestead |
0 |
| Property Deed Transaction History (Recorded in the County Clerk's Office) | |||||||
|---|---|---|---|---|---|---|---|
| Date | Type | Book | Page | Price | Grantor | Grantee | |
|
11/1/2018 |
|
Deeds |
$395,000 |
MOSHER MICHAEL & DEBRA |
SPEARS VICKI A |
||
|
7/14/2016 |
|
Deeds |
$280,000 |
THOMAS DAVID L & SANDRA S |
MOSHER MICHAEL & DEBRA |
||
|
2/1/1996 |
|
Historical |
$129,000 |
VOSS JESSIE D |
THOMAS DAVID L & SANDRA S |
||
|
3/17/1989 |
|
Historical |
$0 |
ROBERTSON HELEN M |
VOSS JESSIE D |
||
|
8/1/1977 |
|
Historical |
$0 |
|
ROBERTSON HELEN M |
||
| Last Mailed Notice of Value (N.O.V.) Information/History | ||||||||
|---|---|---|---|---|---|---|---|---|
| Year | Date | Market Value | Taxable Market Value | Gross Assessed | Exemption | Net Assessed | ||
|
2026 |
02/23/2026 |
466,000 |
411,540 |
45,268 |
1,000 |
44,268 |
||
|
2025 |
02/14/2025 |
455,000 |
399,554 |
43,950 |
1,000 |
42,950 |
||
|
2024 |
02/13/2024 |
424,500 |
387,917 |
42,670 |
1,000 |
41,670 |
||
|
2023 |
02/14/2023 |
417,500 |
376,619 |
41,427 |
1,000 |
40,427 |
||
|
2022 |
03/15/2022 |
376,500 |
372,750 |
41,002 |
0 |
41,002 |
||
| Property Building Permit History | |||||||||||
|---|---|---|---|---|---|---|---|---|---|---|---|
| Issued | Permit # | Provided by | Bldg # | Description | Est Construction Cost | Status | |||||
| No Building Permit records returned. | |||||||||||
| Click button on building number to access detailed information: | ||||||
|---|---|---|---|---|---|---|
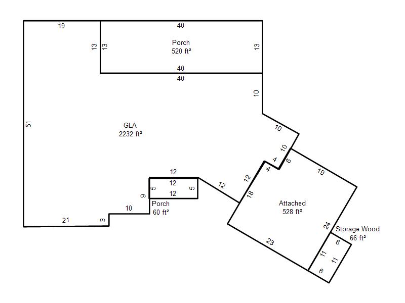
| Bldg # | Vacant/Improved Land | Bldg Description | Year Built | SqFt | # Stories | |
|
1 |
Improved |
Ranch 1 Story |
1957 |
2,232 |
1 Stories |
|