|
|
|
| Larry Stein Oklahoma County Assessor (405) 713-1200 - Public Access System |
|
|
|
|
|
|
| Real Property Display - Screen Produced 3/26/2026 11:03:22 AM | ||||
|---|---|---|---|---|
| Account: R055561705 | Type: Residential | Location: |
5909 N BARNES AVE |
|
| Building Name/Occupant: |
|
OKLAHOMA CITY |
||
| Owner Name 1: | OSBORNE PEYTON E & SUSAN |
Parcel PIN#: |
2625-05-556-1705 |
|
| Owner Name 2: | 1/4 section #: |
2625 |
||
| Owner Name 3: | Parent Acct: |
|
||
| Billing Address: | 5909 N BARNES AVE | Tax District: |
|
|
| City, State, Zip | OKLAHOMA CITY, OK 73112-7322 | School System: |
Oklahoma City #89 |
|
|
Country: (If noted) |
Land Size: |
0.3107 Acres |
||
|
Land Value: 98,813 |
|
|||
|
Sect 7-T12N-R3W Qtr NE |
WILEMAN 7TH ADD
Block
007
Lot
001
|
|||
| Full Legal Description: WILEMAN 7TH ADD 007 001 |
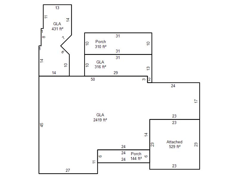
| Photo & Sketch (if available) | Comp Sales (ordered by relevancy) |
|
||||||||||||||||||
|
||||||||||||||||||||
| Value History (*The County Treasurer 405-713-1300 posts & collects actual tax amounts. Contact information HERE) | |||||||||||||
|---|---|---|---|---|---|---|---|---|---|---|---|---|---|
| Year | Market Value | Taxable Mkt Value | Gross Assessed | Exemption | Net Assessed | Millage | Est. Tax | Tax Savings | |||||
|
2026 |
536,000 |
415,193 |
45,671 |
1,000 |
44,671 |
122.90 |
$5,490 |
$1,756 |
|||||
|
2025 |
520,000 |
403,100 |
44,340 |
1,000 |
43,340 |
122.90 |
$5,327 |
$1,703 |
|||||
|
2024 |
490,000 |
391,360 |
43,048 |
1,000 |
42,048 |
123.89 |
$5,210 |
$1,468 |
|||||
|
2023 |
477,000 |
379,962 |
41,795 |
1,000 |
40,795 |
122.82 |
$5,011 |
$1,434 |
|||||
|
2022 |
428,500 |
368,896 |
40,577 |
1,000 |
39,577 |
117.63 |
$4,656 |
$889 |
|||||
| Property Account Status/Adjustments/Exemptions | ||
|---|---|---|
| Account # | Exemption Description | Amount |
|
R055561705 |
3% Cap Homestead |
0 |
|
R055561705 |
Homestead |
1,000 |
| Property Deed Transaction History (Recorded in the County Clerk's Office) | |||||||
|---|---|---|---|---|---|---|---|
| Date | Type | Book | Page | Price | Grantor | Grantee | |
|
9/11/2014 |
|
Deeds |
$0 |
OSBORNE PEYTON E |
OSBORNE PEYTON E & SUSAN |
||
|
4/1/1978 |
|
Historical |
$0 |
|
OSBORNE PEYTON E |
||
| Last Mailed Notice of Value (N.O.V.) Information/History | ||||||||
|---|---|---|---|---|---|---|---|---|
| Year | Date | Market Value | Taxable Market Value | Gross Assessed | Exemption | Net Assessed | ||
|
2026 |
02/23/2026 |
536,000 |
415,193 |
45,671 |
1,000 |
44,671 |
||
|
2025 |
02/14/2025 |
520,000 |
403,100 |
44,340 |
1,000 |
43,340 |
||
|
2024 |
02/13/2024 |
490,000 |
391,360 |
43,048 |
1,000 |
42,048 |
||
|
2023 |
02/14/2023 |
477,000 |
379,962 |
41,795 |
1,000 |
40,795 |
||
|
2022 |
03/15/2022 |
428,500 |
368,896 |
40,577 |
1,000 |
39,577 |
||
| Property Building Permit History | |||||||||||
|---|---|---|---|---|---|---|---|---|---|---|---|
| Issued | Permit # | Provided by | Bldg # | Description | Est Construction Cost | Status | |||||
| No Building Permit records returned. | |||||||||||
| Click button on building number to access detailed information: | ||||||
|---|---|---|---|---|---|---|
| Bldg # | Vacant/Improved Land | Bldg Description | Year Built | SqFt | # Stories | |
|
1 |
Improved |
Ranch 1 Story |
1958 |
3,166 |
1 Stories |
|