|
|
|
| Larry Stein Oklahoma County Assessor (405) 713-1200 - Public Access System |
|
|
|
|
|
|
| Real Property Display - Screen Produced 3/26/2026 11:02:10 AM | ||||
|---|---|---|---|---|
| Account: R055561895 | Type: Residential | Location: |
5824 N BARNES CIR |
|
| Building Name/Occupant: |
|
OKLAHOMA CITY |
||
| Owner Name 1: | FINNEGAN TRISHA MOORE |
Parcel PIN#: |
2625-05-556-1895 |
|
| Owner Name 2: | DEMERITT DARYN LAMBERT A | 1/4 section #: |
2625 |
|
| Owner Name 3: | Parent Acct: |
|
||
| Billing Address: | 5824 N BARNES CIR | Tax District: |
|
|
| City, State, Zip | OKLAHOMA CITY, OK 73112-7330 | School System: |
Oklahoma City #89 |
|
|
Country: (If noted) |
Land Size: |
0.4121 Acres |
||
|
Land Value: 131,050 |
|
|||
|
Sect 7-T12N-R3W Qtr NE |
WILEMAN 7TH ADD
Block
008
Lot
010
|
|||
| Full Legal Description: WILEMAN 7TH ADD 008 010 |
| Photo & Sketch (if available) | Comp Sales (ordered by relevancy) |
|
||||||||||||||||||
|
||||||||||||||||||||
| Value History (*The County Treasurer 405-713-1300 posts & collects actual tax amounts. Contact information HERE) | |||||||||||||
|---|---|---|---|---|---|---|---|---|---|---|---|---|---|
| Year | Market Value | Taxable Mkt Value | Gross Assessed | Exemption | Net Assessed | Millage | Est. Tax | Tax Savings | |||||
|
2026 |
1,149,000 |
1,149,000 |
126,390 |
0 |
126,390 |
122.90 |
$15,533 |
$0 |
|||||
|
2025 |
711,500 |
711,500 |
78,265 |
0 |
78,265 |
122.90 |
$9,619 |
$0 |
|||||
|
2024 |
678,500 |
678,500 |
74,635 |
0 |
74,635 |
123.89 |
$9,247 |
$0 |
|||||
|
2023 |
655,000 |
655,000 |
72,050 |
0 |
72,050 |
122.82 |
$8,849 |
$0 |
|||||
|
2022 |
579,000 |
579,000 |
63,690 |
0 |
63,690 |
117.63 |
$7,492 |
$0 |
|||||
| Property Account Status/Adjustments/Exemptions | ||||||
|---|---|---|---|---|---|---|
| Account # | Exemption Description | Amount | ||||
| No adjustment/exemption records returned. | ||||||
| Property Deed Transaction History (Recorded in the County Clerk's Office) | ||||||||||
|---|---|---|---|---|---|---|---|---|---|---|
| Date | Type | Book | Page | Price | Grantor | Grantee | ||||
|
4/25/2025 |
|
Deeds |
$1,150,000 |
JANSEN JEREMIAH A |
FINNEGAN TRISHA MOORE |
|||||
|
4/11/2022 |
|
Deeds |
$683,500 |
COMPTON ADAM |
JANSEN JEREMIAH A |
|||||
|
4/13/2021 |
|
Deeds |
$565,000 |
MCMILLIN JAMES C & NORA JEAN |
COMPTON ADAM |
|||||
|
4/13/2021 |
|
Deeds |
$565,000 |
MCMILLIN JAMES C & NORA J |
COMPTON ADAM |
|||||
|
9/2/2016 |
|
Deeds |
$0 |
MCMILLIN JAMES C |
MCMILLIN JAMES C & NORA JEAN |
|||||
| Last Mailed Notice of Value (N.O.V.) Information/History | ||||||||
|---|---|---|---|---|---|---|---|---|
| Year | Date | Market Value | Taxable Market Value | Gross Assessed | Exemption | Net Assessed | ||
|
2026 |
02/23/2026 |
1,149,000 |
1,149,000 |
126,390 |
0 |
126,390 |
||
|
2025 |
02/14/2025 |
711,500 |
711,500 |
78,265 |
0 |
78,265 |
||
|
2024 |
02/13/2024 |
678,500 |
678,500 |
74,635 |
0 |
74,635 |
||
|
2023 |
02/14/2023 |
655,000 |
655,000 |
72,050 |
0 |
72,050 |
||
|
2022 |
03/15/2022 |
579,000 |
579,000 |
63,690 |
0 |
63,690 |
||
| Property Building Permit History | |||||||||||
|---|---|---|---|---|---|---|---|---|---|---|---|
| Issued | Permit # | Provided by | Bldg # | Description | Est Construction Cost | Status | |||||
| No Building Permit records returned. | |||||||||||
| Click button on building number to access detailed information: | ||||||
|---|---|---|---|---|---|---|
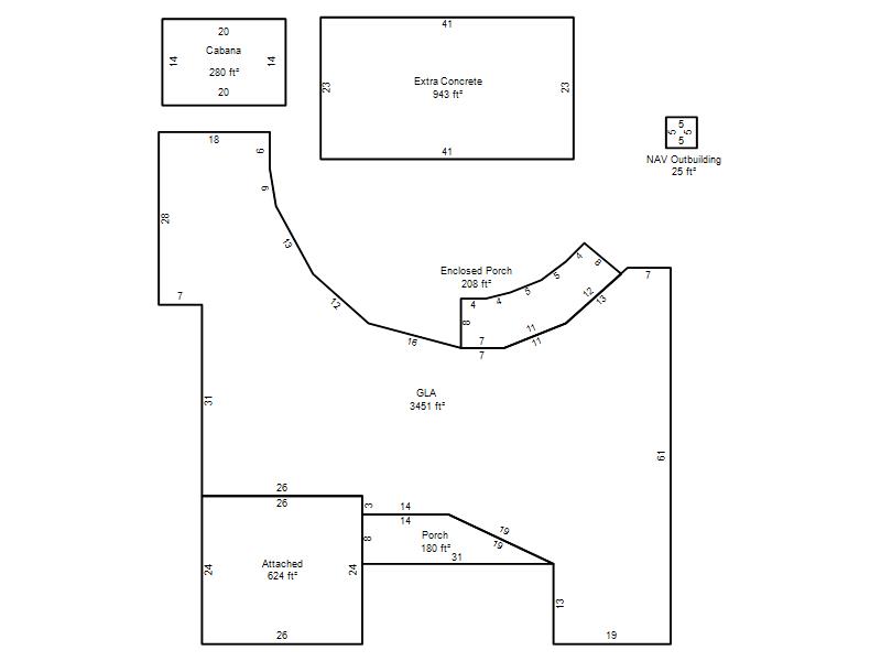
| Bldg # | Vacant/Improved Land | Bldg Description | Year Built | SqFt | # Stories | |
|
1 |
Improved |
Ranch 1 Story |
1959 |
3,451 |
1 Stories |
|