|
|
|
| Larry Stein Oklahoma County Assessor (405) 713-1200 - Public Access System |
|
|
|
|
|
|
| Real Property Display - Screen Produced 3/28/2026 5:51:09 AM | ||||
|---|---|---|---|---|
| Account: R100921155 | Type: Residential | Location: |
2348 NW 58TH ST |
|
| Building Name/Occupant: |
|
OKLAHOMA CITY |
||
| Owner Name 1: | GRAY CATHY H TRS |
Parcel PIN#: |
2625-10-092-1155 |
|
| Owner Name 2: | GRAY STEVE TRS | 1/4 section #: |
2625 |
|
| Owner Name 3: | GRAY TRUST | Parent Acct: |
|
|
| Billing Address: | 2348 NW 58TH ST | Tax District: |
|
|
| City, State, Zip | OKLAHOMA CITY, OK 73112 | School System: |
Oklahoma City #89 |
|
|
Country: (If noted) |
Land Size: |
0.3161 Acres |
||
|
Land Value: 100,521 |
|
|||
|
Sect 7-T12N-R3W Qtr NE |
WILEMAN 9TH REPLAT
Block
002
Lot
017
|
|||
| Full Legal Description: WILEMAN 9TH REPLAT 002 017 |
| Photo & Sketch (if available) | Comp Sales (ordered by relevancy) |
|
||||||||||||||||||
|
||||||||||||||||||||
| Value History (*The County Treasurer 405-713-1300 posts & collects actual tax amounts. Contact information HERE) | |||||||||||||
|---|---|---|---|---|---|---|---|---|---|---|---|---|---|
| Year | Market Value | Taxable Mkt Value | Gross Assessed | Exemption | Net Assessed | Millage | Est. Tax | Tax Savings | |||||
|
2026 |
514,500 |
438,026 |
48,182 |
1,000 |
47,182 |
122.90 |
$5,799 |
$1,157 |
|||||
|
2025 |
489,500 |
425,268 |
46,779 |
1,000 |
45,779 |
122.90 |
$5,626 |
$991 |
|||||
|
2024 |
444,000 |
412,882 |
45,416 |
1,000 |
44,416 |
123.89 |
$5,503 |
$548 |
|||||
|
2023 |
448,000 |
400,857 |
44,094 |
1,000 |
43,094 |
122.82 |
$5,293 |
$760 |
|||||
|
2022 |
411,000 |
389,182 |
42,809 |
0 |
42,809 |
117.63 |
$5,036 |
$282 |
|||||
| Property Account Status/Adjustments/Exemptions | ||
|---|---|---|
| Account # | Exemption Description | Amount |
|
R100921155 |
Homestead |
1,000 |
| Property Deed Transaction History (Recorded in the County Clerk's Office) | ||||||||||
|---|---|---|---|---|---|---|---|---|---|---|
| Date | Type | Book | Page | Price | Grantor | Grantee | ||||
|
1/11/2021 |
|
Hmstd Off & |
$0 |
GRAY WILLIAM S & CATHY H |
GRAY CATHY H TRS |
|||||
|
5/6/2016 |
|
Deeds |
$337,500 |
MARTINEZ TRACEY D |
GRAY WILLIAM S & CATHY H |
|||||
|
12/12/2013 |
|
Deeds |
$295,000 |
KELLY MARK |
MARTINEZ TRACEY D |
|||||
|
9/13/2012 |
|
Deeds |
$0 |
KELLY MARK THOMAS TRS LEGACY LIVING TRUST |
KELLY MARK |
|||||
|
9/13/2012 |
|
Deeds |
$0 |
KELLY MARK |
KELLY MARK |
|||||
| Last Mailed Notice of Value (N.O.V.) Information/History | ||||||||
|---|---|---|---|---|---|---|---|---|
| Year | Date | Market Value | Taxable Market Value | Gross Assessed | Exemption | Net Assessed | ||
|
2026 |
02/23/2026 |
514,500 |
438,026 |
48,182 |
1,000 |
47,182 |
||
|
2025 |
02/14/2025 |
489,500 |
425,268 |
46,779 |
1,000 |
45,779 |
||
|
2024 |
02/13/2024 |
444,000 |
412,882 |
45,416 |
1,000 |
44,416 |
||
|
2023 |
02/14/2023 |
448,000 |
408,641 |
44,950 |
0 |
44,950 |
||
|
2022 |
03/15/2022 |
411,000 |
389,182 |
42,809 |
0 |
42,809 |
||
| Property Building Permit History | |||||||||||
|---|---|---|---|---|---|---|---|---|---|---|---|
| Issued | Permit # | Provided by | Bldg # | Description | Est Construction Cost | Status | |||||
| No Building Permit records returned. | |||||||||||
| Click button on building number to access detailed information: | ||||||
|---|---|---|---|---|---|---|
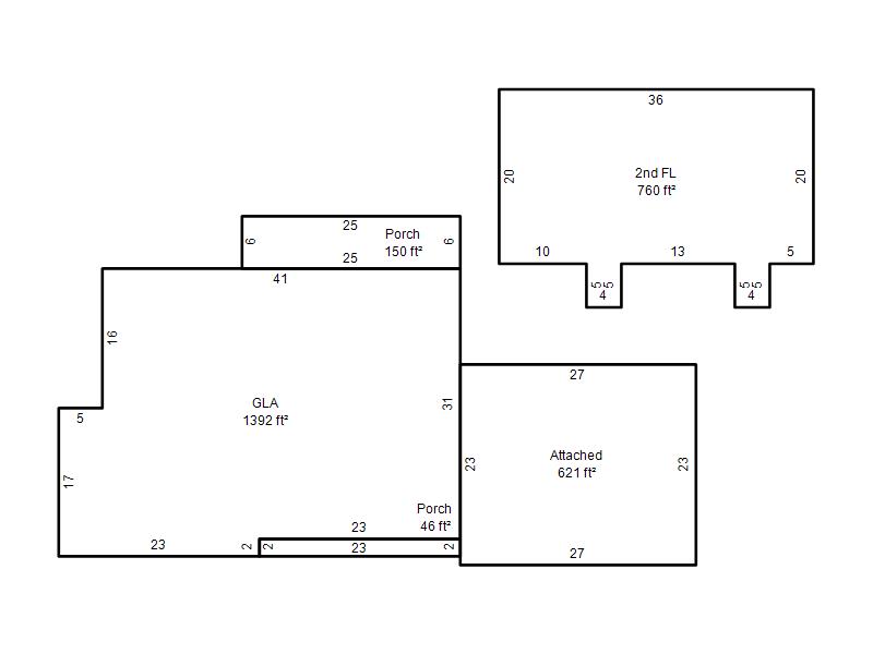
| Bldg # | Vacant/Improved Land | Bldg Description | Year Built | SqFt | # Stories | |
|
1 |
Improved |
1½ Story Fin |
1961 |
2,152 |
1.5 Stories |
|