|
|
|
| Larry Stein Oklahoma County Assessor (405) 713-1200 - Public Access System |
|
|
|
|
|
|
| Real Property Display - Screen Produced 3/14/2026 7:59:14 AM | ||||
|---|---|---|---|---|
| Account: R148831400 | Type: Residential | Location: |
6305 RAINTREE DR |
|
| Building Name/Occupant: |
|
OKLAHOMA CITY |
||
| Owner Name 1: | WHITE MARVIN D & CAROLYN S TRS |
Parcel PIN#: |
1320-14-883-1400 |
|
| Owner Name 2: | WHITE MARVIN D & CAROLYN REV TRUST | 1/4 section #: |
1320 |
|
| Owner Name 3: | Parent Acct: |
|
||
| Billing Address: | 6305 RAINTREE DR | Tax District: |
|
|
| City, State, Zip | OKLAHOMA CITY, OK 73150-6107 | School System: |
Mid-Del #52 |
|
|
Country: (If noted) |
Land Size: |
1.1400 Acres |
||
|
Land Value: 51,129 |
|
|||
|
Sect 30-T11N-R1W Qtr NW |
RAINTREE MANOR
Block
003
Lot
001
|
|||
| Full Legal Description: RAINTREE MANOR 003 001 |
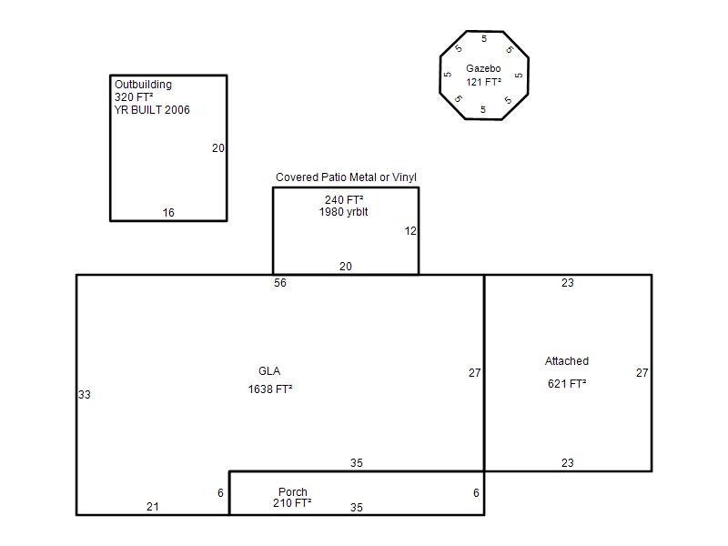
| Photo & Sketch (if available) | Comp Sales (ordered by relevancy) |
|
||||||||||||||||||
|
||||||||||||||||||||
| Value History (*The County Treasurer 405-713-1300 posts & collects actual tax amounts. Contact information HERE) | |||||||||||||
|---|---|---|---|---|---|---|---|---|---|---|---|---|---|
| Year | Market Value | Taxable Mkt Value | Gross Assessed | Exemption | Net Assessed | Millage | Est. Tax | Tax Savings | |||||
|
2025 |
254,500 |
182,913 |
20,120 |
1,000 |
19,120 |
126.46 |
$2,418 |
$1,122 |
|||||
|
2024 |
248,500 |
177,586 |
19,533 |
1,000 |
18,533 |
128.51 |
$2,382 |
$1,131 |
|||||
|
2023 |
235,000 |
172,414 |
18,965 |
1,000 |
17,965 |
122.94 |
$2,209 |
$969 |
|||||
|
2022 |
202,000 |
167,393 |
18,412 |
1,000 |
17,412 |
122.11 |
$2,126 |
$587 |
|||||
|
2021 |
176,000 |
162,518 |
17,876 |
1,000 |
16,876 |
124.74 |
$2,105 |
$310 |
|||||
| Property Account Status/Adjustments/Exemptions | ||
|---|---|---|
| Account # | Exemption Description | Amount |
|
R148831400 |
3% Cap Homestead |
0 |
|
R148831400 |
Homestead |
1,000 |
| Property Deed Transaction History (Recorded in the County Clerk's Office) | |||||||
|---|---|---|---|---|---|---|---|
| Date | Type | Book | Page | Price | Grantor | Grantee | |
|
9/17/2007 |
|
Deeds |
$0 |
WHITE MARVIN D & CAROLYN S |
WHITE MARVIN D & CAROLYN S TRS |
||
|
10/1/1976 |
|
Historical |
$0 |
|
WHITE MARVIN D & CAROLYN S |
||
| Last Mailed Notice of Value (N.O.V.) Information/History | ||||||||
|---|---|---|---|---|---|---|---|---|
| Year | Date | Market Value | Taxable Market Value | Gross Assessed | Exemption | Net Assessed | ||
|
2026 |
02/06/2026 |
260,500 |
188,400 |
20,723 |
1,000 |
19,723 |
||
|
2025 |
01/31/2025 |
254,500 |
182,913 |
20,120 |
1,000 |
19,120 |
||
|
2024 |
01/22/2024 |
248,500 |
177,586 |
19,533 |
1,000 |
18,533 |
||
|
2023 |
01/23/2023 |
235,000 |
172,414 |
18,965 |
1,000 |
17,965 |
||
|
2022 |
02/22/2022 |
202,000 |
167,393 |
18,412 |
1,000 |
17,412 |
||
| Property Building Permit History | ||||||
|---|---|---|---|---|---|---|
| Issued | Permit # | Provided by | Bldg # | Description | Est Construction Cost | Status |
|
4/2/2008 |
10352848 |
OKLAHOMA CITY |
1 |
Swimming Pool |
0 |
Inactive |
| Click button on building number to access detailed information: | ||||||
|---|---|---|---|---|---|---|
| Bldg # | Vacant/Improved Land | Bldg Description | Year Built | SqFt | # Stories | |
|
1 |
Improved |
Ranch 1 Story |
1976 |
1,638 |
1 Stories |
|