|
|
|
| Larry Stein Oklahoma County Assessor (405) 713-1200 - Public Access System |
|
|
|
|
|
|
| Real Property Display - Screen Produced 3/30/2026 5:31:23 AM | ||||
|---|---|---|---|---|
| Account: R114790210 | Type: Residential | Location: |
2533 NW 56TH ST |
|
| Building Name/Occupant: |
|
OKLAHOMA CITY |
||
| Owner Name 1: | SILBERNAGEL FRED & W YVONNE |
Parcel PIN#: |
2627-11-479-0210 |
|
| Owner Name 2: | 1/4 section #: |
2627 |
||
| Owner Name 3: | Parent Acct: |
|
||
| Billing Address: | 2533 NW 56TH ST | Tax District: |
|
|
| City, State, Zip | OKLAHOMA CITY, OK 73112-7140 | School System: |
Oklahoma City #89 |
|
|
Country: (If noted) |
Land Size: |
0.2669 Acres |
||
|
Land Value: 70,331 |
|
|||
|
Sect 7-T12N-R3W Qtr SW |
BELLE ISLE VIEW ADD
Block
001
Lot
000
|
|||
| Full Legal Description: BELLE ISLE VIEW ADD 001 000 LOTS 15 16 & 17 & A TR 30FT WIDE ADJ ON N |
| Photo & Sketch (if available) | Comp Sales (ordered by relevancy) |
|
||||||||||||||||||
|
||||||||||||||||||||
| Value History (*The County Treasurer 405-713-1300 posts & collects actual tax amounts. Contact information HERE) | |||||||||||||
|---|---|---|---|---|---|---|---|---|---|---|---|---|---|
| Year | Market Value | Taxable Mkt Value | Gross Assessed | Exemption | Net Assessed | Millage | Est. Tax | Tax Savings | |||||
|
2026 |
303,500 |
233,082 |
25,638 |
1,000 |
24,638 |
122.90 |
$3,028 |
$1,075 |
|||||
|
2025 |
297,500 |
226,294 |
24,892 |
1,000 |
23,892 |
122.90 |
$2,936 |
$1,086 |
|||||
|
2024 |
278,000 |
219,703 |
24,166 |
1,000 |
23,166 |
123.89 |
$2,870 |
$918 |
|||||
|
2023 |
260,000 |
213,304 |
23,463 |
1,000 |
22,463 |
122.82 |
$2,759 |
$754 |
|||||
|
2022 |
236,000 |
207,092 |
22,779 |
1,000 |
21,779 |
117.63 |
$2,562 |
$492 |
|||||
| Property Account Status/Adjustments/Exemptions | ||
|---|---|---|
| Account # | Exemption Description | Amount |
|
R114790210 |
3% Cap Homestead |
0 |
|
R114790210 |
Homestead |
1,000 |
| Property Deed Transaction History (Recorded in the County Clerk's Office) | ||||||||||
|---|---|---|---|---|---|---|---|---|---|---|
| Date | Type | Book | Page | Price | Grantor | Grantee | ||||
|
9/30/2003 |
|
Deeds |
$85,000 |
SIEFERT THOMAS G TRUST |
SILBERNAGEL FRED & W YVONNE |
|||||
|
2/10/2003 |
|
Deeds |
$140,000 |
LINDLOW CONSTRUCTION INC |
SILBERNAGEL FRED & W YVONNE |
|||||
|
9/30/2002 |
|
Deeds |
$0 |
SEIFERT THOMAS G & LUCILLE R |
SEIFERT THOMAS G |
|||||
|
10/26/1993 |
|
Historical |
$0 |
SEIFERT THOMAS G |
SIEFERT THOMAS G TRUST |
|||||
|
3/30/1992 |
|
Historical |
$0 |
SEIFERT THOMAS G & LUCILE R |
SEIFERT THOMAS G |
|||||
| Last Mailed Notice of Value (N.O.V.) Information/History | ||||||||
|---|---|---|---|---|---|---|---|---|
| Year | Date | Market Value | Taxable Market Value | Gross Assessed | Exemption | Net Assessed | ||
|
2026 |
02/23/2026 |
303,500 |
233,082 |
25,638 |
1,000 |
24,638 |
||
|
2025 |
02/14/2025 |
297,500 |
226,294 |
24,892 |
1,000 |
23,892 |
||
|
2024 |
02/13/2024 |
278,000 |
219,703 |
24,166 |
1,000 |
23,166 |
||
|
2023 |
02/14/2023 |
260,000 |
213,304 |
23,463 |
1,000 |
22,463 |
||
|
2022 |
03/15/2022 |
236,000 |
207,092 |
22,779 |
1,000 |
21,779 |
||
| Property Building Permit History | |||||||||||
|---|---|---|---|---|---|---|---|---|---|---|---|
| Issued | Permit # | Provided by | Bldg # | Description | Est Construction Cost | Status | |||||
| No Building Permit records returned. | |||||||||||
| Click button on building number to access detailed information: | ||||||
|---|---|---|---|---|---|---|
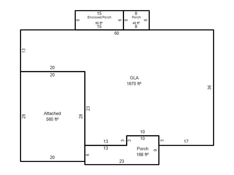
| Bldg # | Vacant/Improved Land | Bldg Description | Year Built | SqFt | # Stories | |
|
1 |
Improved |
Ranch 1 Story |
1959 |
1,670 |
1 Stories |
|