|
|
|
| Larry Stein Oklahoma County Assessor (405) 713-1200 - Public Access System |
|
|
|
|
|
|
| Real Property Display - Screen Produced 3/30/2026 5:25:36 AM | ||||
|---|---|---|---|---|
| Account: R114791370 | Type: Residential | Location: |
2524 NW 56TH ST |
|
| Building Name/Occupant: |
|
OKLAHOMA CITY |
||
| Owner Name 1: | COURTNEY MATTHEW RYAN & SUSAN R |
Parcel PIN#: |
2627-11-479-1370 |
|
| Owner Name 2: | 1/4 section #: |
2627 |
||
| Owner Name 3: | Parent Acct: |
|
||
| Billing Address: | 2524 NW 56TH ST | Tax District: |
|
|
| City, State, Zip | OKLAHOMA CITY, OK 73112-7141 | School System: |
Oklahoma City #89 |
|
|
Country: (If noted) |
Land Size: |
0.2410 Acres |
||
|
Land Value: 63,525 |
|
|||
|
Sect 7-T12N-R3W Qtr SW |
BELLE ISLE VIEW ADD
Block
004
Lot
000
|
|||
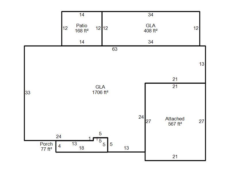
| Full Legal Description: BELLE ISLE VIEW ADD 004 000 LOTS 13 14 & 15 |
| Photo & Sketch (if available) | Comp Sales (ordered by relevancy) |
|
||||||||||||||||||
|
||||||||||||||||||||
| Value History (*The County Treasurer 405-713-1300 posts & collects actual tax amounts. Contact information HERE) | |||||||||||||
|---|---|---|---|---|---|---|---|---|---|---|---|---|---|
| Year | Market Value | Taxable Mkt Value | Gross Assessed | Exemption | Net Assessed | Millage | Est. Tax | Tax Savings | |||||
|
2026 |
455,500 |
332,099 |
36,529 |
1,000 |
35,529 |
122.90 |
$4,367 |
$1,791 |
|||||
|
2025 |
447,500 |
322,427 |
35,465 |
1,000 |
34,465 |
122.90 |
$4,236 |
$1,814 |
|||||
|
2024 |
419,500 |
313,036 |
34,433 |
1,000 |
33,433 |
123.89 |
$4,142 |
$1,575 |
|||||
|
2023 |
394,000 |
303,919 |
33,430 |
1,000 |
32,430 |
122.82 |
$3,983 |
$1,340 |
|||||
|
2022 |
364,000 |
295,067 |
32,456 |
1,000 |
31,456 |
117.63 |
$3,700 |
$1,010 |
|||||
| Property Account Status/Adjustments/Exemptions | ||
|---|---|---|
| Account # | Exemption Description | Amount |
|
R114791370 |
3% Cap Homestead |
0 |
|
R114791370 |
Homestead |
1,000 |
| Property Deed Transaction History (Recorded in the County Clerk's Office) | ||||||||||
|---|---|---|---|---|---|---|---|---|---|---|
| Date | Type | Book | Page | Price | Grantor | Grantee | ||||
|
1/31/2012 |
|
Deeds |
$225,000 |
DOWDY JASON DOWDY MOLLY |
COURTNEY MATTHEW RYAN & SUSAN R |
|||||
|
5/25/2011 |
|
Deeds |
$155,000 |
MAUPIN STEVEN N & ALICIA L |
DOWDY JASON DOWDY MOLLY |
|||||
|
1/31/2006 |
|
Deeds |
$130,000 |
SMITH ELLA LOUISE TRS SMITH ELLA LOUISE LIVING TRUST |
MAUPIN STEVEN N & ALICIA L |
|||||
|
5/13/2003 |
|
Deeds |
$0 |
SMITH E LOUISE TRS SMITH E LOUISE LIV TRUST |
SMITH ELLA LOUISE |
|||||
|
5/13/2003 |
|
Deeds |
$0 |
SMITH ELLA LOUISE |
SMITH ELLA LOUISE TRS SMITH ELLA LOUISE LIVING TRUST |
|||||
| Last Mailed Notice of Value (N.O.V.) Information/History | ||||||||
|---|---|---|---|---|---|---|---|---|
| Year | Date | Market Value | Taxable Market Value | Gross Assessed | Exemption | Net Assessed | ||
|
2026 |
02/23/2026 |
455,500 |
332,099 |
36,529 |
1,000 |
35,529 |
||
|
2025 |
02/14/2025 |
447,500 |
322,427 |
35,465 |
1,000 |
34,465 |
||
|
2024 |
02/13/2024 |
419,500 |
313,036 |
34,433 |
1,000 |
33,433 |
||
|
2023 |
02/14/2023 |
394,000 |
303,919 |
33,430 |
1,000 |
32,430 |
||
|
2022 |
03/15/2022 |
364,000 |
295,067 |
32,456 |
1,000 |
31,456 |
||
| Property Building Permit History | |||||||||||
|---|---|---|---|---|---|---|---|---|---|---|---|
| Issued | Permit # | Provided by | Bldg # | Description | Est Construction Cost | Status | |||||
| No Building Permit records returned. | |||||||||||
| Click button on building number to access detailed information: | ||||||
|---|---|---|---|---|---|---|
| Bldg # | Vacant/Improved Land | Bldg Description | Year Built | SqFt | # Stories | |
|
1 |
Improved |
Ranch 1 Story |
1958 |
2,114 |
1 Stories |
|