|
|
|
| Larry Stein Oklahoma County Assessor (405) 713-1200 - Public Access System |
|
|
|
|
|
|
| Real Property Display - Screen Produced 3/30/2026 5:30:43 AM | ||||
|---|---|---|---|---|
| Account: R114791785 | Type: Residential | Location: |
2508 NW 55TH PL |
|
| Building Name/Occupant: |
|
OKLAHOMA CITY |
||
| Owner Name 1: | MATTISON KRIS K |
Parcel PIN#: |
2627-11-479-1785 |
|
| Owner Name 2: | 1/4 section #: |
2627 |
||
| Owner Name 3: | Parent Acct: |
|
||
| Billing Address: | 2508 NW 55TH PL | Tax District: |
|
|
| City, State, Zip | OKLAHOMA CITY, OK 73112-7124 | School System: |
Oklahoma City #89 |
|
|
Country: (If noted) |
Land Size: |
0.2571 Acres |
||
|
Land Value: 67,760 |
|
|||
|
Sect 7-T12N-R3W Qtr SW |
BELLE ISLE VIEW ADD
Block
005
Lot
000
|
|||
| Full Legal Description: BELLE ISLE VIEW ADD 005 000 W10FT LOT 4 ALL LOTS 5 & 6 & E20FT LOT 7 |
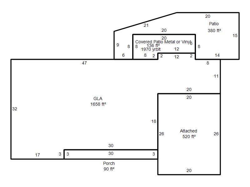
| Photo & Sketch (if available) | Comp Sales (ordered by relevancy) |
|
||||||||||||||||||
|
||||||||||||||||||||
| Value History (*The County Treasurer 405-713-1300 posts & collects actual tax amounts. Contact information HERE) | |||||||||||||
|---|---|---|---|---|---|---|---|---|---|---|---|---|---|
| Year | Market Value | Taxable Mkt Value | Gross Assessed | Exemption | Net Assessed | Millage | Est. Tax | Tax Savings | |||||
|
2026 |
392,000 |
255,140 |
28,065 |
1,000 |
27,065 |
122.90 |
$3,326 |
$1,973 |
|||||
|
2025 |
384,500 |
255,140 |
28,065 |
1,000 |
27,065 |
122.90 |
$3,326 |
$1,872 |
|||||
|
2024 |
358,000 |
255,140 |
28,065 |
1,000 |
27,065 |
123.89 |
$3,353 |
$1,526 |
|||||
|
2023 |
338,000 |
255,140 |
28,065 |
1,000 |
27,065 |
122.82 |
$3,324 |
$1,242 |
|||||
|
2022 |
314,000 |
255,140 |
28,064 |
1,000 |
27,064 |
117.63 |
$3,184 |
$879 |
|||||
| Property Account Status/Adjustments/Exemptions | ||
|---|---|---|
| Account # | Exemption Description | Amount |
|
R114791785 |
Freeze Senior Valuation |
0 |
|
R114791785 |
3% Cap Homestead |
0 |
|
R114791785 |
Homestead |
1,000 |
| Property Deed Transaction History (Recorded in the County Clerk's Office) | ||||||||||
|---|---|---|---|---|---|---|---|---|---|---|
| Date | Type | Book | Page | Price | Grantor | Grantee | ||||
|
11/26/2013 |
|
Deeds |
$210,000 |
MATTISON NATHAN S |
MATTISON KRIS K |
|||||
|
3/26/2010 |
|
Deeds |
$174,500 |
ROBERTS TOMMIE L TRS ROBERTS TOMMIE L REV TRUST |
MATTISON NATHAN S |
|||||
|
9/29/1998 |
|
Historical |
$0 |
ROBERTS TOMMIE L |
ROBERTS TOMMIE L TRS |
|||||
|
1/23/1991 |
|
Historical |
$0 |
ROBERTS TOMMIE L & MARK F |
ROBERTS TOMMIE L |
|||||
|
3/22/1988 |
|
Historical |
$0 |
ROBERTS TOMMIE L |
ROBERTS TOMMIE L & MARK F |
|||||
| Last Mailed Notice of Value (N.O.V.) Information/History | ||||||||
|---|---|---|---|---|---|---|---|---|
| Year | Date | Market Value | Taxable Market Value | Gross Assessed | Exemption | Net Assessed | ||
|
2026 |
02/23/2026 |
392,000 |
255,140 |
28,065 |
1,000 |
27,065 |
||
|
2025 |
02/14/2025 |
384,500 |
255,140 |
28,065 |
1,000 |
27,065 |
||
|
2024 |
02/13/2024 |
358,000 |
255,140 |
28,065 |
1,000 |
27,065 |
||
|
2023 |
02/14/2023 |
338,000 |
255,140 |
28,065 |
1,000 |
27,065 |
||
|
2022 |
03/15/2022 |
314,000 |
255,140 |
28,064 |
1,000 |
27,064 |
||
| Property Building Permit History | |||||||||||
|---|---|---|---|---|---|---|---|---|---|---|---|
| Issued | Permit # | Provided by | Bldg # | Description | Est Construction Cost | Status | |||||
| No Building Permit records returned. | |||||||||||
| Click button on building number to access detailed information: | ||||||
|---|---|---|---|---|---|---|
| Bldg # | Vacant/Improved Land | Bldg Description | Year Built | SqFt | # Stories | |
|
1 |
Improved |
Ranch 1 Story |
1958 |
1,658 |
1 Stories |
|