|
|
|
| Larry Stein Oklahoma County Assessor (405) 713-1200 - Public Access System |
|
|
|
|
|
|
| Real Property Display - Screen Produced 3/30/2026 5:27:41 AM | ||||
|---|---|---|---|---|
| Account: R114793010 | Type: Residential | Location: |
2632 NW 55TH TER |
|
| Building Name/Occupant: |
|
OKLAHOMA CITY |
||
| Owner Name 1: | NEALY CARL M & CYNTHIA L JOINT REV TRUST |
Parcel PIN#: |
2627-11-479-3010 |
|
| Owner Name 2: | 1/4 section #: |
2627 |
||
| Owner Name 3: | Parent Acct: |
|
||
| Billing Address: | 2632 NW 55TH TER | Tax District: |
|
|
| City, State, Zip | OKLAHOMA CITY, OK 73112-7137 | School System: |
Oklahoma City #89 |
|
|
Country: (If noted) |
Land Size: |
0.1993 Acres |
||
|
Land Value: 52,514 |
|
|||
|
Sect 7-T12N-R3W Qtr SW |
BELLE ISLE VIEW ADD
Block
007
Lot
000
|
|||
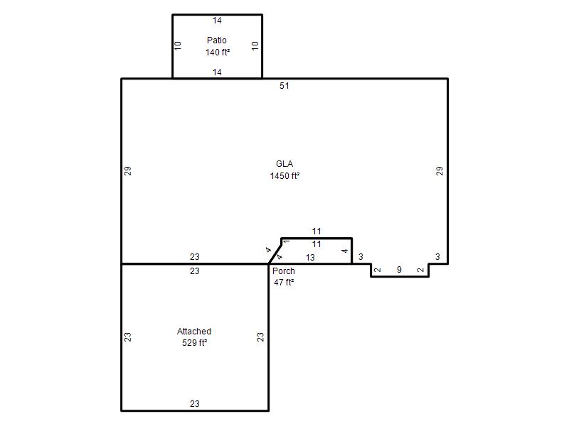
| Full Legal Description: BELLE ISLE VIEW ADD 007 000 W12 1/2FT LOT 15 & ALL LOTS 16 & 17 |
| Photo & Sketch (if available) | Comp Sales (ordered by relevancy) |
|
||||||||||||||||||
|
||||||||||||||||||||
| Value History (*The County Treasurer 405-713-1300 posts & collects actual tax amounts. Contact information HERE) | |||||||||||||
|---|---|---|---|---|---|---|---|---|---|---|---|---|---|
| Year | Market Value | Taxable Mkt Value | Gross Assessed | Exemption | Net Assessed | Millage | Est. Tax | Tax Savings | |||||
|
2026 |
250,000 |
250,000 |
27,500 |
27,500 |
0 |
122.90 |
$0 |
$3,380 |
|||||
|
2025 |
246,500 |
211,063 |
23,216 |
0 |
23,216 |
122.90 |
$2,853 |
$479 |
|||||
|
2024 |
232,000 |
201,013 |
22,110 |
0 |
22,110 |
123.89 |
$2,739 |
$422 |
|||||
|
2023 |
215,000 |
191,441 |
21,057 |
0 |
21,057 |
122.82 |
$2,586 |
$318 |
|||||
|
2022 |
184,500 |
182,325 |
20,055 |
0 |
20,055 |
117.63 |
$2,359 |
$28 |
|||||
| Property Account Status/Adjustments/Exemptions | ||
|---|---|---|
| Account # | Exemption Description | Amount |
|
R114793010 |
100% DAV Exemption |
100 |
|
R114793010 |
DAV Homestead |
0 |
| Property Deed Transaction History (Recorded in the County Clerk's Office) | |||||||
|---|---|---|---|---|---|---|---|
| Date | Type | Book | Page | Price | Grantor | Grantee | |
|
9/4/2025 |
|
Hmstd Off & |
$0 |
NEALY CYNTHIA |
NEALY CARL M & CYNTHIA L JOINT REV TRUST |
||
|
6/3/2025 |
|
Deeds |
$260,000 |
SHADID NAEBEAL L |
NEALY CYNTHIA |
||
|
4/7/1998 |
|
Historical |
$0 |
SHADID DOROTHY MAE CO TRS |
SHADID NAEBEAL L |
||
|
2/12/1997 |
|
Historical |
$0 |
SHADID DOROTHY MAE |
SHADID DOROTHY MAE CO TRS |
||
|
11/11/1911 |
|
Historical |
$0 |
|
SHADID DOROTHY MAE |
||
| Last Mailed Notice of Value (N.O.V.) Information/History | ||||||||
|---|---|---|---|---|---|---|---|---|
| Year | Date | Market Value | Taxable Market Value | Gross Assessed | Exemption | Net Assessed | ||
|
2026 |
02/23/2026 |
250,000 |
250,000 |
27,500 |
27,500 |
0 |
||
|
2025 |
02/14/2025 |
246,500 |
211,063 |
23,216 |
0 |
23,216 |
||
|
2024 |
02/13/2024 |
232,000 |
201,013 |
22,110 |
0 |
22,110 |
||
|
2023 |
02/14/2023 |
215,000 |
191,441 |
21,057 |
0 |
21,057 |
||
|
2022 |
03/15/2022 |
184,500 |
182,325 |
20,055 |
0 |
20,055 |
||
| Property Building Permit History | |||||||||||
|---|---|---|---|---|---|---|---|---|---|---|---|
| Issued | Permit # | Provided by | Bldg # | Description | Est Construction Cost | Status | |||||
| No Building Permit records returned. | |||||||||||
| Click button on building number to access detailed information: | ||||||
|---|---|---|---|---|---|---|
| Bldg # | Vacant/Improved Land | Bldg Description | Year Built | SqFt | # Stories | |
|
1 |
Improved |
Ranch 1 Story |
1960 |
1,450 |
1 Stories |
|