|
|
|
| Larry Stein Oklahoma County Assessor (405) 713-1200 - Public Access System |
|
|
|
|
|
|
| Real Property Display - Screen Produced 3/28/2026 5:57:34 AM | ||||
|---|---|---|---|---|
| Account: R114641040 | Type: Residential | Location: |
2516 NW 58TH PL |
|
| Building Name/Occupant: |
|
OKLAHOMA CITY |
||
| Owner Name 1: | FARRELL MICHAEL CHAZ |
Parcel PIN#: |
2628-11-464-1040 |
|
| Owner Name 2: | ASHMORE SARAH | 1/4 section #: |
2628 |
|
| Owner Name 3: | ASHMORE CINDY LEE | Parent Acct: |
|
|
| Billing Address: | 2516 NW 58TH PL | Tax District: |
|
|
| City, State, Zip | OKLAHOMA CITY, OK 73112-7105 | School System: |
Oklahoma City #89 |
|
|
Country: (If noted) |
Land Size: |
0.1894 Acres |
||
|
Land Value: 61,875 |
|
|||
|
Sect 7-T12N-R3W Qtr NW |
ORTNERS FAIRDALE 1ST
Block
001
Lot
000
|
|||
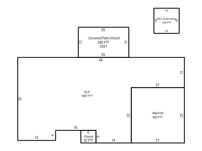
| Full Legal Description: ORTNERS FAIRDALE 1ST 001 000 LOT 5 PLUS N45FT LOT 34 BLK 16 MILAMS NW HIGHLANDS ADDN |
| Photo & Sketch (if available) | Comp Sales (ordered by relevancy) |
|
||||||||||||||||||
|
||||||||||||||||||||
| Value History (*The County Treasurer 405-713-1300 posts & collects actual tax amounts. Contact information HERE) | |||||||||||||
|---|---|---|---|---|---|---|---|---|---|---|---|---|---|
| Year | Market Value | Taxable Mkt Value | Gross Assessed | Exemption | Net Assessed | Millage | Est. Tax | Tax Savings | |||||
|
2026 |
425,000 |
351,157 |
38,627 |
1,000 |
37,627 |
122.90 |
$4,624 |
$1,121 |
|||||
|
2025 |
417,500 |
351,157 |
38,627 |
1,000 |
37,627 |
122.90 |
$4,624 |
$1,020 |
|||||
|
2024 |
391,000 |
340,930 |
37,502 |
1,000 |
36,502 |
123.89 |
$4,522 |
$806 |
|||||
|
2023 |
331,000 |
331,000 |
36,410 |
0 |
36,410 |
122.82 |
$4,472 |
$0 |
|||||
|
2022 |
356,000 |
317,625 |
34,938 |
0 |
34,938 |
117.63 |
$4,110 |
$497 |
|||||
| Property Account Status/Adjustments/Exemptions | ||
|---|---|---|
| Account # | Exemption Description | Amount |
|
R114641040 |
Freeze Senior Valuation |
0 |
|
R114641040 |
3% Cap Homestead |
0 |
|
R114641040 |
Homestead |
1,000 |
| Property Deed Transaction History (Recorded in the County Clerk's Office) | ||||||||||
|---|---|---|---|---|---|---|---|---|---|---|
| Date | Type | Book | Page | Price | Grantor | Grantee | ||||
|
2/17/2023 |
|
Hmstd Off & |
$0 |
FARRELL MICHAEL CHAZ |
FARRELL MICHAEL CHAZ |
|||||
|
11/28/2022 |
|
Deeds |
$330,000 |
TOMPKINS MATTHEW W |
FARRELL MICHAEL CHAZ |
|||||
|
4/25/2019 |
|
Deeds |
$287,000 |
GILLOCK GEOFFREY C |
TOMPKINS MATTHEW W |
|||||
|
12/20/2016 |
|
Deeds |
$223,500 |
HENDRICKSON JACOB S |
GILLOCK GEOFFREY C |
|||||
|
11/28/2012 |
|
Deeds |
$175,000 |
NORRIS TY L |
HENDRICKSON JACOB S |
|||||
| Last Mailed Notice of Value (N.O.V.) Information/History | ||||||||
|---|---|---|---|---|---|---|---|---|
| Year | Date | Market Value | Taxable Market Value | Gross Assessed | Exemption | Net Assessed | ||
|
2026 |
02/23/2026 |
425,000 |
351,157 |
38,627 |
1,000 |
37,627 |
||
|
2025 |
02/14/2025 |
417,500 |
351,157 |
38,627 |
1,000 |
37,627 |
||
|
2024 |
02/13/2024 |
391,000 |
340,930 |
37,502 |
1,000 |
36,502 |
||
|
2023 |
02/14/2023 |
331,000 |
331,000 |
36,410 |
0 |
36,410 |
||
|
2022 |
03/15/2022 |
356,000 |
317,625 |
34,938 |
0 |
34,938 |
||
| Property Building Permit History | |||||||||||
|---|---|---|---|---|---|---|---|---|---|---|---|
| Issued | Permit # | Provided by | Bldg # | Description | Est Construction Cost | Status | |||||
| No Building Permit records returned. | |||||||||||
| Click button on building number to access detailed information: | ||||||
|---|---|---|---|---|---|---|
| Bldg # | Vacant/Improved Land | Bldg Description | Year Built | SqFt | # Stories | |
|
1 |
Improved |
Ranch 1 Story |
1963 |
1,687 |
1 Stories |
|