|
|
|
| Larry Stein Oklahoma County Assessor (405) 713-1200 - Public Access System |
|
|
|
|
|
|
| Real Property Display - Screen Produced 3/26/2026 3:20:33 PM | ||||
|---|---|---|---|---|
| Account: R114651290 | Type: Residential | Location: |
2517 NW 59TH ST |
|
| Building Name/Occupant: |
|
OKLAHOMA CITY |
||
| Owner Name 1: | BULLOCK EVIE |
Parcel PIN#: |
2628-11-465-1290 |
|
| Owner Name 2: | 1/4 section #: |
2628 |
||
| Owner Name 3: | Parent Acct: |
|
||
| Billing Address: | 2517 NW 59TH ST | Tax District: |
|
|
| City, State, Zip | OKLAHOMA CITY, OK 73112-7108 | School System: |
Oklahoma City #89 |
|
|
Country: (If noted) |
Land Size: |
0.1894 Acres |
||
|
Land Value: 61,875 |
|
|||
|
Sect 7-T12N-R3W Qtr NW |
ORTNERS FAIRDALE 2ND
Block
003
Lot
030
|
|||
| Full Legal Description: ORTNERS FAIRDALE 2ND 003 030 |
| Photo & Sketch (if available) | Comp Sales (ordered by relevancy) |
|
||||||||||||||||||
|
||||||||||||||||||||
| Value History (*The County Treasurer 405-713-1300 posts & collects actual tax amounts. Contact information HERE) | |||||||||||||
|---|---|---|---|---|---|---|---|---|---|---|---|---|---|
| Year | Market Value | Taxable Mkt Value | Gross Assessed | Exemption | Net Assessed | Millage | Est. Tax | Tax Savings | |||||
|
2026 |
305,500 |
305,500 |
33,605 |
0 |
33,605 |
122.90 |
$4,130 |
$0 |
|||||
|
2025 |
299,500 |
299,500 |
32,945 |
0 |
32,945 |
122.90 |
$4,049 |
$0 |
|||||
|
2024 |
279,500 |
226,304 |
24,893 |
1,000 |
23,893 |
123.89 |
$2,960 |
$849 |
|||||
|
2023 |
266,000 |
219,713 |
24,167 |
1,000 |
23,167 |
122.82 |
$2,846 |
$748 |
|||||
|
2022 |
243,000 |
213,314 |
23,463 |
1,000 |
22,463 |
117.63 |
$2,643 |
$502 |
|||||
| Property Account Status/Adjustments/Exemptions | ||
|---|---|---|
| Account # | Exemption Description | Amount |
|
R114651290 |
5% Capped Account |
0 |
| Property Deed Transaction History (Recorded in the County Clerk's Office) | ||||||||||
|---|---|---|---|---|---|---|---|---|---|---|
| Date | Type | Book | Page | Price | Grantor | Grantee | ||||
|
10/15/2024 |
|
Deeds |
$305,000 |
RUFFIN MARY R |
BULLOCK EVIE |
|||||
|
4/12/2017 |
|
Deeds |
$0 |
RUFFIN MARY R RUFFIN OLGA M |
RUFFIN MARY R |
|||||
|
7/2/1997 |
|
Historical |
$94,500 |
JOHNSTON MICHAEL R |
RUFFIN MARY R |
|||||
|
1/28/1993 |
|
Historical |
$76,500 |
PEACOCK FRANCES L |
JOHNSTON MICHAEL R |
|||||
|
8/1/1990 |
|
Historical |
$0 |
PEACOCK THOS L & F L |
PEACOCK FRANCES L |
|||||
| Last Mailed Notice of Value (N.O.V.) Information/History | ||||||||
|---|---|---|---|---|---|---|---|---|
| Year | Date | Market Value | Taxable Market Value | Gross Assessed | Exemption | Net Assessed | ||
|
2026 |
02/23/2026 |
305,500 |
305,500 |
33,605 |
0 |
33,605 |
||
|
2025 |
02/14/2025 |
299,500 |
299,500 |
32,945 |
0 |
32,945 |
||
|
2024 |
02/13/2024 |
279,500 |
226,304 |
24,893 |
1,000 |
23,893 |
||
|
2023 |
02/14/2023 |
266,000 |
219,713 |
24,167 |
1,000 |
23,167 |
||
|
2022 |
03/15/2022 |
243,000 |
213,314 |
23,463 |
1,000 |
22,463 |
||
| Property Building Permit History | |||||||||||
|---|---|---|---|---|---|---|---|---|---|---|---|
| Issued | Permit # | Provided by | Bldg # | Description | Est Construction Cost | Status | |||||
| No Building Permit records returned. | |||||||||||
| Click button on building number to access detailed information: | ||||||
|---|---|---|---|---|---|---|
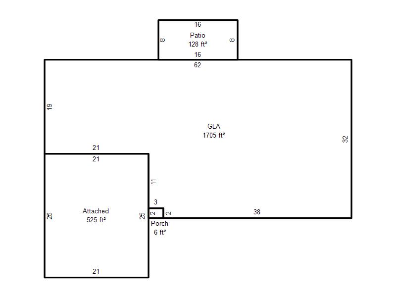
| Bldg # | Vacant/Improved Land | Bldg Description | Year Built | SqFt | # Stories | |
|
1 |
Improved |
Ranch 1 Story |
1964 |
1,705 |
1 Stories |
|