|
|
|
| Larry Stein Oklahoma County Assessor (405) 713-1200 - Public Access System |
|
|
|
|
|
|
| Real Property Display - Screen Produced 3/24/2026 10:33:14 AM | ||||
|---|---|---|---|---|
| Account: R114670120 | Type: Residential | Location: |
2708 NW 58TH PL |
|
| Building Name/Occupant: |
|
OKLAHOMA CITY |
||
| Owner Name 1: | SMITH JIMMIE D & PATRICIA S |
Parcel PIN#: |
2628-11-467-0120 |
|
| Owner Name 2: | 1/4 section #: |
2628 |
||
| Owner Name 3: | Parent Acct: |
|
||
| Billing Address: | 2708 NW 58TH PL | Tax District: |
|
|
| City, State, Zip | OKLAHOMA CITY, OK 73112-7004 | School System: |
Oklahoma City #89 |
|
|
Country: (If noted) |
Land Size: |
0.1894 Acres |
||
|
Land Value: 61,875 |
|
|||
|
Sect 7-T12N-R3W Qtr NW |
ORTNERS FAIRDALE ADDN 4TH
Block
007
Lot
003
|
|||
| Full Legal Description: ORTNERS FAIRDALE ADDN 4TH 007 003 |
| Photo & Sketch (if available) | Comp Sales (ordered by relevancy) |
|
||||||||||||||||||
|
||||||||||||||||||||
| Value History (*The County Treasurer 405-713-1300 posts & collects actual tax amounts. Contact information HERE) | |||||||||||||
|---|---|---|---|---|---|---|---|---|---|---|---|---|---|
| Year | Market Value | Taxable Mkt Value | Gross Assessed | Exemption | Net Assessed | Millage | Est. Tax | Tax Savings | |||||
|
2025 |
410,500 |
335,602 |
36,916 |
1,000 |
35,916 |
122.90 |
$4,414 |
$1,135 |
|||||
|
2024 |
386,000 |
325,828 |
35,840 |
1,000 |
34,840 |
123.89 |
$4,316 |
$944 |
|||||
|
2023 |
358,500 |
316,338 |
34,796 |
1,000 |
33,796 |
122.82 |
$4,151 |
$692 |
|||||
|
2022 |
331,500 |
307,125 |
33,783 |
0 |
33,783 |
117.63 |
$3,974 |
$315 |
|||||
|
2021 |
292,500 |
292,500 |
32,175 |
0 |
32,175 |
117.70 |
$3,787 |
$0 |
|||||
| Property Account Status/Adjustments/Exemptions | ||
|---|---|---|
| Account # | Exemption Description | Amount |
|
R114670120 |
Homestead |
1,000 |
|
R114670120 |
3% Cap Homestead |
0 |
| Property Deed Transaction History (Recorded in the County Clerk's Office) | |||||||
|---|---|---|---|---|---|---|---|
| Date | Type | Book | Page | Price | Grantor | Grantee | |
|
4/26/2005 |
|
Deeds |
$175,000 |
MARCHANT ROBERT G JR MARCHANT THOMAS D |
SMITH JIMMIE D & PATRICIA S |
||
|
4/26/2005 |
|
Deeds |
$0 |
MARCHANT ROBERT G JR & JUDY K |
SMITH JIMMIE D & PATRICIA S |
||
|
2/3/1999 |
|
Historical |
$0 |
MARCHANT BETTY JANE |
MARCHANT ROBERT G JR |
||
|
2/1/1999 |
|
Historical |
$0 |
MARCHANT ROBERT G & B J |
MARCHANT BETTY JANE |
||
|
11/11/1911 |
|
Historical |
$0 |
|
MARCHANT ROBERT G & B J |
||
| Last Mailed Notice of Value (N.O.V.) Information/History | ||||||||
|---|---|---|---|---|---|---|---|---|
| Year | Date | Market Value | Taxable Market Value | Gross Assessed | Exemption | Net Assessed | ||
|
2026 |
02/23/2026 |
417,500 |
345,670 |
38,023 |
1,000 |
37,023 |
||
|
2025 |
02/14/2025 |
410,500 |
335,602 |
36,916 |
1,000 |
35,916 |
||
|
2024 |
02/13/2024 |
386,000 |
325,828 |
35,840 |
1,000 |
34,840 |
||
|
2023 |
02/14/2023 |
358,500 |
322,481 |
35,472 |
0 |
35,472 |
||
|
2022 |
03/15/2022 |
331,500 |
307,125 |
33,783 |
0 |
33,783 |
||
| Property Building Permit History | |||||||||||
|---|---|---|---|---|---|---|---|---|---|---|---|
| Issued | Permit # | Provided by | Bldg # | Description | Est Construction Cost | Status | |||||
| No Building Permit records returned. | |||||||||||
| Click button on building number to access detailed information: | ||||||
|---|---|---|---|---|---|---|
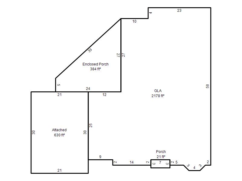
| Bldg # | Vacant/Improved Land | Bldg Description | Year Built | SqFt | # Stories | |
|
1 |
Improved |
Ranch 1 Story |
1973 |
2,178 |
1 Stories |
|