|
|
|
| Larry Stein Oklahoma County Assessor (405) 713-1200 - Public Access System |
|
|
|
|
|
|
| Real Property Display - Screen Produced 3/24/2026 10:36:19 AM | ||||
|---|---|---|---|---|
| Account: R114670420 | Type: Residential | Location: |
2704 NW 60TH ST |
|
| Building Name/Occupant: |
|
OKLAHOMA CITY |
||
| Owner Name 1: | COE LUKE JOSEPH TRS |
Parcel PIN#: |
2628-11-467-0420 |
|
| Owner Name 2: | COE LUKE JOSEPH LIV TRUST | 1/4 section #: |
2628 |
|
| Owner Name 3: | Parent Acct: |
|
||
| Billing Address: | 2704 NW 60TH ST | Tax District: |
|
|
| City, State, Zip | OKLAHOMA CITY, OK 73112-7028 | School System: |
Oklahoma City #89 |
|
|
Country: (If noted) |
Land Size: |
0.2020 Acres |
||
|
Land Value: 83,160 |
|
|||
|
Sect 7-T12N-R3W Qtr NW |
ORTNERS FAIRDALE ADDN 4TH
Block
009
Lot
002
|
|||
| Full Legal Description: ORTNERS FAIRDALE ADDN 4TH 009 002 |
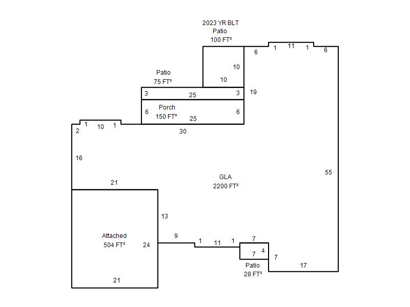
| Photo & Sketch (if available) | Comp Sales (ordered by relevancy) |
|
||||||||||||||||||
|
||||||||||||||||||||
| Value History (*The County Treasurer 405-713-1300 posts & collects actual tax amounts. Contact information HERE) | |||||||||||||
|---|---|---|---|---|---|---|---|---|---|---|---|---|---|
| Year | Market Value | Taxable Mkt Value | Gross Assessed | Exemption | Net Assessed | Millage | Est. Tax | Tax Savings | |||||
|
2025 |
391,500 |
308,628 |
33,948 |
0 |
33,948 |
122.90 |
$4,172 |
$1,120 |
|||||
|
2024 |
367,000 |
293,932 |
32,331 |
0 |
32,331 |
123.89 |
$4,006 |
$996 |
|||||
|
2023 |
345,500 |
279,936 |
30,792 |
0 |
30,792 |
122.82 |
$3,782 |
$886 |
|||||
|
2022 |
315,500 |
266,606 |
29,326 |
0 |
29,326 |
117.63 |
$3,450 |
$633 |
|||||
|
2021 |
281,500 |
253,911 |
27,930 |
0 |
27,930 |
117.70 |
$3,287 |
$357 |
|||||
| Property Account Status/Adjustments/Exemptions | ||
|---|---|---|
| Account # | Exemption Description | Amount |
|
R114670420 |
5% Capped Account |
0 |
| Property Deed Transaction History (Recorded in the County Clerk's Office) | |||||||
|---|---|---|---|---|---|---|---|
| Date | Type | Book | Page | Price | Grantor | Grantee | |
|
12/19/2013 |
|
Deeds |
$0 |
COE LUKE |
COE LUKE JOSEPH TRS |
||
|
2/6/2012 |
|
Deeds |
$170,000 |
TAYLOR LAVERNE F TRS TAYLOR LAVERNE F REV TRUST |
COE LUKE |
||
|
12/24/1997 |
|
Historical |
$0 |
TAYLOR LAVERNE F |
TAYLOR LAVERNE F TRS |
||
|
10/25/1988 |
|
Historical |
$0 |
TAYLOR GORDON E & LAVERNE F |
TAYLOR LAVERNE F |
||
|
11/11/1911 |
|
Historical |
$0 |
|
TAYLOR GORDON E & LAVERNE F |
||
| Last Mailed Notice of Value (N.O.V.) Information/History | ||||||||
|---|---|---|---|---|---|---|---|---|
| Year | Date | Market Value | Taxable Market Value | Gross Assessed | Exemption | Net Assessed | ||
|
2026 |
02/23/2026 |
400,000 |
324,059 |
35,646 |
0 |
35,646 |
||
|
2025 |
02/14/2025 |
391,500 |
308,628 |
33,948 |
0 |
33,948 |
||
|
2024 |
02/13/2024 |
367,000 |
293,932 |
32,331 |
0 |
32,331 |
||
|
2023 |
02/14/2023 |
345,500 |
279,936 |
30,792 |
0 |
30,792 |
||
|
2022 |
03/15/2022 |
315,500 |
266,606 |
29,326 |
0 |
29,326 |
||
| Property Building Permit History | |||||||||||
|---|---|---|---|---|---|---|---|---|---|---|---|
| Issued | Permit # | Provided by | Bldg # | Description | Est Construction Cost | Status | |||||
| No Building Permit records returned. | |||||||||||
| Click button on building number to access detailed information: | ||||||
|---|---|---|---|---|---|---|
| Bldg # | Vacant/Improved Land | Bldg Description | Year Built | SqFt | # Stories | |
|
1 |
Improved |
Ranch 1 Story |
1971 |
2,200 |
1 Stories |
|