|
|
|
| Larry Stein Oklahoma County Assessor (405) 713-1200 - Public Access System |
|
|
|
|
|
|
| Real Property Display - Screen Produced 3/24/2026 10:36:19 AM | ||||
|---|---|---|---|---|
| Account: R114670820 | Type: Residential | Location: |
6108 N ROSS AVE |
|
| Building Name/Occupant: |
|
OKLAHOMA CITY |
||
| Owner Name 1: | KELLER ENTERPRISES INC |
Parcel PIN#: |
2628-11-467-0820 |
|
| Owner Name 2: | 1/4 section #: |
2628 |
||
| Owner Name 3: | Parent Acct: |
|
||
| Billing Address: | 6108 N ROSS AVE | Tax District: |
|
|
| City, State, Zip | OKLAHOMA CITY, OK 73112-7022 | School System: |
Oklahoma City #89 |
|
|
Country: (If noted) |
Land Size: |
0.1760 Acres |
||
|
Land Value: 42,158 |
|
|||
|
Sect 7-T12N-R3W Qtr NW |
ORTNERS FAIRDALE ADDN 4TH
Block
010
Lot
027
|
|||
| Full Legal Description: ORTNERS FAIRDALE ADDN 4TH 010 027 |
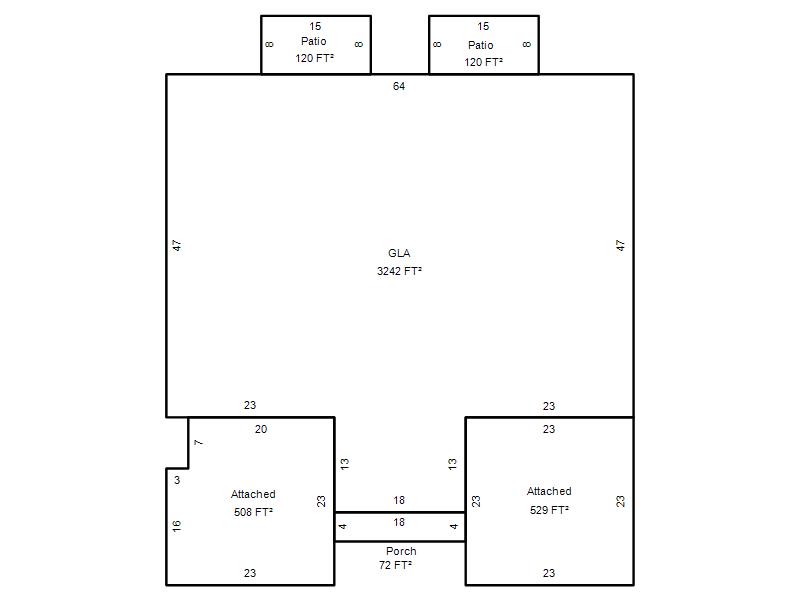
| Photo & Sketch (if available) | Comp Sales (ordered by relevancy) |
|
||||||||||||||||||
|
||||||||||||||||||||
| Value History (*The County Treasurer 405-713-1300 posts & collects actual tax amounts. Contact information HERE) | |||||||||||||
|---|---|---|---|---|---|---|---|---|---|---|---|---|---|
| Year | Market Value | Taxable Mkt Value | Gross Assessed | Exemption | Net Assessed | Millage | Est. Tax | Tax Savings | |||||
|
2025 |
348,500 |
298,009 |
32,780 |
0 |
32,780 |
122.90 |
$4,029 |
$683 |
|||||
|
2024 |
339,500 |
283,819 |
31,219 |
0 |
31,219 |
123.89 |
$3,868 |
$759 |
|||||
|
2023 |
338,500 |
270,304 |
29,732 |
0 |
29,732 |
122.82 |
$3,652 |
$921 |
|||||
|
2022 |
266,500 |
257,433 |
28,317 |
0 |
28,317 |
117.63 |
$3,331 |
$117 |
|||||
|
2021 |
254,000 |
245,175 |
26,969 |
0 |
26,969 |
117.70 |
$3,174 |
$114 |
|||||
| Property Account Status/Adjustments/Exemptions | ||
|---|---|---|
| Account # | Exemption Description | Amount |
|
R114670820 |
5% Capped Account |
0 |
| Property Deed Transaction History (Recorded in the County Clerk's Office) | ||||||||||
|---|---|---|---|---|---|---|---|---|---|---|
| Date | Type | Book | Page | Price | Grantor | Grantee | ||||
|
3/9/2001 |
|
Other |
$0 |
KELLER WILLIAM S |
KELLER ENTERPRISES INC |
|||||
|
2/28/2001 |
|
Other |
$0 |
KELLER ENTERPRISES INC |
KELLER WILLIAM S |
|||||
|
1/19/2001 |
|
Deeds |
$160,000 |
MARTIN JANITH S |
KELLER ENTERPRISES INC |
|||||
|
8/22/2000 |
|
Deeds |
$0 |
SPENCER JUDY ANN ETAL MARTIN JANITH SUE |
MARTIN JANITH S |
|||||
|
5/30/2000 |
|
Hmstd Off & |
$0 |
GRAHAM EVERETT |
SPENCER JUDY ANN ETAL MARTIN JANITH SUE |
|||||
| Last Mailed Notice of Value (N.O.V.) Information/History | ||||||||
|---|---|---|---|---|---|---|---|---|
| Year | Date | Market Value | Taxable Market Value | Gross Assessed | Exemption | Net Assessed | ||
|
2026 |
02/23/2026 |
351,500 |
312,909 |
34,419 |
0 |
34,419 |
||
|
2025 |
02/14/2025 |
348,500 |
298,009 |
32,780 |
0 |
32,780 |
||
|
2024 |
02/13/2024 |
339,500 |
283,819 |
31,219 |
0 |
31,219 |
||
|
2023 |
02/14/2023 |
338,500 |
270,304 |
29,732 |
0 |
29,732 |
||
|
2022 |
03/15/2022 |
266,500 |
257,433 |
28,317 |
0 |
28,317 |
||
| Property Building Permit History | |||||||||||
|---|---|---|---|---|---|---|---|---|---|---|---|
| Issued | Permit # | Provided by | Bldg # | Description | Est Construction Cost | Status | |||||
| No Building Permit records returned. | |||||||||||
| Click button on building number to access detailed information: | ||||||
|---|---|---|---|---|---|---|
| Bldg # | Vacant/Improved Land | Bldg Description | Year Built | SqFt | # Stories | |
|
1 |
Improved |
Duplex One Story |
1970 |
3,242 |
1 Stories |
|