|
|
|
| Larry Stein Oklahoma County Assessor (405) 713-1200 - Public Access System |
|
|
|
|
|
|
| Real Property Display - Screen Produced 4/2/2026 2:22:11 PM | ||||
|---|---|---|---|---|
| Account: R085401150 | Type: Residential | Location: |
1516 DUFFNER DR |
|
| Building Name/Occupant: |
|
OKLAHOMA CITY |
||
| Owner Name 1: | 1516 & 1518 DUFFNER DRIVE LLC |
Parcel PIN#: |
2632-08-540-1150 |
|
| Owner Name 2: | 1/4 section #: |
2632 |
||
| Owner Name 3: | Parent Acct: |
|
||
| Billing Address: | 4200 W MEMORIAL RD, Unit 805 | Tax District: |
|
|
| City, State, Zip | OKLAHOMA CITY, OK 73120-8359 | School System: |
Oklahoma City #89 |
|
|
Country: (If noted) |
Land Size: |
0.3352 Acres |
||
|
Land Value: 100,747 |
|
|||
|
Sect 8-T12N-R3W Qtr NW |
NICHOLS HILLS GLENBROOK SEC 6
Block
013
Lot
000
|
|||
| Full Legal Description: NICHOLS HILLS GLENBROOK SEC 6 013 000 LOT 12 EX E3FT |
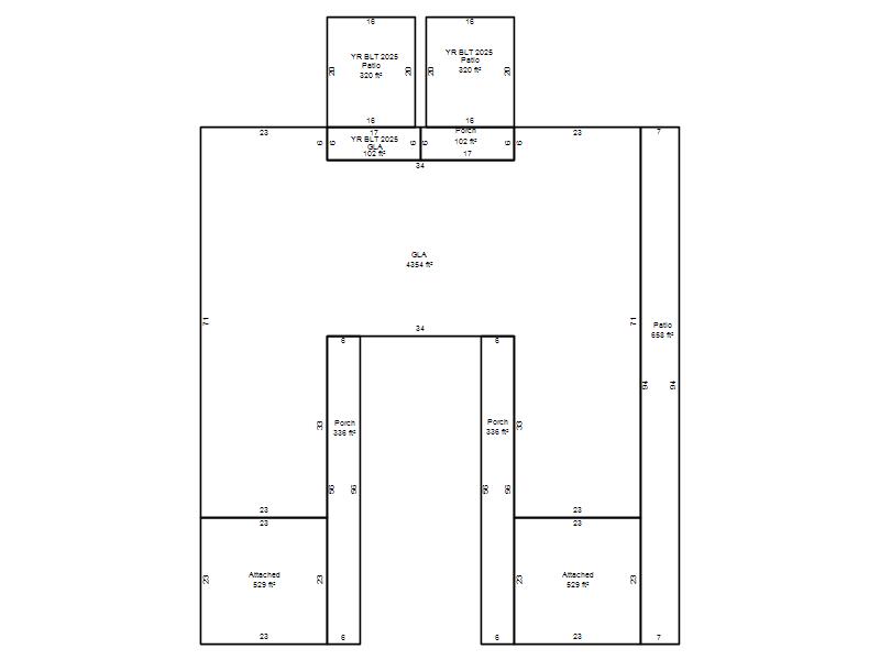
| Photo & Sketch (if available) | Comp Sales (ordered by relevancy) |
|
||||||||||||||||||
|
||||||||||||||||||||
| Value History (*The County Treasurer 405-713-1300 posts & collects actual tax amounts. Contact information HERE) | |||||||||||||
|---|---|---|---|---|---|---|---|---|---|---|---|---|---|
| Year | Market Value | Taxable Mkt Value | Gross Assessed | Exemption | Net Assessed | Millage | Est. Tax | Tax Savings | |||||
|
2026 |
822,000 |
822,000 |
90,420 |
0 |
90,420 |
122.90 |
$11,113 |
$0 |
|||||
|
2025 |
614,500 |
614,500 |
67,595 |
0 |
67,595 |
122.90 |
$8,307 |
$0 |
|||||
|
2024 |
567,500 |
473,523 |
52,087 |
0 |
52,087 |
123.89 |
$6,453 |
$1,281 |
|||||
|
2023 |
510,500 |
450,975 |
49,607 |
0 |
49,607 |
122.82 |
$6,093 |
$804 |
|||||
|
2022 |
429,500 |
429,500 |
47,245 |
0 |
47,245 |
117.63 |
$5,557 |
$0 |
|||||
| Property Account Status/Adjustments/Exemptions | ||
|---|---|---|
| Account # | Exemption Description | Amount |
|
R085401150 |
5% Capped Account |
0 |
| Property Deed Transaction History (Recorded in the County Clerk's Office) | |||||||
|---|---|---|---|---|---|---|---|
| Date | Type | Book | Page | Price | Grantor | Grantee | |
|
6/18/2024 |
|
Hmstd Off & |
$0 |
ALLEE ROBERT L |
ALLEE ROBERT |
||
|
6/18/2024 |
|
Deeds |
$650,000 |
ALLEE ROBERT |
1516 & 1518 DUFFNER DRIVE LLC |
||
|
8/31/1994 |
|
Historical |
$0 |
ALLEE ROBERT L |
ALLEE ROBERT L |
||
|
7/10/1991 |
|
Historical |
$0 |
DICKERSON FRANCES B |
ALLEE ROBERT L |
||
|
1/1/1975 |
|
Historical |
$0 |
|
DICKERSON FRANCES B |
||
| Last Mailed Notice of Value (N.O.V.) Information/History | ||||||||
|---|---|---|---|---|---|---|---|---|
| Year | Date | Market Value | Taxable Market Value | Gross Assessed | Exemption | Net Assessed | ||
|
2026 |
03/30/2026 |
822,000 |
822,000 |
90,420 |
0 |
90,420 |
||
|
2025 |
02/14/2025 |
614,500 |
614,500 |
67,595 |
0 |
67,595 |
||
|
2024 |
02/13/2024 |
567,500 |
473,523 |
52,087 |
0 |
52,087 |
||
|
2023 |
02/14/2023 |
510,500 |
450,975 |
49,607 |
0 |
49,607 |
||
|
2022 |
03/15/2022 |
429,500 |
429,500 |
47,245 |
0 |
47,245 |
||
| Property Building Permit History | ||||||
|---|---|---|---|---|---|---|
| Issued | Permit # | Provided by | Bldg # | Description | Est Construction Cost | Status |
|
1/7/2025 |
BLDR-2024-06715 |
|
1 |
Remodeled |
200,000 |
Inactive |
| Click button on building number to access detailed information: | ||||||
|---|---|---|---|---|---|---|
| Bldg # | Vacant/Improved Land | Bldg Description | Year Built | SqFt | # Stories | |
|
1 |
Improved |
Duplex One Story |
1971 |
4,456 |
1 Stories |
|