|
|
|
| Larry Stein Oklahoma County Assessor (405) 713-1200 - Public Access System |
|
|
|
|
|
|
| Real Property Display - Screen Produced 4/4/2026 8:59:10 PM | ||||
|---|---|---|---|---|
| Account: R085041615 | Type: Residential | Location: |
309 NE 60TH ST |
|
| Building Name/Occupant: |
|
OKLAHOMA CITY |
||
| Owner Name 1: | CALDWELL QUENTIN SR |
Parcel PIN#: |
2640-08-504-1615 |
|
| Owner Name 2: | 1/4 section #: |
2640 |
||
| Owner Name 3: | Parent Acct: |
|
||
| Billing Address: | 309 NE 60TH ST | Tax District: |
|
|
| City, State, Zip | OKLAHOMA CITY, OK 73105 | School System: |
Oklahoma City #89 |
|
|
Country: (If noted) |
Land Size: |
0.2388 Acres |
||
|
Land Value: 36,400 |
|
|||
|
Sect 10-T12N-R3W Qtr NW |
WILDEWOOD HILLS
Block
007
Lot
012
|
|||
| Full Legal Description: WILDEWOOD HILLS 007 012 |
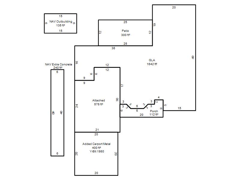
| Photo & Sketch (if available) | Comp Sales (ordered by relevancy) |
|
||||||||||||||||||
|
||||||||||||||||||||
| Value History (*The County Treasurer 405-713-1300 posts & collects actual tax amounts. Contact information HERE) | |||||||||||||
|---|---|---|---|---|---|---|---|---|---|---|---|---|---|
| Year | Market Value | Taxable Mkt Value | Gross Assessed | Exemption | Net Assessed | Millage | Est. Tax | Tax Savings | |||||
|
2026 |
173,000 |
166,698 |
18,336 |
0 |
18,336 |
122.90 |
$2,254 |
$85 |
|||||
|
2025 |
165,000 |
158,760 |
17,463 |
0 |
17,463 |
122.90 |
$2,146 |
$84 |
|||||
|
2024 |
158,000 |
151,200 |
16,632 |
0 |
16,632 |
123.89 |
$2,061 |
$93 |
|||||
|
2023 |
144,000 |
144,000 |
15,840 |
0 |
15,840 |
122.82 |
$1,945 |
$0 |
|||||
|
2022 |
138,500 |
138,500 |
15,235 |
0 |
15,235 |
117.63 |
$1,792 |
$0 |
|||||
| Property Account Status/Adjustments/Exemptions | ||
|---|---|---|
| Account # | Exemption Description | Amount |
|
R085041615 |
5% Capped Account |
0 |
| Property Deed Transaction History (Recorded in the County Clerk's Office) | |||||||
|---|---|---|---|---|---|---|---|
| Date | Type | Book | Page | Price | Grantor | Grantee | |
|
6/7/2021 |
|
Deeds |
$140,000 |
DAWSON DEXTER W |
CALDWELL QUENTIN SR |
||
|
10/2/2017 |
|
Deeds |
$127,500 |
CHAMBERLAIN WILLIAM B SR & SHEREE R |
DAWSON DEXTER W |
||
|
12/19/2008 |
|
Deeds |
$87,000 |
NORMAN THOMAS C/O DONALD W DAVIS ATTY |
CHAMBERLAIN WILLIAM B SR & SHEREE R |
||
|
4/18/1996 |
|
Historical |
$0 |
NORMAN THOMAS & BLANCH L |
NORMAN THOMAS |
||
|
11/11/1911 |
|
Historical |
$0 |
|
NORMAN THOMAS & BLANCH L |
||
| Last Mailed Notice of Value (N.O.V.) Information/History | ||||||||
|---|---|---|---|---|---|---|---|---|
| Year | Date | Market Value | Taxable Market Value | Gross Assessed | Exemption | Net Assessed | ||
|
2026 |
02/23/2026 |
173,000 |
166,698 |
18,336 |
0 |
18,336 |
||
|
2025 |
02/14/2025 |
165,000 |
158,760 |
17,463 |
0 |
17,463 |
||
|
2024 |
02/13/2024 |
158,000 |
151,200 |
16,632 |
0 |
16,632 |
||
|
2023 |
02/14/2023 |
144,000 |
144,000 |
15,840 |
0 |
15,840 |
||
|
2022 |
03/15/2022 |
138,500 |
138,500 |
15,235 |
0 |
15,235 |
||
| Property Building Permit History | |||||||||||
|---|---|---|---|---|---|---|---|---|---|---|---|
| Issued | Permit # | Provided by | Bldg # | Description | Est Construction Cost | Status | |||||
| No Building Permit records returned. | |||||||||||
| Click button on building number to access detailed information: | ||||||
|---|---|---|---|---|---|---|
| Bldg # | Vacant/Improved Land | Bldg Description | Year Built | SqFt | # Stories | |
|
1 |
Improved |
Ranch 1 Story |
1959 |
1,642 |
1 Stories |
|