|
|
|
| Larry Stein Oklahoma County Assessor (405) 713-1200 - Public Access System |
|
|
|
|
|
|
| Real Property Display - Screen Produced 3/3/2026 1:20:07 PM | ||||
|---|---|---|---|---|
| Account: R116541475 | Type: Residential | Location: |
1516 NE 46TH ST |
|
| Building Name/Occupant: |
|
OKLAHOMA CITY |
||
| Owner Name 1: | 2M2S LLC |
Parcel PIN#: |
2653-11-654-1475 |
|
| Owner Name 2: | 1/4 section #: |
2653 |
||
| Owner Name 3: | Parent Acct: |
|
||
| Billing Address: | 911 N SHARTEL AVE | Tax District: |
|
|
| City, State, Zip | OKLAHOMA CITY, OK 73102 | School System: |
Oklahoma City #89 |
|
|
Country: (If noted) |
Land Size: |
0.1460 Acres |
||
|
Land Value: 15,582 |
|
|||
|
Sect 14-T12N-R3W Qtr NE |
PARK ESTATES 7TH ADD
Block
004
Lot
005
|
|||
| Full Legal Description: PARK ESTATES 7TH ADD 004 005 |
| Photo & Sketch (if available) | Comp Sales (ordered by relevancy) |
|
||||||||||||||||||
|
||||||||||||||||||||
| Value History (*The County Treasurer 405-713-1300 posts & collects actual tax amounts. Contact information HERE) | |||||||||||||
|---|---|---|---|---|---|---|---|---|---|---|---|---|---|
| Year | Market Value | Taxable Mkt Value | Gross Assessed | Exemption | Net Assessed | Millage | Est. Tax | Tax Savings | |||||
|
2025 |
122,500 |
122,500 |
13,475 |
0 |
13,475 |
122.90 |
$1,656 |
$0 |
|||||
|
2024 |
121,500 |
120,225 |
13,224 |
0 |
13,224 |
123.89 |
$1,638 |
$17 |
|||||
|
2023 |
114,500 |
114,500 |
12,595 |
0 |
12,595 |
122.82 |
$1,547 |
$0 |
|||||
|
2022 |
123,500 |
123,500 |
13,585 |
0 |
13,585 |
117.63 |
$1,598 |
$0 |
|||||
|
2021 |
53,500 |
53,500 |
5,885 |
0 |
5,885 |
117.70 |
$693 |
$0 |
|||||
| Property Account Status/Adjustments/Exemptions | ||
|---|---|---|
| Account # | Exemption Description | Amount |
|
R116541475 |
5% Capped Account |
0 |
| Property Deed Transaction History (Recorded in the County Clerk's Office) | ||||||||||
|---|---|---|---|---|---|---|---|---|---|---|
| Date | Type | Book | Page | Price | Grantor | Grantee | ||||
|
1/12/2024 |
|
Deeds |
$130,000 |
JER 2911 HOLDINGS LLC |
2M2S LLC |
|||||
|
3/8/2021 |
|
Deeds |
$125,000 |
REI NATION LLC |
JER 2911 HOLDINGS LLC |
|||||
|
12/31/2020 |
|
Deeds |
$56,000 |
EDWARDS TIMOTHY J SR & ALMA J RHONE |
REI NATION LLC |
|||||
|
10/12/2005 |
|
Deeds |
$36,000 |
ADLER BERNARD F |
EDWARDS TIMOTHY J SR & ALMA J RHONE |
|||||
|
4/2/2004 |
|
Deeds |
$25,500 |
IMPAC FUNDING CORP DBA NOVELLE FINANCIAL SERIVCES |
ADLER BERNARD F |
|||||
| Last Mailed Notice of Value (N.O.V.) Information/History | ||||||||
|---|---|---|---|---|---|---|---|---|
| Year | Date | Market Value | Taxable Market Value | Gross Assessed | Exemption | Net Assessed | ||
|
2026 |
02/23/2026 |
129,000 |
128,625 |
14,148 |
0 |
14,148 |
||
|
2025 |
02/14/2025 |
122,500 |
122,500 |
13,475 |
0 |
13,475 |
||
|
2024 |
02/13/2024 |
121,500 |
120,225 |
13,224 |
0 |
13,224 |
||
|
2022 |
03/15/2022 |
123,500 |
123,500 |
13,585 |
0 |
13,585 |
||
|
2021 |
03/19/2021 |
53,500 |
53,500 |
5,885 |
0 |
5,885 |
||
| Property Building Permit History | |||||||||||
|---|---|---|---|---|---|---|---|---|---|---|---|
| Issued | Permit # | Provided by | Bldg # | Description | Est Construction Cost | Status | |||||
| No Building Permit records returned. | |||||||||||
| Click button on building number to access detailed information: | ||||||
|---|---|---|---|---|---|---|
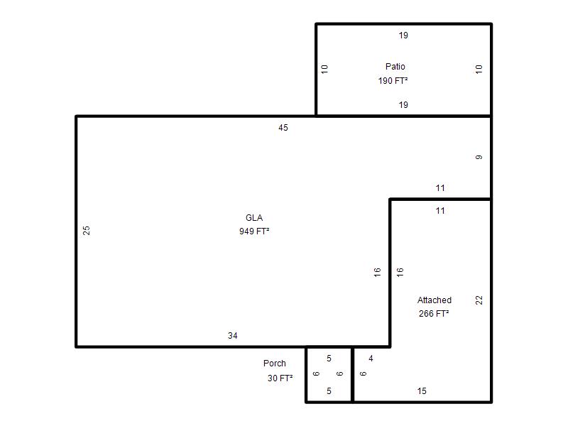
| Bldg # | Vacant/Improved Land | Bldg Description | Year Built | SqFt | # Stories | |
|
1 |
Improved |
Ranch 1 Story |
1951 |
949 |
1 Stories |
|