|
|
|
| Larry Stein Oklahoma County Assessor (405) 713-1200 - Public Access System |
|
|
|
|
|
|
| Real Property Display - Screen Produced 3/4/2026 5:00:00 AM | ||||
|---|---|---|---|---|
| Account: R086156600 | Type: Residential | Location: |
1408 NE 38TH ST |
|
| Building Name/Occupant: |
|
OKLAHOMA CITY |
||
| Owner Name 1: | OMEGA INVESTMENTS LLC |
Parcel PIN#: |
2655-08-615-6600 |
|
| Owner Name 2: | 1/4 section #: |
2655 |
||
| Owner Name 3: | Parent Acct: |
|
||
| Billing Address: | 20 NW 13TH ST, Unit 200 | Tax District: |
|
|
| City, State, Zip | OKLAHOMA CITY, OK 73103 | School System: |
Oklahoma City #89 |
|
|
Country: (If noted) |
Land Size: |
0.1616 Acres |
||
|
Land Value: 14,080 |
|
|||
|
Sect 14-T12N-R3W Qtr SW |
CUTLERS ADDITION
Block
002
Lot
000
|
|||
| Full Legal Description: CUTLERS ADDITION 002 000 LOTS 7 & 8 & E5FT OF LOT 9 |
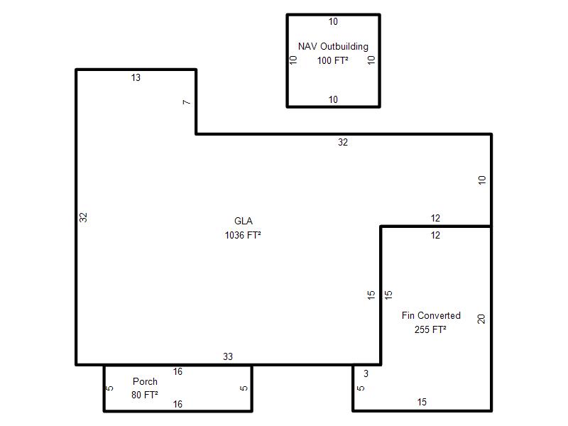
| Photo & Sketch (if available) | Comp Sales (ordered by relevancy) |
|
||||||||||||||||||
|
||||||||||||||||||||
| Value History (*The County Treasurer 405-713-1300 posts & collects actual tax amounts. Contact information HERE) | |||||||||||||
|---|---|---|---|---|---|---|---|---|---|---|---|---|---|
| Year | Market Value | Taxable Mkt Value | Gross Assessed | Exemption | Net Assessed | Millage | Est. Tax | Tax Savings | |||||
|
2025 |
80,000 |
64,420 |
7,085 |
0 |
7,085 |
122.90 |
$871 |
$211 |
|||||
|
2024 |
69,000 |
61,353 |
6,748 |
0 |
6,748 |
123.89 |
$836 |
$104 |
|||||
|
2023 |
77,000 |
58,432 |
6,427 |
0 |
6,427 |
122.82 |
$789 |
$251 |
|||||
|
2022 |
56,000 |
55,650 |
6,121 |
0 |
6,121 |
117.63 |
$720 |
$5 |
|||||
|
2021 |
53,000 |
53,000 |
5,830 |
0 |
5,830 |
117.70 |
$686 |
$0 |
|||||
| Property Account Status/Adjustments/Exemptions | ||
|---|---|---|
| Account # | Exemption Description | Amount |
|
R086156600 |
5% Capped Account |
0 |
| Property Deed Transaction History (Recorded in the County Clerk's Office) | |||||||
|---|---|---|---|---|---|---|---|
| Date | Type | Book | Page | Price | Grantor | Grantee | |
|
9/21/2020 |
|
Deeds |
$24,000 |
SMITHERS WILLIAM E |
OMEGA INVESTMENTS LLC |
||
|
10/1/1999 |
|
Hmstd Off & |
$0 |
SMITHERS ALBERT SMITHERS WILLIAM |
SMITHERS WILLIAM E |
||
|
8/26/1999 |
|
Deeds |
$0 |
SMITHERS ALBERT B & IRENE C/O CASANDRA ROBERTS |
SMITHERS ALBERT B C/O CASANDRA ROBERTS |
||
|
8/26/1999 |
|
Deeds |
$0 |
SMITHERS ALBERT B C/O CASANDRA ROBERTS |
SMITHERS ALBERT SMITHERS WILLIAM |
||
|
11/11/1911 |
|
Historical |
$0 |
|
SMITHERS ALBERT B & IRENE |
||
| Last Mailed Notice of Value (N.O.V.) Information/History | ||||||||
|---|---|---|---|---|---|---|---|---|
| Year | Date | Market Value | Taxable Market Value | Gross Assessed | Exemption | Net Assessed | ||
|
2026 |
02/23/2026 |
100,000 |
67,641 |
7,440 |
0 |
7,440 |
||
|
2025 |
02/14/2025 |
80,000 |
64,420 |
7,085 |
0 |
7,085 |
||
|
2024 |
02/13/2024 |
69,000 |
61,353 |
6,748 |
0 |
6,748 |
||
|
2023 |
02/14/2023 |
77,000 |
58,432 |
6,427 |
0 |
6,427 |
||
|
2022 |
03/15/2022 |
56,000 |
55,650 |
6,121 |
0 |
6,121 |
||
| Property Building Permit History | |||||||||||
|---|---|---|---|---|---|---|---|---|---|---|---|
| Issued | Permit # | Provided by | Bldg # | Description | Est Construction Cost | Status | |||||
| No Building Permit records returned. | |||||||||||
| Click button on building number to access detailed information: | ||||||
|---|---|---|---|---|---|---|
| Bldg # | Vacant/Improved Land | Bldg Description | Year Built | SqFt | # Stories | |
|
1 |
Improved |
Ranch 1 Story |
1949 |
1,036 |
1 Stories |
|