|
|
|
| Larry Stein Oklahoma County Assessor (405) 713-1200 - Public Access System |
|
|
|
|
|
|
| Real Property Display - Screen Produced 3/3/2026 3:27:46 PM | ||||
|---|---|---|---|---|
| Account: R089708660 | Type: Residential | Location: |
3901 SPRINGLAKE DR |
|
| Building Name/Occupant: |
|
OKLAHOMA CITY |
||
| Owner Name 1: | CAZARES MONIQUE DEJAUN |
Parcel PIN#: |
2655-08-970-8660 |
|
| Owner Name 2: | 1/4 section #: |
2655 |
||
| Owner Name 3: | Parent Acct: |
|
||
| Billing Address: | 3901 SPRINGLAKE DR | Tax District: |
|
|
| City, State, Zip | OKLAHOMA CITY, OK 73111 | School System: |
Oklahoma City #89 |
|
|
Country: (If noted) |
Land Size: |
0.3494 Acres |
||
|
Land Value: 18,800 |
|
|||
|
Sect 14-T12N-R3W Qtr SW |
PARK ESTATES ADD
Block
013
Lot
012
|
|||
| Full Legal Description: PARK ESTATES ADD 013 012 |
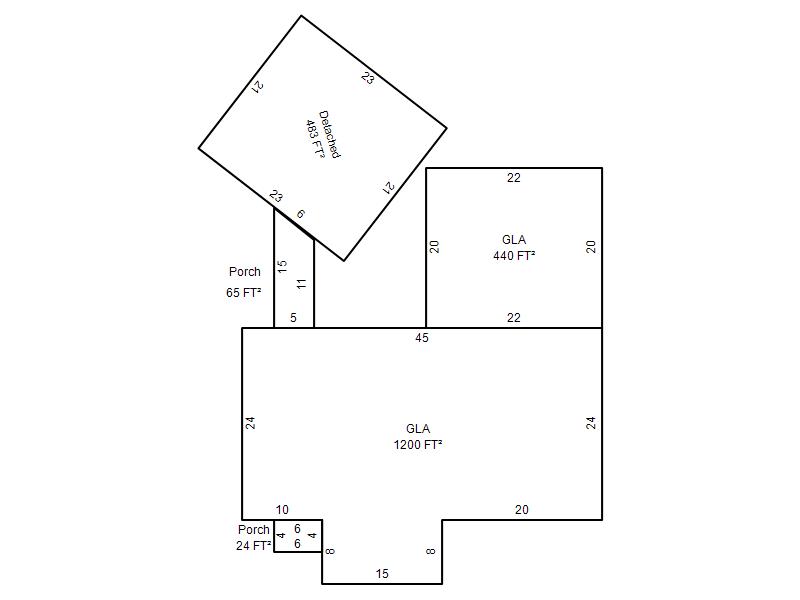
| Photo & Sketch (if available) | Comp Sales (ordered by relevancy) |
|
||||||||||||||||||
|
||||||||||||||||||||
| Value History (*The County Treasurer 405-713-1300 posts & collects actual tax amounts. Contact information HERE) | |||||||||||||
|---|---|---|---|---|---|---|---|---|---|---|---|---|---|
| Year | Market Value | Taxable Mkt Value | Gross Assessed | Exemption | Net Assessed | Millage | Est. Tax | Tax Savings | |||||
|
2025 |
133,500 |
39,413 |
4,335 |
0 |
4,335 |
122.90 |
$533 |
$1,272 |
|||||
|
2024 |
132,000 |
37,537 |
4,128 |
0 |
4,128 |
123.89 |
$512 |
$1,287 |
|||||
|
2023 |
121,500 |
35,750 |
3,932 |
0 |
3,932 |
122.82 |
$483 |
$1,158 |
|||||
|
2022 |
89,000 |
34,048 |
3,744 |
0 |
3,744 |
117.63 |
$441 |
$711 |
|||||
|
2021 |
85,500 |
32,427 |
3,566 |
0 |
3,566 |
117.70 |
$420 |
$687 |
|||||
| Property Account Status/Adjustments/Exemptions | ||||||
|---|---|---|---|---|---|---|
| Account # | Exemption Description | Amount | ||||
| No adjustment/exemption records returned. | ||||||
| Property Deed Transaction History (Recorded in the County Clerk's Office) | ||||||||||
|---|---|---|---|---|---|---|---|---|---|---|
| Date | Type | Book | Page | Price | Grantor | Grantee | ||||
|
9/12/2022 |
|
Hmstd Off & |
$0 |
CORNELIUS DONALD E & GENNETTA TRS |
CAZARES MONIQUE DEJAUN |
|||||
|
11/11/2020 |
|
Deeds |
$0 |
CORNELIUS GENNETTA |
CORNELIUS DONALD E & GENNETTA TRS |
|||||
|
10/29/2020 |
|
Hmstd Off & |
$0 |
GUNN LORETTA F |
CORNELIUS GENNETTA |
|||||
|
8/4/1987 |
|
Historical |
$55,000 |
TRANSAMERICA FINANCIAL |
GUNN LORETTA F |
|||||
|
6/10/1987 |
|
Historical |
$0 |
HUBBARD BILLY & CATHERLENE |
TRANSAMERICA FINANCIAL |
|||||
| Last Mailed Notice of Value (N.O.V.) Information/History | ||||||||
|---|---|---|---|---|---|---|---|---|
| Year | Date | Market Value | Taxable Market Value | Gross Assessed | Exemption | Net Assessed | ||
|
2026 |
02/23/2026 |
143,500 |
41,383 |
4,551 |
0 |
4,551 |
||
|
2025 |
02/14/2025 |
133,500 |
39,413 |
4,335 |
0 |
4,335 |
||
|
2024 |
02/13/2024 |
132,000 |
37,537 |
4,128 |
0 |
4,128 |
||
|
2023 |
02/14/2023 |
121,500 |
35,750 |
3,932 |
0 |
3,932 |
||
|
2022 |
03/15/2022 |
89,000 |
34,048 |
3,744 |
0 |
3,744 |
||
| Property Building Permit History | |||||||||||
|---|---|---|---|---|---|---|---|---|---|---|---|
| Issued | Permit # | Provided by | Bldg # | Description | Est Construction Cost | Status | |||||
| No Building Permit records returned. | |||||||||||
| Click button on building number to access detailed information: | ||||||
|---|---|---|---|---|---|---|
| Bldg # | Vacant/Improved Land | Bldg Description | Year Built | SqFt | # Stories | |
|
1 |
Improved |
Ranch 1 Story |
1948 |
1,640 |
1 Stories |
|