|
|
|
| Larry Stein Oklahoma County Assessor (405) 713-1200 - Public Access System |
|
|
|
|
|
|
| Real Property Display - Screen Produced 3/3/2026 3:27:47 PM | ||||
|---|---|---|---|---|
| Account: R089709100 | Type: Residential | Location: |
4000 SPRINGLAKE DR |
|
| Building Name/Occupant: |
|
OKLAHOMA CITY |
||
| Owner Name 1: | UNLIMITED VISION LLC |
Parcel PIN#: |
2655-08-970-9100 |
|
| Owner Name 2: | 1/4 section #: |
2655 |
||
| Owner Name 3: | Parent Acct: |
|
||
| Billing Address: | 2601 N MORRIS DR | Tax District: |
|
|
| City, State, Zip | FOREST PARK, OK 73121 | School System: |
Oklahoma City #89 |
|
|
Country: (If noted) |
Land Size: |
0.2185 Acres |
||
|
Land Value: 19,040 |
|
|||
|
Sect 14-T12N-R3W Qtr SW |
PARK ESTATES ADD
Block
016
Lot
000
|
|||
| Full Legal Description: PARK ESTATES ADD 016 000 PT OF LOT 6 BEG 15FT SW OF NE/C LT 6 TH SELY135FT SWLY70FT NWLY135FT NELY70FT TO BEG |
| Photo & Sketch (if available) | Comp Sales (ordered by relevancy) |
|
||||||||||||||||||
|
||||||||||||||||||||
| Value History (*The County Treasurer 405-713-1300 posts & collects actual tax amounts. Contact information HERE) | |||||||||||||
|---|---|---|---|---|---|---|---|---|---|---|---|---|---|
| Year | Market Value | Taxable Mkt Value | Gross Assessed | Exemption | Net Assessed | Millage | Est. Tax | Tax Savings | |||||
|
2025 |
105,500 |
62,982 |
6,927 |
0 |
6,927 |
122.90 |
$851 |
$575 |
|||||
|
2024 |
102,500 |
59,983 |
6,597 |
0 |
6,597 |
123.89 |
$817 |
$579 |
|||||
|
2023 |
94,500 |
57,127 |
6,283 |
0 |
6,283 |
122.82 |
$772 |
$505 |
|||||
|
2022 |
69,000 |
54,407 |
5,983 |
0 |
5,983 |
117.63 |
$704 |
$189 |
|||||
|
2021 |
65,500 |
51,817 |
5,699 |
0 |
5,699 |
117.70 |
$671 |
$177 |
|||||
| Property Account Status/Adjustments/Exemptions | ||
|---|---|---|
| Account # | Exemption Description | Amount |
|
R089709100 |
5% Capped Account |
0 |
| Property Deed Transaction History (Recorded in the County Clerk's Office) | |||||||
|---|---|---|---|---|---|---|---|
| Date | Type | Book | Page | Price | Grantor | Grantee | |
|
12/21/2015 |
|
Deeds |
$40,000 |
BAKER KENNETH JR |
UNLIMITED VISION LLC |
||
|
12/12/2006 |
|
Deeds |
$37,500 |
BANK OF NEW YORK TRS OF CWABS 04-10 |
BAKER KENNETH JR |
||
|
8/21/2006 |
|
|
$0 |
SHERIFFS DEED |
BANK OF NEW YORK TRS |
||
|
9/16/2004 |
|
Deeds |
$0 |
BRADDY JUDY YARBROUGH |
BRADDY JUDY YARBROUGH BRADDY NICOLE |
||
|
10/1/1980 |
|
Historical |
$0 |
|
YARBROUGH PAGERINE BRADDY JUDY YARBROUGH |
||
| Last Mailed Notice of Value (N.O.V.) Information/History | ||||||||
|---|---|---|---|---|---|---|---|---|
| Year | Date | Market Value | Taxable Market Value | Gross Assessed | Exemption | Net Assessed | ||
|
2026 |
02/23/2026 |
112,500 |
66,131 |
7,274 |
0 |
7,274 |
||
|
2025 |
02/14/2025 |
105,500 |
62,982 |
6,927 |
0 |
6,927 |
||
|
2024 |
02/13/2024 |
102,500 |
59,983 |
6,597 |
0 |
6,597 |
||
|
2023 |
02/14/2023 |
94,500 |
57,127 |
6,283 |
0 |
6,283 |
||
|
2022 |
03/15/2022 |
69,000 |
54,407 |
5,983 |
0 |
5,983 |
||
| Property Building Permit History | |||||||||||
|---|---|---|---|---|---|---|---|---|---|---|---|
| Issued | Permit # | Provided by | Bldg # | Description | Est Construction Cost | Status | |||||
| No Building Permit records returned. | |||||||||||
| Click button on building number to access detailed information: | ||||||
|---|---|---|---|---|---|---|
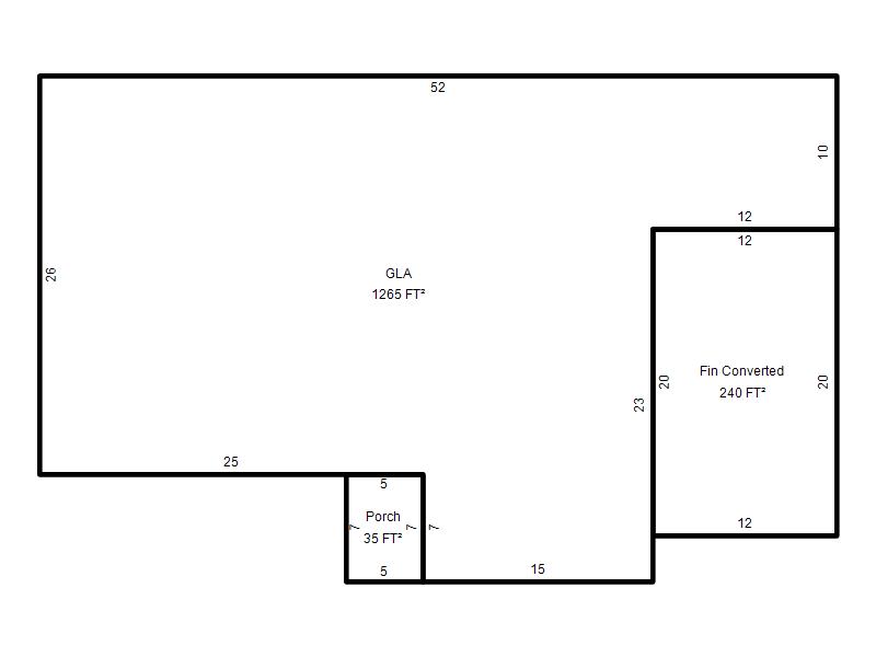
| Bldg # | Vacant/Improved Land | Bldg Description | Year Built | SqFt | # Stories | |
|
1 |
Improved |
Ranch 1 Story |
1950 |
1,265 |
1 Stories |
|