|
|
|
| Larry Stein Oklahoma County Assessor (405) 713-1200 - Public Access System |
|
|
|
|
|
|
| Real Property Display - Screen Produced 3/3/2026 8:11:25 PM | ||||
|---|---|---|---|---|
| Account: R116270700 | Type: Residential | Location: |
1221 NE 43RD ST |
|
| Building Name/Occupant: |
|
OKLAHOMA CITY |
||
| Owner Name 1: | OGLE ASSETS LLC |
Parcel PIN#: |
2656-11-627-0700 |
|
| Owner Name 2: | 1/4 section #: |
2656 |
||
| Owner Name 3: | Parent Acct: |
|
||
| Billing Address: | 8300 S WALKER AVE | Tax District: |
|
|
| City, State, Zip | OKLAHOMA CITY, OK 73139 | School System: |
Oklahoma City #89 |
|
|
Country: (If noted) |
UNITED STATES |
Land Size: |
0.1780 Acres |
|
|
Land Value: 13,184 |
|
|||
|
Sect 14-T12N-R3W Qtr NW |
PARK ESTATES THIRD
Block
001
Lot
007
|
|||
| Full Legal Description: PARK ESTATES THIRD 001 007 |
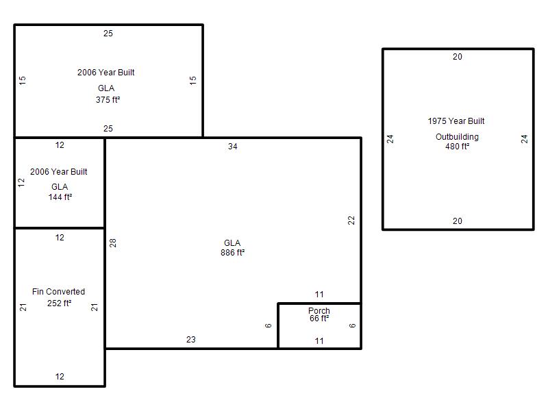
| Photo & Sketch (if available) | Comp Sales (ordered by relevancy) |
|
||||||||||||||||||
|
||||||||||||||||||||
| Value History (*The County Treasurer 405-713-1300 posts & collects actual tax amounts. Contact information HERE) | |||||||||||||
|---|---|---|---|---|---|---|---|---|---|---|---|---|---|
| Year | Market Value | Taxable Mkt Value | Gross Assessed | Exemption | Net Assessed | Millage | Est. Tax | Tax Savings | |||||
|
2025 |
118,500 |
80,454 |
8,849 |
0 |
8,849 |
122.90 |
$1,088 |
$514 |
|||||
|
2024 |
101,000 |
76,623 |
8,428 |
0 |
8,428 |
123.89 |
$1,044 |
$332 |
|||||
|
2023 |
96,500 |
72,975 |
8,027 |
0 |
8,027 |
122.82 |
$986 |
$318 |
|||||
|
2022 |
69,500 |
69,500 |
7,645 |
0 |
7,645 |
117.63 |
$899 |
$0 |
|||||
|
2021 |
66,500 |
66,500 |
7,315 |
0 |
7,315 |
117.70 |
$861 |
$0 |
|||||
| Property Account Status/Adjustments/Exemptions | ||
|---|---|---|
| Account # | Exemption Description | Amount |
|
R116270700 |
5% Capped Account |
0 |
| Property Deed Transaction History (Recorded in the County Clerk's Office) | |||||||
|---|---|---|---|---|---|---|---|
| Date | Type | Book | Page | Price | Grantor | Grantee | |
|
3/9/2020 |
|
Deeds |
$40,000 |
WILSON BARBARA L |
OGLE ASSETS LLC |
||
|
8/13/2012 |
|
Hmstd Off & |
$0 |
WILSON GINA KAY WILSON BARBARA L |
WILSON BARBARA L |
||
|
2/18/2011 |
|
Deeds |
$0 |
WILSON LESTER JR WILSON BARBARA L |
WILSON GINA KAY WILSON BARBARA L |
||
|
11/8/1991 |
|
Historical |
$0 |
WILSON LESTER JR |
WILSON LESTER JR |
||
|
5/1/1977 |
|
Historical |
$0 |
|
WILSON LESTER JR |
||
| Last Mailed Notice of Value (N.O.V.) Information/History | ||||||||
|---|---|---|---|---|---|---|---|---|
| Year | Date | Market Value | Taxable Market Value | Gross Assessed | Exemption | Net Assessed | ||
|
2026 |
02/23/2026 |
125,500 |
84,476 |
9,291 |
0 |
9,291 |
||
|
2025 |
02/14/2025 |
118,500 |
80,454 |
8,849 |
0 |
8,849 |
||
|
2024 |
02/13/2024 |
101,000 |
76,623 |
8,428 |
0 |
8,428 |
||
|
2023 |
02/14/2023 |
96,500 |
72,975 |
8,027 |
0 |
8,027 |
||
|
2022 |
03/15/2022 |
69,500 |
69,500 |
7,645 |
0 |
7,645 |
||
| Property Building Permit History | |||||||||||
|---|---|---|---|---|---|---|---|---|---|---|---|
| Issued | Permit # | Provided by | Bldg # | Description | Est Construction Cost | Status | |||||
| No Building Permit records returned. | |||||||||||
| Click button on building number to access detailed information: | ||||||
|---|---|---|---|---|---|---|
| Bldg # | Vacant/Improved Land | Bldg Description | Year Built | SqFt | # Stories | |
|
1 |
Improved |
Ranch 1 Story |
1948 |
1,405 |
1 Stories |
|