|
|
|
| Larry Stein Oklahoma County Assessor (405) 713-1200 - Public Access System |
|
|
|
|
|
|
| Real Property Display - Screen Produced 3/3/2026 11:21:58 AM | ||||
|---|---|---|---|---|
| Account: R116562115 | Type: Residential | Location: |
1204 NE 45TH ST |
|
| Building Name/Occupant: |
|
OKLAHOMA CITY |
||
| Owner Name 1: | SJS PROPERTIES LLC |
Parcel PIN#: |
2656-11-656-2115 |
|
| Owner Name 2: | 1/4 section #: |
2656 |
||
| Owner Name 3: | Parent Acct: |
|
||
| Billing Address: | 7303 LANCET LN | Tax District: |
|
|
| City, State, Zip | NICHOLS HILLS, OK 73120 | School System: |
Oklahoma City #89 |
|
|
Country: (If noted) |
Land Size: |
0.1653 Acres |
||
|
Land Value: 16,200 |
|
|||
|
Sect 14-T12N-R3W Qtr NW |
PARK ESTATES EIGHTH
Block
005
Lot
000
|
|||
| Full Legal Description: PARK ESTATES EIGHTH 005 000 W5FT OF LOT 17 & ALL LOT 18 |
| Photo & Sketch (if available) | Comp Sales (ordered by relevancy) |
|
||||||||||||||||||
|
||||||||||||||||||||
| Value History (*The County Treasurer 405-713-1300 posts & collects actual tax amounts. Contact information HERE) | |||||||||||||
|---|---|---|---|---|---|---|---|---|---|---|---|---|---|
| Year | Market Value | Taxable Mkt Value | Gross Assessed | Exemption | Net Assessed | Millage | Est. Tax | Tax Savings | |||||
|
2025 |
108,000 |
71,759 |
7,892 |
0 |
7,892 |
122.90 |
$970 |
$490 |
|||||
|
2024 |
106,000 |
68,342 |
7,516 |
0 |
7,516 |
123.89 |
$931 |
$513 |
|||||
|
2023 |
97,500 |
65,088 |
7,158 |
0 |
7,158 |
122.82 |
$879 |
$438 |
|||||
|
2022 |
71,000 |
61,989 |
6,817 |
0 |
6,817 |
117.63 |
$802 |
$117 |
|||||
|
2021 |
68,500 |
59,038 |
6,493 |
0 |
6,493 |
117.70 |
$764 |
$123 |
|||||
| Property Account Status/Adjustments/Exemptions | ||
|---|---|---|
| Account # | Exemption Description | Amount |
|
R116562115 |
5% Capped Account |
0 |
| Property Deed Transaction History (Recorded in the County Clerk's Office) | ||||||||||
|---|---|---|---|---|---|---|---|---|---|---|
| Date | Type | Book | Page | Price | Grantor | Grantee | ||||
|
2/16/2012 |
|
Deeds |
$31,500 |
FEDERAL NATIONAL MTG ASSOCIATION |
SJS PROPERTIES LLC |
|||||
|
7/18/2011 |
|
Hmstd Off & |
$0 |
SANDERS KENDRELL J & ARIN |
FEDERAL NATIONAL MTG ASSOCIATION |
|||||
|
11/9/2007 |
|
Deeds |
$0 |
PHIDIPPIDES CAPITAL |
PHIDIPPIDES CAPITAL MANAGEMENT LLC |
|||||
|
11/9/2007 |
|
Deeds |
$89,000 |
PHIDIPPIDES CAPITAL MANAGEMENT LLC |
SANDERS KENDRELL J & ARIN |
|||||
|
8/29/2007 |
|
Hmstd Off & |
$0 |
MILLIGAN RICHARD |
PHIDIPPIDES CAPITAL |
|||||
| Last Mailed Notice of Value (N.O.V.) Information/History | ||||||||
|---|---|---|---|---|---|---|---|---|
| Year | Date | Market Value | Taxable Market Value | Gross Assessed | Exemption | Net Assessed | ||
|
2026 |
02/23/2026 |
116,000 |
75,346 |
8,287 |
0 |
8,287 |
||
|
2025 |
02/14/2025 |
108,000 |
71,759 |
7,892 |
0 |
7,892 |
||
|
2024 |
02/13/2024 |
106,000 |
68,342 |
7,516 |
0 |
7,516 |
||
|
2023 |
02/14/2023 |
97,500 |
65,088 |
7,158 |
0 |
7,158 |
||
|
2022 |
03/15/2022 |
71,000 |
61,989 |
6,817 |
0 |
6,817 |
||
| Property Building Permit History | |||||||||||
|---|---|---|---|---|---|---|---|---|---|---|---|
| Issued | Permit # | Provided by | Bldg # | Description | Est Construction Cost | Status | |||||
| No Building Permit records returned. | |||||||||||
| Click button on building number to access detailed information: | ||||||
|---|---|---|---|---|---|---|
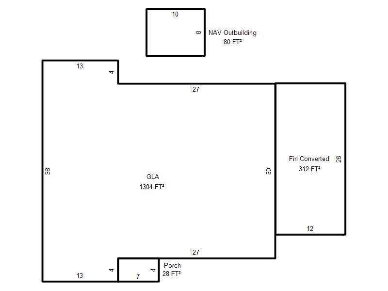
| Bldg # | Vacant/Improved Land | Bldg Description | Year Built | SqFt | # Stories | |
|
1 |
Improved |
Ranch 1 Story |
1952 |
1,304 |
1 Stories |
|